◤公众号对话框回复楼盘名称,查楼盘、加买房群◢
五龙云璟 |龙憩苑| 建发观云府| 臻如府|桃李春风苑|紫琅吾岛

以旧换新!这一次,南通创新区改善楼盘首次加入!
就在刚刚,南通轨道置业旗下的道达元瑞、道达尚瑞官宣以旧换新政策:
同时,这也是创新区范围内首个加入以旧换新的2个楼盘,对于想要置业创新区的买房人来说无疑诱惑满满!!

本次以旧换新政策中要求:
■南通轨道置业“以旧换新”政策限量20套房源(道达元瑞10套,道达尚瑞10套);
■旧房范围:崇川区、开发区或通州城区范围内的住宅(不含自建住房、商业、办公、公寓等);
■享受“以旧换新”政策的客户签订《道达元瑞/道达尚瑞认购协议》,并在规定的90天内旧房售出,方可享受对应政策。
⬇️具体流程如下⬇️

道达元瑞(点击查看更多)
道达元瑞位于创新区静海大道西,崇川路南,与南通轨道大厦相邻,规划9栋18-23F住宅,除了1栋18F和1栋22F以外,均为23F,总户数427户,容积率约为2.0。

该项目将与轨道交通有效衔接,打造真正意义上的地铁上盖项目,乘坐地铁可快速通达全城。

此外,项目还自带约5000平商业MINI MALL,能够满足业主的生活需求。

秉承南通轨道置业匠造理念,项目以现代公建化立面,全封闭阳台三重归家礼序,两大泛会所,四大主题花园设计等风雅气质,打造130-230㎡全龄化户型,定位改善客群。

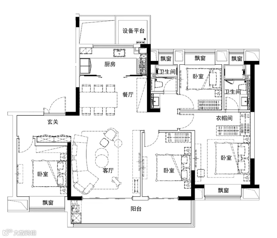
▼建面约130㎡3房2厅2卫

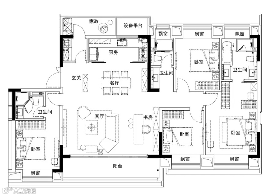
▼建面约160㎡4房2厅2卫

▼建面约190㎡4房2厅3卫

▼建面约230㎡4房2厅3卫

道达尚瑞 (点击查看更多)
道达尚瑞位于创新区金地国际北侧、青年路南,由南通轨道置业携手科创产发合作开发,涵盖建面约127-140㎡小高层及149-167㎡洋房产品,公建化立面,未来阳台全封交付。

道达尚瑞紧邻南通地铁2号线观音山站,将着力打造TOD步行友好型社区,业主可以通过2号线可达圆融广场、南通医学中心(通大附院新院)等重点配套。
▼127㎡三室两厅两卫

▼140㎡四房两厅两卫

▼149㎡四房两厅两卫

▼167㎡四房两厅三卫

你对于轨道置业旗下的2大楼盘以旧换新政策怎么看?欢迎评论区留言讨论。
-END-
点击关注下方公众号
在对话框内回复楼盘名称,
⬇️一键查楼盘详情、加买房群⬇️

【品质改善 精选好盘】
免责申明:1/本文来源南通楼市网,仅供参考和交流,不构成直接投资建议;2/任何投资行为均有不同程度风险性,投资需理性;3/添加微信nt36522,观察君拉你进买房交流群。

