深度意味着难度。据统计,我国已建成开采深度达到或超过1000m的深井共有45座(含11座历史最大采深曾达到千米的矿井),主要分布在华东和华北等,其中:山东21座,辽宁6座,河北、吉林各4座,安徽3座,江苏3座,河南2座,陕西、江西各1座。国家规划建设的14个大型煤炭基地中一些新建和改扩建的大型立井年生产能力已达到1000万t,开采深度已达到1000m。未来5~10年,煤炭矿山还将兴建30余座千米深井。

▲ 深部建井井筒及巷道大变形破坏现象
深部建井与浅部建井的明显区别在于深部岩体处于“三高一复杂”的地质力学环境,使得深部矿井建设过程中,井筒及井底大巷围岩失稳严重、大变形灾害频发,严重影响矿井的安全高效建设。“三高”主要是指高地应力、高地温、高渗透压,“一复杂”主要是指复杂的地层环境及灾害源。
目前,国外在建的超千米深井大多为金属矿山。其中,南非兰德(Rand)金矿区是世界上最大的金矿区,开采深度已达到3600m;英美集团于南非西北部建成的姆波尼格(Mbonig)金矿开采深度达到4350m,是目前世界上最深的矿井。印度的钱皮里恩夫(Champilienf)金矿采深已达到3260m;以俄罗斯为代表的东欧地区也蕴含丰富的金属矿产,其中,克里沃罗格(Krivorog)铁矿区的开采深度已达到1570m,不久将要达到2000~2500m。另外,北美和澳大利亚部分的金属矿山采深也已达到千米以下的水平。
以上表明,超千米深地资源开采在未来将成为一种常态化,其迅猛发展必然对深部建井理论、技术和配套装备提出更高的挑战。
针对深部建井过程中出现的岩石力学与灾害控制问题,早在1983年,苏联、联邦德国的学者就对超过1600m的深(煤)矿井进行专题研究;1998年7月,南非政府启动“Deep Mine”研究计划,旨在解决深部的矿山安全建设、经济开采的一些关键问题;同期,加拿大也开展了为期10年的两个深井研究计划;美国于2000年左右开始筹建深部科学与工程实验室(Deep Underground Science and Engineering Laboratory,DUSEL),就深部岩体力学响应特征进行研究。

▲ 深部建井科学现象与深度的关系
2004年,我国立项启动了第一项系统研究深部开采岩石力学问题的国家自然科学基金重大项目“深部岩体力学基础研究与应用”,后续又设立了包括“深部煤炭资源赋存规律、开采地质条件与精细探测基础研究”(2006年)、“煤矿突水机理与防治基础理论研究”(2007年)、“煤炭深部开采中的动力灾害机理与防治基础研究”(2010年)等一系列国家重点基础研究发展计划(973计划)项目,相关项目研究成果为我国1000~1500m深部资源安全高效开采提供了重要的理论与技术支撑。
然而,由于深部岩体所处地球物理环境的特殊性和应力场的复杂性,使得深部建井工程中的大变形灾害成灾机理十分复杂,现有的理论、技术、工艺及装备难以满足未来1500~2000m深部建井安全高效施工及运营的要求。

▲ 新型立井全液压凿岩钻机工业应用
为此,国家在“十三五”期间,立项启动了煤炭行业的第一个国家重点研发计划项目“煤矿深井建设与提升基础理论及关键技术”(2016YFC0600900)。该项目聚集了煤炭建井与提升以及装备制造领域实力最强的8所高校、9家研究院所及企业的高水平专家,组建了“产学研用”高度融合的创新研究团队。经过4年的联合攻关,该项目针对煤矿深部建井存在高地应力、高地温、高渗透压、复杂多变地层等难题,开展了深部建井基础理论与技术的系统研究——
提出了深部非均压建井新模式,建立了深部不同岩层结构下的井筒力学模型,从微观、细观、宏观层面分析了深部建井岩体的大变形力学特性及其致灾机理;
研发了三大新型材料,包括CF80~CF110高承载力混凝土,含水岩层微裂隙高强、高韧注浆新材料,以及高恒阻NPR锚杆/索系列产品;
发展和完善了8项技术和装备,即深部含水岩层预测预报及微裂隙注浆技术、深井深孔精细化爆破技术、深井井筒低冻胀力冻结施工技术、深井井筒高性能砼井壁施工技术、深井井筒马头门及泵房硐室群支护技术、深井全液压遥控凿岩钻机、深井全液压大容量装岩机等;
针对未来深部智能化、无人化开采,提出了无煤柱自成巷N00建井新模式及其配套工艺技术。
该项目深部建井研究成果在山东能源集团龙固煤矿、万福煤矿以及辽宁铁法能源有限责任公司大强煤矿等典型千米深井进行了工程示范,取得了显著的社会和经济效益。

▲ N00建井工作面成套装备系统
《深部建井力学》(何满潮等著.北京:科学出版社,2023.2)以深部煤矿建井基础理论与技术为主线,系统总结了国家重点研发计划项目“煤矿深井建设与提升基础理论及关键技术”研究团队的主要研究成果。
全书由项目负责人、中国科学院院士、中国矿业大学(北京)何满潮教授负责策划和统编定稿,山东能源集团有限公司李伟研究员、中国矿业大学(北京)孙晓明教授、中煤矿山建设集团有限责任公司徐辉东教授级高工、北京科技大学杨仁树教授、中国矿业大学杨维好教授负责相关章节的撰写工作。

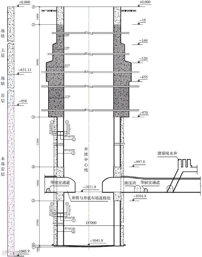
▲ 东副立井井壁结构设计(m)
新建东副立井井筒净直径7.0m,净断面积38.5m²,表土厚度631.11m,井深1054.8m,表土、风化基岩及部分基岩段采用冻结法施工,设计冻结深度930.0m,是目前世界冻结深度最深的矿井。井筒采用双层钢筋混凝土井壁,井壁混凝土厚度冻结段1000~2478mm。工程地质条件分析表明,新建东副立井井筒工程具有黏土层埋藏深、强度低、单层厚度大、地下水流速大、基岩岩心破碎、裂隙发育、地温高等诸多对冻结不利的地质条件,为此,采用分圈异步控制冻结地层技术以及非均压高承载力井壁关键技术,提出了千米井筒井壁结构设计(如图所示)。
“深地资源勘查开采”重点专项总体专家组吴爱祥教授、周爱民总工程师、申宝宏教授、葛世荣院士,以及项目专家组宋振骐院士、蔡美峰院士、李术才院士以及姜耀东教授、江玉生教授、曾亿山教授、蒲耀年教授级高工、何晓群教授级高工、于励民教授级高工、申斌学教授级高工对项目研究给予指导。科技部、中国21世纪议程管理中心给予指导和支持,中国矿业大学(北京)、中煤矿山建设集团有限责任公司、中国矿业大学、黑龙江科技大学、辽宁工程技术大学、山东科技大学、安徽理工大学、中信重工机械股份有限公司、天地科技股份有限公司、山东能源集团有限公司、辽宁铁法能源有限责任公司等单位给予大力支持,在此表示感谢。

▲ 井筒马头门现场施工及最终支护效果
本书可供岩石力学、建井工程、采矿工程、安全工程及相关专业的师生及工程技术人员参考。
本文摘编自《深部建井力学》(何满潮等著.北京:科学出版社,2023.2)一书“前言”,有删减修改,标题为编者所加。
ISBN978-7-03-073588-1
责任编辑:李雪 李亚佩
本书是“十三五”国家重点研发计划项目“煤矿深井建设与提升基础理论及关键技术”有关建井方面研究成果的总结。主要内容涉及深部建井岩体力学理论、深井含水岩层精细探测与注浆、深井高效破岩与洗井排渣、深井复杂多变地层高效支护、深部建井NPR支护新材料及其配套支护技术。提出了深部非均压建井新模式,建立了深部不同岩层结构下的井筒力学模型,揭示了深部建井岩体的大变形力学特性及其致灾机理,研发了深井井筒高承载力混凝土、含水岩层微裂隙高强-高韧注浆新材料以及高恒阻NPR锚杆/索系列产品;发展和完善了深部含水岩层预测预报及微裂隙注浆技术、深井深孔精细化爆破技术、深井井筒低冻胀力冻结施工技术、深井井筒高性能砼井壁施工技术、深井井筒马头门及泵房硐室群支护技术以及深井全液压遥控凿岩钻机、深井全液压大容量装岩机等;形成了针对未来深部智能化、无人化开采的无煤柱自成巷N00建井新模式及其配套工艺技术。相关成果构建了深部建井力学理论与技术体系,建成了千米深井示范工程。

一起阅读科学!
科学出版社│微信ID:sciencepress-cspm
专业品质 学术价值
原创好读 科学品味
科学出版社 视频号
硬核有料 视听科学
传播科学,欢迎您点亮★星标,点赞、在看▼


