同舟共济扬帆起,乘风破浪万里航
6月28日
由中建桥梁承建的
重庆轨道交通九号线10标段项目
新增邮轮母港站建设实现“加速跑”
提前120天完工
正式移交铺轨
为重庆轨道九号线实现年底通车目标
奠定了坚实的基础
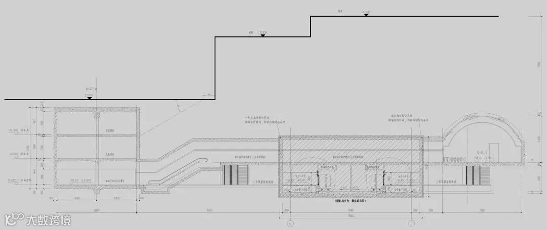
轨道交通九号线工程全长33.87km
共设26座车站
邮轮母港站作为新增车站
距离保税港站约900m
车站全长209m(含人防)
总建筑面积为30763平方米
为上下四层的厅台分离侧式地下车站
为兼顾九号线工期与寸滩片区开发建设
邮轮母港站点分两期实施
一期为站台层
二期为站厅层
并将根据邮轮母港统一规划
结合TOD设计理念推进
届时将直接与寸滩国际邮轮母港相衔接
重庆轨道交通九号线的建成通车
将成为重庆市西南至东北走向
轨道交通骨干线路
有效促进邮轮母港片区邮轮经济
保税贸易功能片区保税经济
金山片区时尚经济加快发展
快速提升南北向客运能力
超前谋划
奏响项目建设“奋进曲”
跑步进场,超前谋划
快速组织多个作业面同步施工
挂图作战,精准执行
变“流水作业”为“同步作业”
将原本12个月的工期缩短至8个月
提高工效50%
2020年11月1日
车站进场施工
2021年1月28日
车站新增施工通道与车站隧道贯通
2021年2月8日
车站隧道第一板仰拱浇筑完成
2021年3月30日
车站隧道上台阶扩挖初支完成
2021年3月31日
车站隧道第一板二衬浇筑完成
2021年6月28日
车站提前完工,移交铺轨
技术创新
筑稳质量安全“压舱石”
起步就提速 开局就超车
面对紧张的工期
施工过程中的技术重难点
项目技术团队攻坚克难强化质量管理
党员先锋队奋勇担当推进项目建设
01
险点——衬砌破除
衬砌破拆需先于车站断面扩挖进行
要求在破拆操作过程中
需保证隧道结构的相对稳定
如何保障破拆安全是项目施工险点所在
项目技术团队迎难而上
为混凝土墙壁切割机设计专用施工台架
提高切割便利性,约束切割线性和切割深度
避免在切割过程中对区间隧道初期支护的破坏
对衬砌中钢筋进行扫描排查
切断衬砌钢筋联系后
对切割后混凝土进行定点精确炸药破拆
进一步提升破拆速度
拆除施工过程中及时对原初支结构施工监测
02
难点——断面扩挖
邮轮母港站是在已施工完成的原区间初期支护
及二衬结构之上进行扩挖而成的
区间隧道断面由原区间40㎡小断面
扩挖成130㎡大断面
开挖方式与每循环开挖距离不当
易发生坍塌等安全事故
施工技术难度大、安全风险高、关门工期紧
拆除遵循先拱顶后两边
先防护后施工,先切割后分离清运
爆破拆除二衬密打眼,少装药,加强安全警戒
断面开挖采用CD法施工,先撑后挖
局部采用台阶法,过程中加强监控量测
03
重点——风道与车站主洞接口施工
对于接口范围断面弧度变化大、跨度大
高度高、施工难度大等难题
扩挖采取短进尺、少装药
强时支护、勤量测措施
严格按照设计图纸及规范要求
挑顶开挖并加强初期支护
接口部位联立3榀工20b工字钢
锁脚锚杆更换为Φ25中空注浆锚杆
增加Φ42X3.5超前小导管
在拱架中部增加工20工字钢作为临时横撑
为安全高效施工保驾护航
04
成果——上报重庆市建委科研课题
《地铁区间隧道原位扩建施工力学行为与控制措施研究》
通过理论、数值计算和施工现场监测
动态剖析扩建隧道施工过程中
围岩力学特性和围岩稳定性
明确扩挖过程中的危险施工步骤
针对地铁区间隧道原位扩建
施工力学行为与控制措施研究
在国内外该类研究尚属首次
工期缩短4个月,降低项目施工成本
党史学习教育
强化思想引领“沐甘霖”
项目党工团协同作战发挥组织优势
在工作部署上整体谋划
在活动开展上同频共振
在力量组织上协调统一
提升党工团组织的凝聚力和战斗力
共促项目生产建设“加速跑”
01
党工团同频共振“一盘棋”
党建引领学党史,模范引领启征程
主题党日强思想,三会一课固根基
头雁效应聚合力,青年学堂添活力
红色观影忆初心,唱响红歌颂党情
实地参观炼党性,红色基因永传承
主题活动健体魄,团结共生聚团魂
笃行青春心向党,矢志建功新时代
02
提升新闻宣传能力唱响“好声音”
围绕工程建设唱响主旋律
开启“党建+宣传”模式
提升宣传效果
汇聚正能量,传递好声音
多家主流媒体多时段持续报道项目建设情况
新华网
中国新闻网
重庆日报
供稿 | 重庆轨道交通九号线10标段项目
编辑 | 陈文
审核 | 舒鹏宇、赵蓟生

