端午小长假期间
重庆渝武高速拓宽改造工程
马鞍石复线桥主桥
江中P6、P7主墩承台全部施工完毕
主墩基础部分出水阶段性目标宣告达成
渝武高速拓宽改造工程二标段项目
渝武高速项目作为重庆市重点工程
“成渝地区双城经济圈”川渝合作共建重大项目
位于北碚区、两江新区境内
项目全长5.68公里
包括马鞍石复线桥一座
(施工结构形式为T形刚构连续梁桥)
大跨度全封闭声屏障一段长约1310米
渝武路基段道路拓宽、渝武主线拓宽
改造翡翠三溪口立交、改造蔡家立交等
项目建成后将有效缓解渝武高速的交通压力
优化中心城区西北向对外门户通道
并串联重庆合川、四川武胜等地
推动两江新区礼嘉、蔡家及北碚等组团协同发展
抢水施工 攻坚一线在前
马鞍石复线桥主桥P6、P7承台为矩形
单个承台长21.6米,宽16米,高5米
采用C40混凝土,设计方量1728立方米
P6、P7承台施工时间紧,任务重
承台混凝土采用2台臂架泵同时浇筑
共历时50小时完成P6、P7墩承台混凝土浇筑
在施工期间
现场值班人员收到水位上涨通知
项目部立即启动防汛应急预案
成立防汛指挥小组开展抢水作业施工
建立现场工作人员24小时值守机制
将初夏洪流的影响隔绝在可控范围之内
党员先锋队和青年突击队在抢水施工过程中
积极发挥先锋模范作用
攻坚奋战
稳步推进、不怕吃苦
顺利完成建设任务
履约创效 科技创新先行
渝武高速拓宽改造工程二标段
马鞍石复线桥P7主墩位于嘉陵江河滩区
承台底标高度比嘉陵江最低通航标高低约5米
为降低承台施工过程中的安全风险
避免因江水倒灌而造成安全事故
在承台开挖前需在承台周围修建围堰
以确保一个良好的作业环境
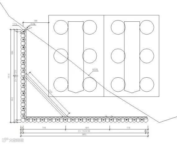
围堰构造图
在原项目清单项中
该处围堰为双壁钢围堰
项目部经过多次研究
选择在嘉陵江枯水期时
采用”L”型荤素咬合桩围堰进行止水
咬合桩桩径为0.9米,相互咬合长度0.15米
为确保咬合桩的结构强度
采用荤素桩间隔的方式进行施工
荤桩为在桩内竖向插入一根I25a工字钢后
再进行浇筑
素桩采用素混凝土
该方案可在满足施工要求及安全的情况下
实现了工期和施工成本的节约
党团引领 争创形象堡垒
项目党团支部深入践行《中建信条·共生文化》
聚力打造“四个堡垒”
组织青年员工前往重庆市九龙坡区松岭社区
开展“走进校园·金秋助学”关爱学龄儿童
为松岭社区学龄儿童发放爱心物资
组织10余名青年志愿者
前往重庆市北碚区蔡家岗街道开展
“科学防治 共同战疫”志愿服务活动
协助当地社区开展防疫宣传
和疫苗接种引导服务
此外,项目党团支部
携手重庆供销电商产业发展有限公司
一同前往重庆市合川区隆兴镇
开展“建证梦想 青年担当”
助力乡村振兴志愿服务活动
帮助当地种植户采摘、运送地里的南瓜
帮助农民解决农产品滞销难题
为助力乡村振兴新发展贡献央企力量
情系工友 清凉沁润人心
施工不松懈,温暖驻人心
项目工会以端午节抢水施工为契机
组织开展送清凉活动
项目领导联合项目业主代表
深入到施工一线慰问节假日期间
连续施工的作业人员
并为他们送去降温消暑物品
此次端午慰问活动
不仅为一线员工送去了清凉
更送去了项目部对一线作业人员的关怀
一句句亲切问候,一块块沁心水果
让一线员工在炎夏备受感动
一线施工工人纷纷表示
将继续坚守岗位,尽职尽责
确保各项工作有序开展
2022年
渝武高速拓宽改造工程项目
将完成马鞍石大桥主桥墩柱封顶
主墩0号块浇筑等建设任务
笃行实干、奋勇争先
以优异成绩迎接党的二十大胜利召开
供稿丨渝武高速拓宽改造工程项目
编辑丨刘雨琪、谭超
审核丨高杰、赵蓟生
【相关推荐】

