大数跨境
0
0

156㎡温馨美式风,有情怀的花园小别墅

156㎡温馨美式风,有情怀的花园小别墅 德雕装饰福州分公司
2019-10-22
2
导读:美好生活该有的样子

美家信息
房屋面积:98㎡
装修预算点击查看报价
风格: 美式
房型:3室
设计灵感:热爱生活,能接受新的事物,摈弃传统的条条框框。

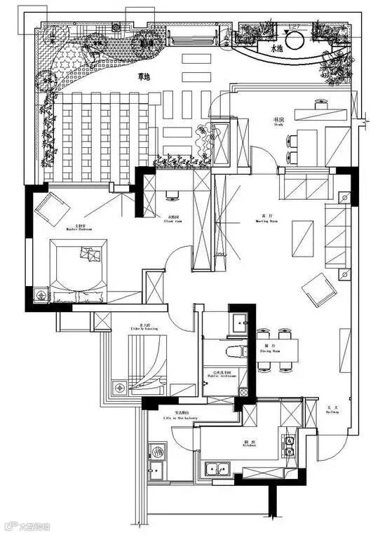
点击图片查看

平面布置图

01
入户后客餐厅互通格局,整体视野很开阔,美式风格的感觉扑面而来。
客厅的旁边是书房,为了增加空间采光,打通了一扇窗,同时增加了家人之间的交流。
复古家具与软装,混搭田园风元素,恬静温馨
美式线条背景墙与吊顶造型呼应,一组皮质躺椅,色泽温润,质感细腻
帷幔窗帘提升空间精致度,实用错落收纳柜体,拼出美式电视背景,原木桩增添自然元素
通铺深色木地板,与电视墙区的深色家具,营造出一种非常古朴怀旧的气息
02
室外花园打造成休闲茶室,原生原态的木质桌凳,享受最美惬意的时光。
03
厨房整体通铺暖色系仿古瓷砖,搭配同色调橱柜,白色台面凸显层次
厨房通向室外阳台,让整个空间更加宽敞明亮
04
阳光书房,一套美式传统书桌椅,采用白色文化砖打造展示壁龛,鹅黄色沙发椅嵌入其中
05
老人房采用柔和乳胶漆墙面搭配深色木质家具,空间素雅宁静
06
主卧也延续了纯正的美式风格,设计偏时尚一点,床正对窗户,一眼望到自家花园
卧室床背景铺贴壁纸,芥末绿墙面与白色文化砖元素,营造氛围
床尾沙发单椅打造休闲一角,步入式衣帽间与主风格呼应一致,创造更多品质收纳空间
07
卫生间干湿分区,复古绿与浅色瓷砖拼贴,搭配定制浴室柜。

往期精彩推荐

136㎡法式混搭,精致,还有法式的优雅浪漫!

别墅设计|245㎡轻奢,赋予空间足够鲜活的情绪!

100m²现代简约风,这样的设计永远不会过时!

CASE//. 140㎡新中式,古韵诗意,朴素禅静

长按识别获取装修报价


微信后台留言

姓名丨联系方式丨楼盘丨面积

或联系装修

了解更多家装资讯

戳“阅读原文领“0元设计”啦!
【声明】内容源于网络
0
0
德雕装饰福州分公司
福州德雕装饰是一家立足东南,覆盖全国的整体家装企业品牌,我们企业的愿景:致力成为【中国高端】装修品牌公司!
内容 890
粉丝 0
德雕装饰福州分公司 福州德雕装饰是一家立足东南,覆盖全国的整体家装企业品牌,我们企业的愿景:致力成为【中国高端】装修品牌公司!
总阅读690
粉丝0
内容890