点击上方“德雕装饰福州分公司”
右上角“...”点选“设为星标”
点击加星★ 贴近你心 ❤

美家信息
面积:88㎡
风格:北欧
设计理念:实用性与美观性兼具,简约的利落,北欧的清新,再点缀些生活小情调。
原始结构图


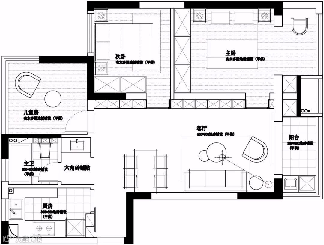
平面布置图
PART1
玄关

将入户左侧墙体用柜体取代,中部留空辅以木色,黄色谷仓门与文化砖背景墙,充满趣味性与粗犷肌理
PART2
客餐厅


客厅,蓝色沙发搭配粉色抱枕,硬朗与柔和完美相融,黑白印花地毯,静静温暖着这个家

浅灰色沙发背景墙用地图装饰画点缀,沙发一边用黑色凳子作边几,点缀绿色盆栽
客厅纳入生活阳台,飘逸的白纱帘展现主人唯美浪漫的生活情趣

电视墙结合柜体,既充当了电视背景又增加了储物空间

餐厅与客厅互通,北欧风的餐桌椅搭配现代简约造型吊灯

餐厅后方是卫生间干区,黄色谷仓门为厨房门片,提亮整个空间的色调
PART3
厨房

厨房原木与白色的搭配延续客餐厅的主色调
PART4
阳台

生活阳台,洗衣台盆柜+洗衣机的组合,美观实用
PART5
主卧
电视背景墙不仅提供大容量收纳,还对称设计了通往卧室的门

主卧纳入阳台改造成兼具收纳的阅读区与梳妆区
PART6
次卧

次卧灰色的墙面,原木的家具,冷暖对比,床头金色点缀的小吊灯趣味满满
PART7
卫生间

卫生间干湿分区,提高使用效率,灰色系六角砖拼接的地面完美过度黑与白
近期推荐
为每一个
爱生活的你
爱家
从装修开始
美好的故事从德雕开始
THE GOOD LIFE | DE DIAO
▼ ELEGANT | ART | LIFE ▼
品质之家
始于德雕
等你回家
/

点击下方“阅读原文”免费查看家装报价☺




