
点击上方“德雕装饰福州分公司”
右上角“...”点选“设为星标”
点击加星★ 贴近你心 ❤
//////////
面积:235㎡
户型:独栋三层别墅
风格:轻奢
一层


本案沿袭经典奢侈品牌的设计理念,以‘旅行哲学’为空间设计出发点,通过材质与工艺的穿插转化,将精致的居住美学与城市装饰艺术融合在一起,拉近居者视觉与内心的双重距离。


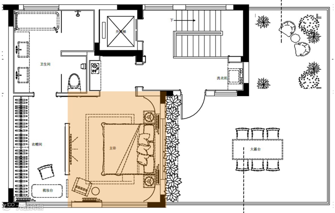
二层

▲平面图





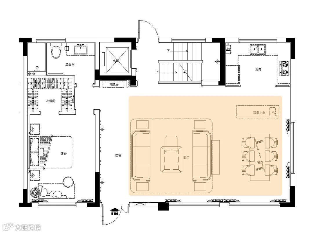
三层

▲平面图



地下一层

▲平面图



好了,今天的案例就分享到这里了,还有什么想看的都可以在后台给小编留言,关于装修,你还想知道什么
9月德雕周年庆
这里的优惠和力度
有需求的你
真的很需要


长按识别二维码
10s查看家装报价

点击下方“阅读原文”领0元设计省万元装修费☺




