这是一套轻奢美式风格的装修案例,屋主对色彩接受度比较高,需要三个房间,次卧留给以后的孩子,北面的榻榻米给长辈偶尔来的时候住。希望这套装修案例能给大家带来一些灵感。
美家信息 Information
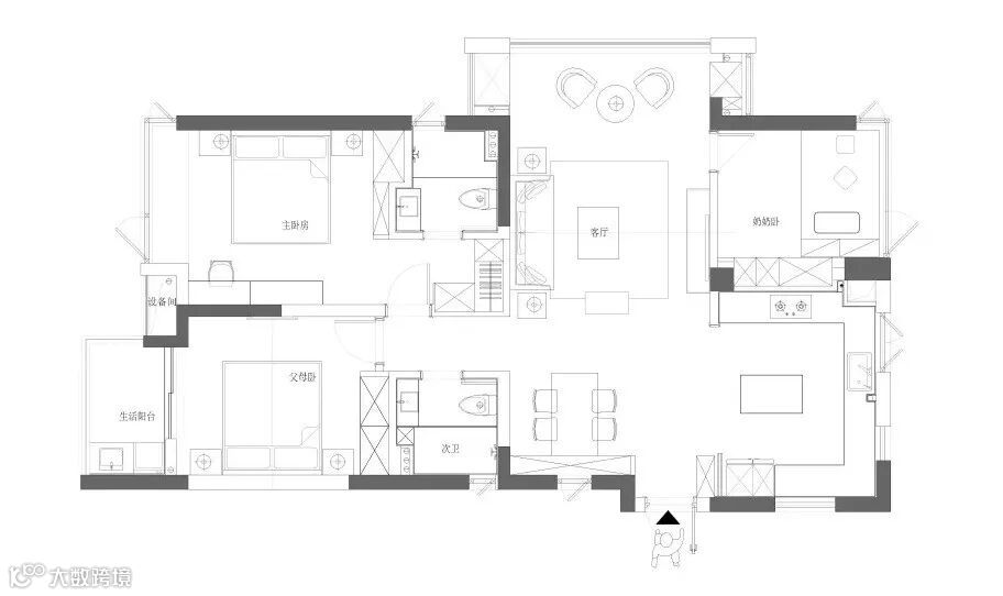
面积:125㎡
户型:三居
风格:轻奢美式
平面图

客厅

▲ 客厅以象牙色作为主色调,在视觉上,运用偏白的象牙色可使空间变得更加明亮、宽敞,用色彩的纯度传递细腻的质感。

▲ 为避免素色空间带来的乏味感,选择以松石绿绒布沙发凳点缀。

▲ 搭配绿植与金边吊顶,将精致时尚融入生活的每个细节。

▲ 大方而不失精致的装饰,简约中又带着迷人的格调,处处都充斥着感人和温馨。
餐厅

▲ 餐厅,合理的家具摆放与色彩的高度统一,使之与客厅融合一起,共同形成一个协调的空间。
厨房

▲ 将厨房移门藏在鞋柜后,平时不做饭的时候,拉开移门,厨房与客厅就形成了一个大空间,在藏露遮掩之间,让整个空间更具延伸与通透感。
主卧

▲ 主卧用色大胆,白色与葡萄紫的有趣组合,宫廷风的床品与温暖的木质地板碰撞相遇。

▲ 既是满分的古典淡然,也是十足的恬静温柔。

▲ 软装与整体色调十分统一,营造了一个优雅迷人的睡眠空间。
次卧

▲ 次卧延续整体设计风格,淡雅的配色和质感的吊灯,蒂芙尼蓝的窗帘与床头相互呼应。

▲ 不经意间展现细腻独特的设计巧思,同时也展现优雅灵动的气息。
书房

▲ 书房,设计师将原户型的大飘窗延伸,改造成榻榻米床,充分利用空间,这样既不占空间又自带强大的收纳功能。
卫生间

▲ 卫生间墙面和地面都是以灰色大理石为主调,以金色做点缀,将空间装饰得简单而不失格调。
●● ●



