搜索
首页
大数快讯
大数活动
服务超市
文章专题
出海平台
流量密码
出海蓝图
产业赛道
物流仓储
跨境支付
选品策略
实操手册
报告
跨企查
百科
导航
知识体系
工具箱
更多
找货源
跨境招聘
DeepSeek
首页
>
113㎡清新美式风,双面玄关收纳柜+石膏线背景墙真漂亮!
>
0
0
113㎡清新美式风,双面玄关收纳柜+石膏线背景墙真漂亮!
德雕装饰福州分公司
2021-11-15
2
导读:高端整装首选德雕
这是一套美式风格的装修案例,在清新雅致的基础之上,加入精致柔和的软装布置,带来的是浪漫缤纷的空间。希望这套装修案例能给准备装修的大家带来一些灵感。
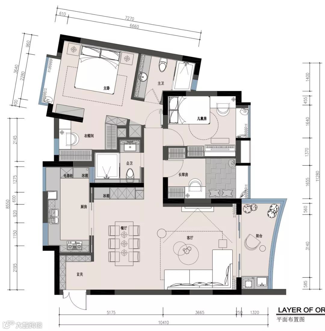
平面图
▲ 功能性玄关收纳量十足,白色柜门搭配金色拉手,精致的细节一进门就能感受到。
▲ 客厅以奶茶色作为优雅的底调,电视墙面的深色正好与大面积的浅色调相平衡。灰色的窗帘拼上一条亮黄,在平静中扬起活泼的波澜。
▲ 沙发背景墙简单的做了线条造型,精心挑选的挂画品味十足,亮黄亮橘慢慢的拉开层次,少许金色元素提升空间精致度,在复古调的地毯搭配下,整体呈现出华丽而又温馨的气质。
▲ 双层
大理
石茶几质感满满,摆放上绿植与装饰摆件提升空间格调。
▲ 餐厅与客厅相邻,并在左侧墙面设置了大面积的储物柜,颜值与实用性并存。
▲ 吊灯的璀璨与挂画的斑斓一脉相承,金色元素在空间中流动,整体典雅内敛不失华丽。
▲ 宽敞明亮的厨房空间,为主人提供了一个轻松愉悦的烹饪体验。
▲ 进入走廊之前的柜子特意留出空位,摆上清新自然的绿植,让空间富有生机。
▲ 主卧以白色和粉咖色为主调,将温情与雅致融于空间里,整体柔和而内敛。
▲ 清晨的第一缕阳光,从飘窗开始;最后一抹余晖,在飘窗结束。
▲ 主卧看向衣帽间,床尾的斗柜设计收纳力与装饰效果兼备,格调满满的装饰摆件与花束绿植让空间洋溢着精致浪漫的气息。
▲ 衣帽间,白色与金色的组合高级而温柔,靠窗的位置留给梳妆台,精致度满分。
▲ 儿童房整体采用蓝白拼色,床靠墙布置,留出了较宽的
活动
空间,也保持了流畅的动线。
▲ 卫生间采用了墙排式马桶,矮墙延伸到淋浴房,留出壁龛,既美观又兼具收纳的功能。
-E
ND-
❤
关注并留言
了解更多家装资讯
免费量房验房,预约请留言
姓名丨联系方式丨楼盘丨面积
我们
将第一
时间
安排家装顾问和您联系
24小时为您解决你的家装需求
长按识别
免费获取最新家装报价
点击下方“阅读原文”领0元设计省万元装修!
【声明】内容源于网络
0
0
德雕装饰福州分公司
福州德雕装饰是一家立足东南,覆盖全国的整体家装企业品牌,我们企业的愿景:致力成为【中国高端】装修品牌公司!
内容
587
粉丝
0
关注
在线咨询
德雕装饰福州分公司
福州德雕装饰是一家立足东南,覆盖全国的整体家装企业品牌,我们企业的愿景:致力成为【中国高端】装修品牌公司!
总阅读
268
粉丝
0
内容
587
在线咨询
关注