「前言」
Preface
该项目是一个两室一厅的二手学区房,前业主已装修,但前屋存在着昏暗、通风差等功能不足的问题,所以在这次旧房改造的设计策略上,设计师更改了部分墙体结构,来补足原有功能的缺失,同时激发空间上的品质,打造一个满足新业主生活品质的空间。
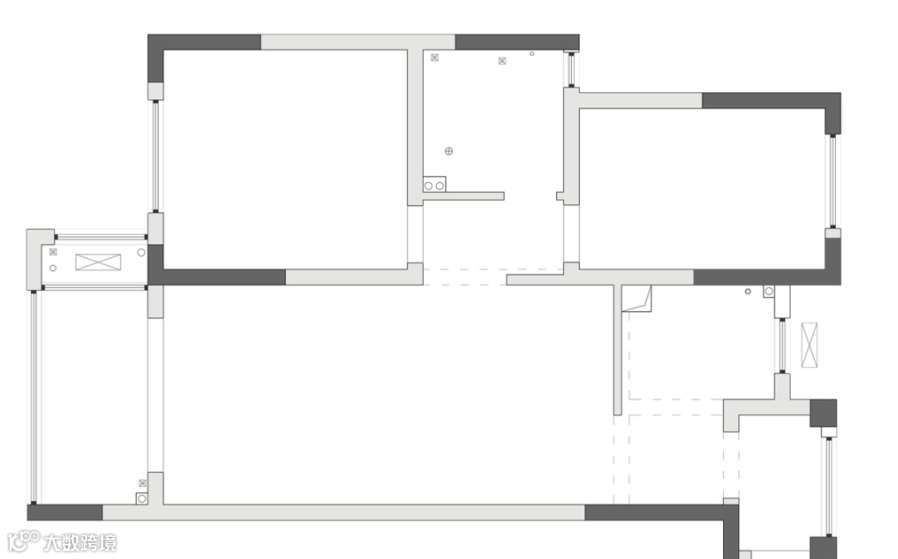
原始户型图
平面布局图
餐厅
Dining room
这次改造始于业主的生活需求和生活状态,基于实用主义,实现了空间、功能、质感、情绪的统一。除此以外,消除了所有多余和不必要的细节,只留下对简约和空间的思考。然而,这种简单中却隐藏着复杂的层次和纹理,整个空间在简约的外表下呈现出微妙和复杂。
错落有致的布局形成了一个开放的子空间,以最大程度地利用早晚光线。
客厅与餐厅,通过原始建筑梁体的串联,模糊了功能区之间的界限。
餐厅区域丰富功能模块,设计赋予的功能越多,收纳需求就越大,隐形收纳让空间氛围断舍离,又不会缺少家的氛围和收纳的乐趣。
作为改造的重点,设计师将厨房与餐厅和客厅相连,合并成一个大空间,并通过空间两侧引入自然光,促成空气循环,创造出微风轻拂的室内环境。
厨房
kitchen
原先以L形组织的厨房空间,如今也已改造一新,集操作台、壁柜、蒸烤箱与一体的设备模块组成的U形厨房核心空间。此外,设计师还为厨房留出了更多的储存空间,并将立面打开赢得更大的采光,使厨房以更加开放的姿态面向整个室内空间。
客厅
Living room
通过体块间的空隙设计增加了室内空间的流畅性,同时灯光的设计点亮了空间视野的层次感,比起照明,更多地向人们传达了整个空间的轻盈和愉悦。
客厅具备了包容度的空间可塑性,在具象与抽象之间形成微妙的平衡,以模糊的、留白的方式,让更多遐想的生活在这里成为可能。
客餐厅之间没有空间上的分隔,保证空间整体性的同时彼此也具有独立性。墙上的几何色块在满足客厅收纳的同时,也作为一组色块雕塑为这个空间注入活力与生机。
玄关
Porch
干净简约的玄关成为整个开放空间中的导向性元素,强调出房间从前到后的联系,它们构建出从入口到客厅的视野景观与交通流线,使空间连续而富有流动感。
书房
Study
书房破除了传统的概念,形成了一个集办公、休憩与储物一体的有趣空间,满足了日常的收纳需求,形成独特的空间体量。
卫生间
TOILET
卫生间三个功能独立分割,洗手间、淋浴间、洗漱间使用互不干扰。
卧室
Bedroom
卧室延续了整体简洁的设计风格,淡雅沉稳的配色使得整个睡眠区更加深邃放松,微水泥与原木的映衬下,整个空间显得通透而静谧,多角度诠释了空间的神秘氛围。
-END-
联系我们
18581878861(微信同号)
扫码添加 | 即刻咨询
免费上门量房
0元领取装修设计

