「前言」
Preface
本案面积为45m²,是一个精装的公寓,室内的墙体均可拆除,所以给了设计上很大的可变空间。开发商原结构为两室一厅一卫,但由于结构布局不合理导致空间浪费严重。所以屋主希望新家是一个温暖又不失实用的家。所以我们希望在有限的面积里,用设计给屋主带来一种家的归属感和不同模式的使用感受。面积虽小,却蕴含屋主个性的生活态度。
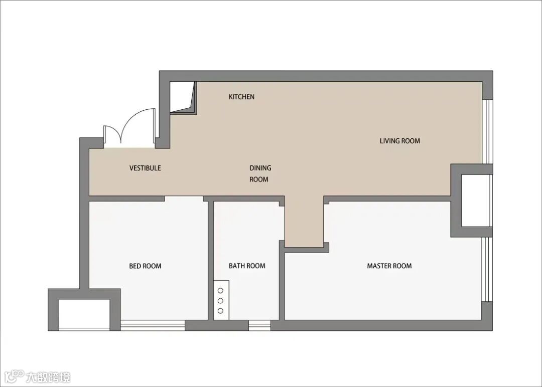
原始户型图
平面布局图
玄关
Porch
储物面积增大,最右侧的储物柜可以放置雨伞、吸尘器等物件。增加了换鞋+穿衣镜和挂钩等功能。悬空的换鞋凳增加空间的呼吸感,下方预留了插座方便后续扫地机器人充电。玄关看上去整洁清爽。
餐厅
Dining room
全屋采用统一色系的柜门和乳胶漆,整个空间更加和谐。
餐厅旁的展示柜,丰富空间画面,也增加储物功能。
平时屋主一人吃饭,父母或者朋友来把餐桌拉出来围坐也足够使用。
一股干净且清新的气息扑面而来,妍丽的春日配色,让人从用餐的那一刻起,就是一场盛大的美食治愈仪式。
一旁的墙面看似是柜门,
实则是通往卫生间和次卧的隐形门。
餐厨区采用开放式设计,既节省空间还具有强大的收纳功能。
纯白色橱柜不仅干净,添上补充光源的壁灯和岛台上面的吊灯,温馨中带着安静。
客厅
Living room
L形的定制沙发合理利用转角空间,屋主或坐或躺非常放松。
全屋米色色调和窗边的梦幻帘,营造了一个休闲的氛围。地面用鱼骨拼地板通铺充满动感。
投影幕布降下,三五好友围坐聚会娱乐,又是一个社交空间。
瑜伽垫摆上,又变成了运动空间。
主卧看向客厅,
百合竹成了这个平静温暖空间的一抹生机和亮色,
同时也是厨房和客厅的隔断。
主卧
Bedroom
定制悬空书桌和吊柜,
在主卧光线最好的位置打造了办公区域。
两侧床头柜是定制悬空的,方便打扫卫生也增加空间的呼吸感。
屋主有在床上看书的习惯,所以床头用了可以调节角度的吊灯。
静谧、安睡的氛围笼罩整个房间,躺在床上放空片刻,也是一种幸福的享受。
整个空间不需要做什么造型,一副画足矣。
次卧
Bedroom
用榻榻米+衣柜把凹陷补平,整个空间整洁不少。预留出梳妆台位置,父母来住也可以当床头柜使用。
书桌上方是个电箱,用常规的电箱画总觉得少了点氛围,最后用乐高画来代替。
床头简单挂两幅画。
卫生间
TOILET
整体采用米色的水磨石瓷砖,美缝选的和瓷砖颜色接近,做出接近无缝的效果。
淋浴房用的极窄黑色边框和超白玻璃,让画面看起来更干净。淋浴区域内掏出了个放洗漱用品的壁龛,比外置的挂件更好用。并在墙上安置了可以伸缩的钢丝绳,平时有些小衣物可以挂上晾干。
-END-
联系我们
18581878861(微信同号)
扫码添加 | 即刻咨询
免费上门量房
0元领取装修设计

