
这是一套精装房改造的案例,屋主接受一定程度上的硬装改造,因此给予设计师很大的想象与发挥空间,设计师在原有硬装的基础之上添添减减些造型,更改了漆面、木皮,再搭配上风格走向的家具饰品,效果出奇的好。
房屋面积:208㎡
装修风格:侘寂风
常住人口:5人
装修周期:8个月

▲ 原始户型图
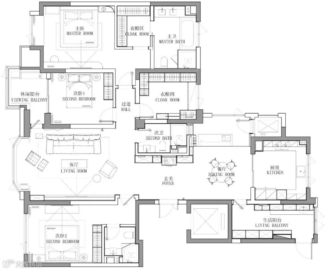
房子本身的户型是很好的,三间卧室全部朝阳,功能区及动线也蛮合理。

▲ 平面布局图
本着不大动的原则,全屋的平面布局上,我们只动了一处——餐厅西面的小阳台。
考虑到家里朝南的阳台足够且宽敞,这个位置的小阳台利用率相对较低,就把它收入餐厨区作为其功能的补充。
玄关重新做的柜体,没有很刻意的造型,不锈钢的点缀,一束植物,大方得体的造型营造入户第一印象。
没有改动客厅电视背景的大理石,而是直接选择微水泥进行覆盖,客餐厅的地面也是微水泥。微水泥的质感很好的适配了屋主想要的风格。
客厅南面的八角窗采光非常好,窗帘做的是木百叶和纱的形式,阳光透过百叶窗,洒下来的光影效果绝美。
在天将暗未暗之时,开启客厅内那暖黄色的灯光,撒在沙发上、茶几上,古朴悠长的韵味立马就有了,永远不要小瞧灯光的氛围营造能力。
客厅顶面我们改掉之前的吊顶,做了一个大曲面的造型,来打造空间的结构美感。
整个大空间以暖灰为主,通过空间立面的色彩与质感把控,来塑造要呈现的侘寂基调。
朝南的阳台一部分是左侧这块与客厅直接连接,另一部分则是需要通过沙发背景墙左侧的这扇门进入,相对更私密一些的休闲阳台。
更换掉之前的沙发背景,用艺术漆平刷,包括顶面也是,统一空间色彩。让家具成为空间的主体,突出整体的视觉效果。
沙发背景我们用精简却饱含韵味的手法来做的造型,凸显侘寂风。
胡桃木背景不仅仅是单纯地来做隐形门,还用圆弧的造型呈现一种屏风的效果,仿佛是一本正要翻到下一页的书卷。
南面阳台改造了原本的地砖和墙面,整体色调更加偏向暖黄色调,增加了绿植的区域,呈现更加休闲放松温暖的氛围。
一个陶罐、一把枝干、一个木凳、一隅天地,通过家具软装的搭配来呈现出我们想要的侘寂味道。
客厅的茶几自然是一个不可忽视的存在。玻璃与玻璃钢的材质混搭,看着像是坚硬与脆弱这种出乎人意料的搭配,总会让我们驻足欣赏。
耐撞击的钢化玻璃茶几,可以看到左侧是直接落地的一个造型,两个面连接的角是做的曲面弯角,而非90°直角,以避免磕碰的风险。
通过地面微水泥覆盖、房门木饰面改色、顶面吊顶重塑平齐、空间色彩统一,整个廊道的美感与质感一下子就提了起来。

我们对餐厨区的整个立面、包括地面和顶面都做了调整,木饰面墙壁和地面都使用微水泥涂刷,其他墙面则是用的同色艺术漆。
厨房的橱柜我们也做了柜面改色,把硬件基础做到位来把控好空间的调性。
餐厅这面墙壁就是之前的木饰面平铺的墙,和客厅电视背景一样,不拆改直接在上面涂刷的微水泥。
顶面和客厅顶面采用相同的设计手法,调整吊顶做曲面穹顶。整个公共空间的状态是一体呼应的,注重家里区域间的自然联系——家的整体性。

考虑到空间的实际利用率,将餐厅西面的小阳台纳入到餐厅区域,拓宽餐厅的实际使用面积,增加了西厨岛台、咖啡吧的功能。

不仅吧台区的地面是微水泥,吧台台面台身也是微水泥,耐水耐污易打理,相同材料的运用也让吧台和空间的融合度更高。
考虑到岛台的排水,我们将原来阳台部分的地面做了10cm抬高,方便排水。
西厨岛台边上定制的圆弧不锈钢造型杯具展示柜,是特地设计出来展示家里的咖啡杯,迎合业主喜欢喝咖啡,以及收集杯子的兴趣爱好。
顶面和客餐厅一样做了曲面处理,卧室看上去会更有流动感一些,中和一下体块的横平竖直,不会让房间显得呆板生硬。
背景墙我们以结构的美感来表现,体块+色彩的层次叠级,结构的美感和低饱和的色彩总会更具有美的持久性。
在转角的位置,做了一个曲面的过渡处理,悬浮式床头柜也随着做了一个曲面收边,转角的处理更有区域的包裹感以及氛围感。
我们用悬浮式台面来作为一个置物的小平台使用,没了落地的堆积感,看着更清爽通透,利落的结构线条,在整个卧室内看着也更有美感。
整体的效果吧。作为精装房改造可以出来这样的效果还是挺满意的。感谢业主的高度配合,给予充分的信任也是使得这个项目能够顺利落地的原因之一。