
屋主是一对95后年轻夫妻,属丁克一族,双方长辈同城拥有自住房屋,因此这套小三居完全归夫妻二人享用。
如今,家的形式越来越多样——自在随性一人居,甜蜜二人世界,热闹有孩之家,其乐融融几代同堂……方寸之间,是居住者迥异的小宇宙。而设计师需深入感受不同家庭模式内核,为每位居者量身塑造生活形态。
房屋面积:99㎡
装修风格:轻复古
常住人口:2人
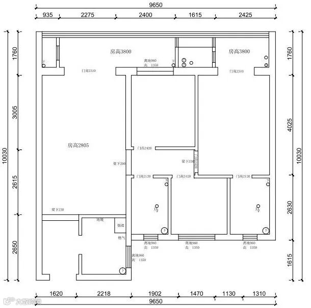
▲ 原始户型图
原三居室的刚需户型和屋主需求不甚适配,设计师和屋主希望把空间打造成一处自在随性的居所,一切围绕两位屋主展开。
设计思路:
1. 结构上,只保留一间卧室,尽可能打通公共区域,70㎡的中小户型也通透敞亮。
2. 动线上,客厅、餐厅、卧室均形成洄游动线,客厅与书房以走廊和阳台串联成大型洄游动线,如此,于家中任何角落均可自由来去。
3. 风格上,按照屋主审美,偏向轻复古、轻法式风格,以低饱和色与自然材质为主,不做过度装饰,雅致中自带慵懒的情调。
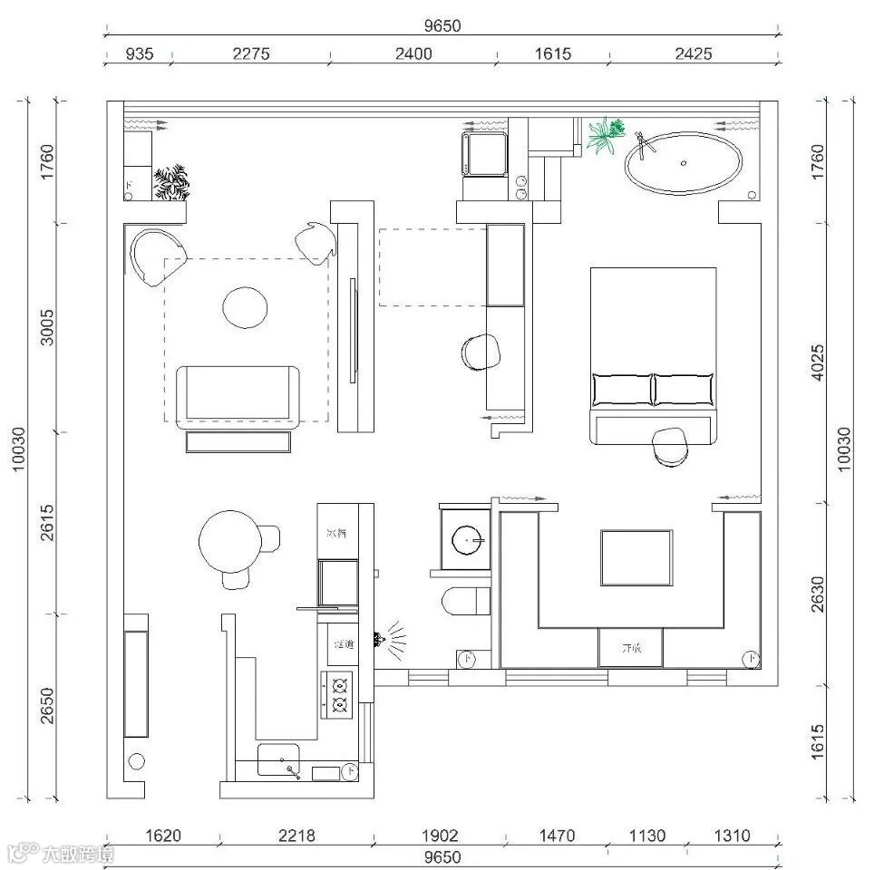
▲ 平面布局图
1. 厨房调整朝向后重新砌墙,塑造功能完整的独立玄关,满足夫妇两人大量鞋子的收纳。
2. 客厅“不逾矩”的灵活布局,可切换休闲、会客、观影多种模式。
3. 开放式书房暗藏留宿功能,隔断帘与抽拉床实现安心睡眠。
4. 两房整合为套房式主卧,是屋主两人的私密世界,加长款浴缸、宽敞衣帽间将幸福值拉满。
入户右侧新砌隔墙,用于挂放包包外套等。考虑屋主习惯将鞋子集中收纳,于入户左侧设顶天立地柜,可容纳夫妇两人共近百双鞋子。
选用小巧圆形餐桌,满足二人平日使用,同时为四周预留出充足过道,形成家中第一道洄游动线,玄关前往厨房、客厅皆可通畅无阻。
玄关门洞与厨房门洞同高而不对称,加入四分之一圆弧的设计,为空间平添几许温柔。
家具软装均注重造型选择,实用美观兼备,置身于优美环境中就餐,心境更愉悦舒展。
近厨房入口一侧打造高柜,内嵌家电并作为餐边柜储物,位置居中也可缩短动线简,一举多得。
餐厨之间以推拉门作为隔断,下厨时合起,可让客餐厅免受油烟侵扰。
中厨内部打造U型台面,巧用洞洞板上墙来收纳烹饪用具。橱柜定制与整体同色系,视觉上和谐统一。
墙壁装饰简约的矩形石膏线,一侧与餐厅吊顶垂直,一侧位于客厅,并在中间加一大棵绿植盆栽点缀,巧妙暗示区域的界限。
立面顶面同色增加整体感,避免小空间导致视觉割裂显得杂乱,美感则通过元素统一的软装展现。
茶几、沙发、边柜均为同色系,颜色上明度深浅之别,形成丰富层次。材质上木质与理石冷暖对撞,辅以慵懒的羊羔绒,整体氛围放松不失精致。
整个空间线条均为利落的直与曲,且彼此交相呼应,有呼吸般的均匀节奏。
各家具软装整体高度均在视平线以下,低重心布局透出随性慵懒调调。墙面不做多余装饰,留白尽显高级,也为日后改造空间留下可能。
沙发选用两只可拆分组合的轻便款式,便于挪动,可根据休闲、观影、会客等不同场景调整布局。沙发、茶几四周均可通行,为家中第二道洄游动线。
考虑平时仅夫妻二人常住,家中只保留一个卫生间,原主卧与南侧小房间打通,整合为宽敞步入式衣帽间。采用落地帘与睡眠区隔断,简便实用。
二人衣物较多,衣帽间两侧分区收纳,各自为男女屋主所用,中部岛台为女主饰品区,岛台上方开放式挂衣区专门收纳屋主睡衣与次净衣。
床头后侧为女主梳妆台,因物品较多,桌面两侧均设置抽屉,不同化妆品可井井有条码放。此外,床身与后方梳妆台四周,形成家中最后一道洄游动线。
因房屋位于顶层,为不辜负窗外美景,调整为床对窗布局,每日清晨可迎接日光醒来,开启整日愉悦心情。
阳台设置四分之一圆弧隔断,与玄关门洞呼应,并靠窗布置1.7m宽敞浴缸,男主结束每日繁忙工作,归来最爱在此泡澡疗愈身心。
书房两侧隔墙打通做半开放格局,可通过阳台行至客厅,形成大的洄游动线。
阳台靠近书房一侧布置洗衣机,衣物取放可经由书房完成,无需从走廊绕行,动线简便。
除日常办公阅读,书房也兼做客房使用。储物柜下方可拉出折叠床,自带床垫款式使用方便。
此外书房与走廊间加装嵌入式落地帘,就寝时可合起形成私密空间。
走廊另一侧是卫生间,干区洗手池外移形成干湿分离,因区域有限,利用镜柜扩充储物。