这是一对年近花甲的中老年夫妇,老两口一直安静和闲适的日常生活,平日偶尔儿子会带儿媳和孩子来小住几日,56㎡的房屋中希望在,不影响功能使用的情况下,保留两个卧室,并且主卧需要衣帽间。另外老两口一辈子热爱交友。所以希望餐厅能够容纳多人同时用餐。
房屋面积:56㎡
装修风格:混搭
常住人口:2人(偶尔儿子一家小住)

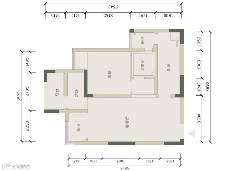
1.原户型比较方正,但是空间被切割得厉害,造成了一定程度的浪费,包括狭长的客餐厅,窄小的厨房都让居住体验非常难受。
2.动线比较混乱,动静区存在两条交叉的动线,也是降低居住体验的原屋缺点。

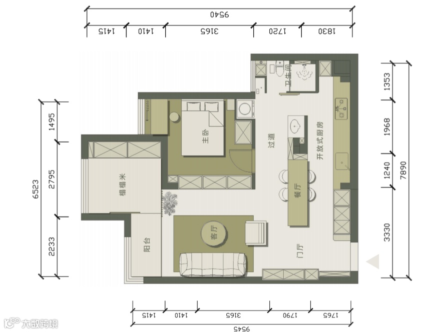
【平面布局图】
1.我们将厨房和原本的主卧卫生间全部打掉,重新规划,餐厨一体的规划,同时让厨房由封闭式变为开放式,避免了原本的老户型的通透性不够的缺陷。动静区的动线问题一下就豁然开朗,合理有序。
2.原本的小次卧我们将之与小阳台打通,让小卧室一房多用,打造为一个集睡眠、休闲、饮茶的多功能房间。
3.小卫生间我们改到了原本的小阳台,并且做了干湿分离的设计,使用起来更加舒适、健康。
客厅我们融合了复古风+禅意中式的双重设计,复古绿+木色的背景墙奠定了客厅的氛围感。棕榈叶的墙纸可谓是客厅的一大亮点,生气满满。

哑光木纹砖上铺陈了绒面地毯,兼顾到舒适的脚感,藤编的沙发搭配同款配套茶几。


小阳台我们做了地台设计,明显了空间的规划,右边的格栅搭配亚克力边几上的绿植,禅意感十足。




小阳台上的木百叶帘与格栅形成呼应,线条美感被有层次的勾勒出来。
餐厨空间的改造,也是可圈可点。我们根据阿姨和叔叔的需求,打造了1字型的厨房操作台,一米5的过道完全能够容纳两边的人做饭与用餐。

岛台+石英石的餐桌面,厚重感很浓。能够舒服地同时容纳7个人用餐。这样儿子一家平时过来也可以在一家人的欢笑声中,畅谈趣事。



开放式的餐厨空间,不仅提升了空间的通透感,另外一个层面也让原本交叉的动线变成了洄游式动线,丰富了生活场景的同时,也让居住体验更为舒适。

在设计策略中我们提到,原本的卫生间被挪到了生活阳台,将洗漱台提了出来,形成了一个三分离的区域规划,同时我们设计了的家政区,让空间功能独立起来。


主卧我们则是延续了客厅的风格主题,比较饱和的复古绿让睡眠空间更加有感觉。

灯光搭配我们选择了黄铜壁灯+吊线灯+一盏主灯的方式,进行不同场景的照明,为阅读、休息、睡眠提供舒适的氛围。

次卧这边我们选择榻榻米的方式,提升空间收纳。

莫兰迪的绿色乳胶漆搭配象牙白的一门到顶柜体,营造轻盈的空间氛围。

这儿则是作为饮茶、休闲、睡眠的多功能房。


多功能室看向阳台视角



