这是一个两层复式空间,木质调+焦糖色的搭配,让空间充满了慵懒随意的氛围感,就像复古电影中的浪漫背景!屋主陈女士小姐姐从事摄影工作十一年,在审美上要求还是比较高的。平时喜欢到处旅游记录风土人情,和看电影,并且会写一些影评。这样一个有故事的小姐姐和我们会擦出怎样的火花呢?一起来看看!

“一个人哭,你只要给她一张纸巾就好,但是一个房子哭,你就得花很多功夫。”
---出自王家卫电影《重庆森林》
房屋面积:92㎡
装修风格:轻复古
常住人口:3人

▲ 一层原始户型图
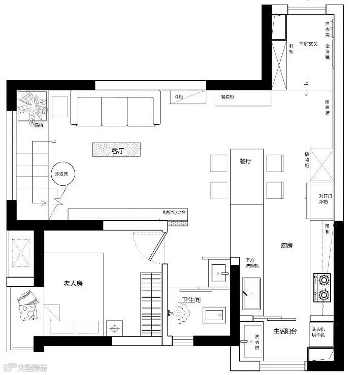
▲ 二层原始户型图
一层设计策略:
1. 入户设计下沉式玄关,保证室内的整洁。
2. 解放厨餐厅空间,开放式设计让空间更加通透。
3. 将客厅阳台一分为二,一面设计了中式景观,一面转角楼梯。

▲ 二层平面布局图
玄关
厨房
餐厅
客厅
楼梯
卧室
▲ 空间细节
次卧
卫生间

卫生间干湿分离,使用木格栅作为干区与空间的隔断。



