红砖、黑瓦、竖窗、坡屋顶与教堂等建筑外观的搭配组合,让城市精英向往的波士顿风情异地展现。

该别墅最终以现代摩登的格调来作响应。在一贯擅长的现代手法上,合宜引入摩登特征,并统筹驾驭二者的平衡。无论是场景的塑造、陈设的布置,亦或是细节的刻画,都旨在更好地表达高品质生活方式,以及彰显新潮舒适的居家态度。”

独立的玄关,以个性端景台作为承载,开启归家的仪式感。纯粹克制的视觉中,又不乏含蓄的肌理变化。于此间也有整个空间中形、色、质设计要素的映射与缩影。


挑高6.5米的客厅,沙发后方背景线板一贯而上,透过对面的夹丝玻璃与厨房以及二楼客卧套间相望,另一侧借助半遮挡半通透的金属屏风与楼梯对话。此外,客厅亦与吧台、餐厅开敞联合,有效拓展了公共区域的活动范围与分区层次。

设计师在流畅的布局中,最大化挖掘相邻场域的渗透与交互,在保证个体功能独立的同时,又强化了整体延续性。





设计元素的呼应与融合在此运用娴熟:客厅两端立面的画作,均由黑白灰三色演绎,以简约的笔触勾勒艺术感知;背景线板与沙发都极具体块与线条韵律,后方非常规尺寸的画作将人的视线自然引向上方,衔接之余又散发出一种不可言说的魅力;条块状金属屏风衍生的错位分割感,也在两幅画作、茶几、牛皮拼接地毯上得到体现。

环视所见,硬朗与柔软、方正与圆润、直线与曲面、大与小、高与低、明与暗……交融共舞。这一切背后皆是对设计师精准拿捏室内感受、比例关系、构图审美、细节质感的印证。

以穿插的构造手法巧妙设置吧台,无论从使用功效,还是情感交流上,均为生活增色。

不同的材质、造型、色泽于餐厅交织,错落有致,立面沿用大块面线板充当最适宜的调色板,渲染出典雅且轻松的用餐环境。

车库借由立面与顶面的镜面反射,与LED灯带一起,构筑虚实层叠与纵深扩容的效果,科技感十足。透过右侧玻璃与餐厅、过道互动,车库化身精美展厅,并成为室内颇具玩味的一景。



楼梯在层层递进的过渡与转折中,描绘出自由包容、生动空灵的境地。“以叠级与延伸的形态充当踏步的前奏,构成错落趣味的造景;另外凸出部分恰好为艺术装置与吊灯提供舞台,这其中也包含着我们对上下一体的呼应与考量。”

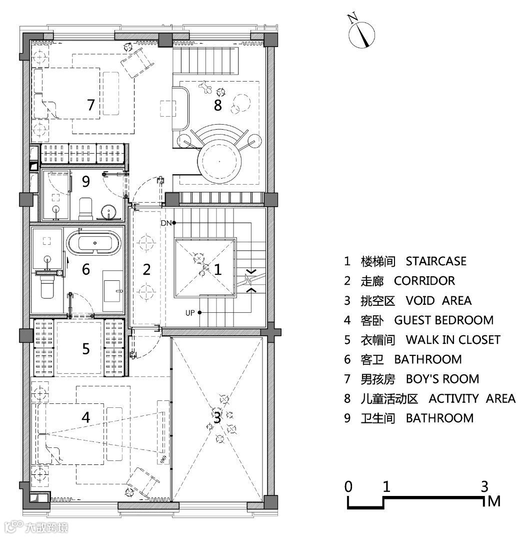
“星球大战”是一种情感的投射,也是一场有意义的探索冒险,二楼男孩房套间正是基于此主题打造,希望给孩童足够的科学启蒙。冰蓝色的背景笼罩下,显得神秘却又令人心向往之,诚如太空星际一般。显著的宇航员床头灯、画作,助力营造全方位沉浸式感官体验。

下沉式活动区可谓男孩的秘密乐园,浩瀚天际下集结的宇航员们正蓄势待发,激烈大战一触即燃。以一枚发射的火箭为枢纽,承接通往卧室的连廊,便可实现上下穿梭往来。


客卧套间由灰调铺陈,传达出温情而平和的情绪。通过形状、虚实、远近的合理配置,强调质感之余也不乏温馨的点缀,既显时尚新颖,又为其增添动感活力。夹丝玻璃隐约引入挑空区背景线板作为立面装饰,让舒适度与宜居感进一步提升。


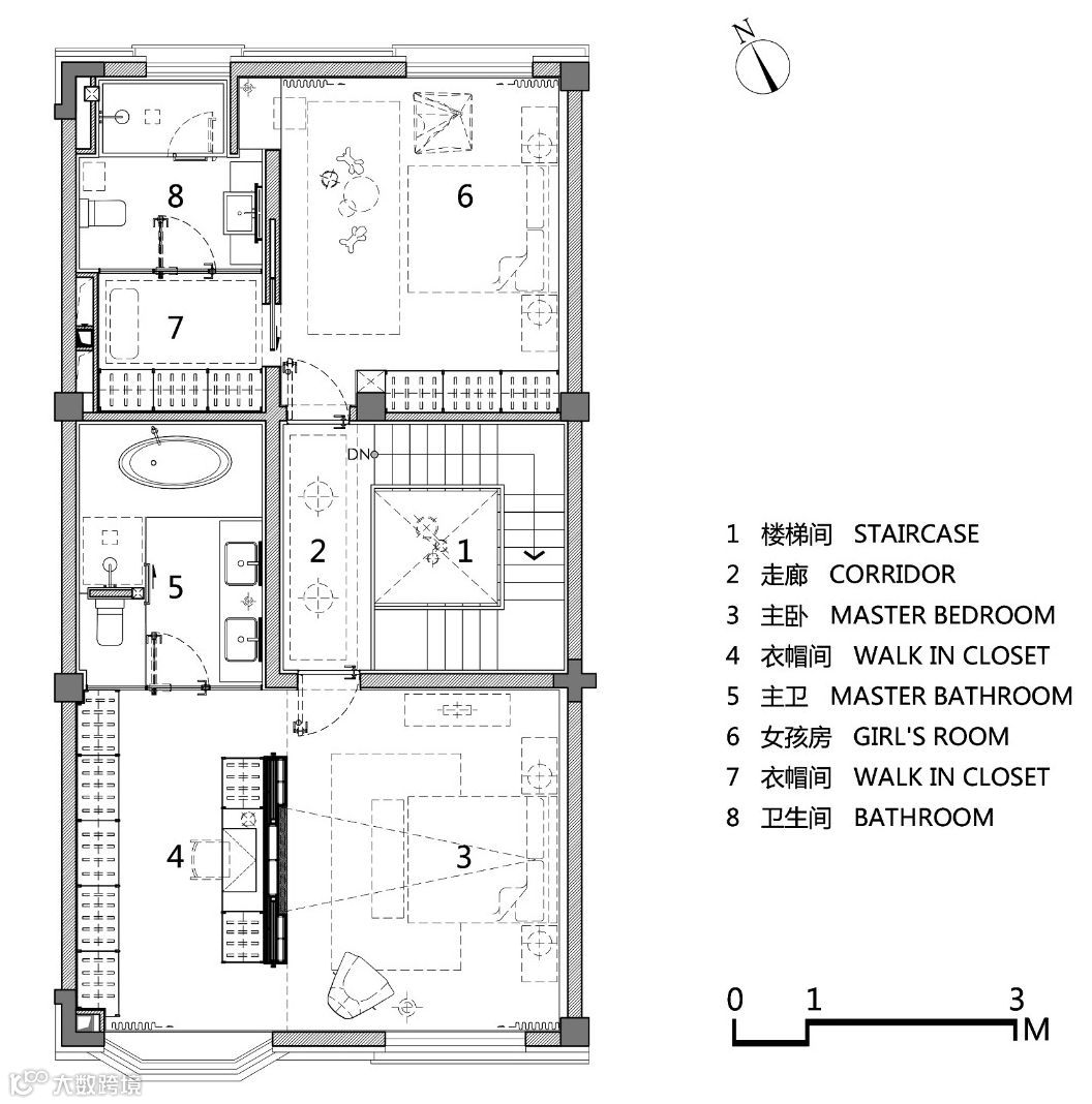
三楼主卧套间,靛蓝的背景线板,与大地色系和谐交融,烘托出自然沉稳而不失高贵的气场,又蕴藏诸多质感层次的碰撞与转换。



两侧床头柜,呈现方中有圆、圆中有方的组合形态,配合轻盈、神秘气质的画作,让一抹优雅回荡其间。

以电视背景墙为区隔,设置环形动线,半透明夹丝玻璃将卧室与衣帽间、主卫相串联,展现连贯且充满呼吸感的舒适姿态。

卫浴石材背景墙和一楼的线板设计如出一辙,并作造型延伸。台盆镜则近似椭圆的样式,柔化了棱角,让卫浴时刻更趋自在放松。



女孩房套间摩登复古,粉百合色映于背景线板,让甜蜜与梦幻感充盈。以“莫里斯的撅嘴女孩”为灵感,凝望的眼神里,流露出青春期少女对未知世界的好奇,以及对时尚与美的至臻追求。长条地毯上散落的花瓣凳,强化了功能性,卧室亦更显随性不拘。

梳妆台左侧破除常规,经由一块竖向玻璃与卫浴室隔断,让这一隅饶有情趣。

我们力求实现各功能分区的顺畅流转,赋予其专属匹配的氛围,同时注入一脉相承的共通之处,即以功用性为导向,又不放过任何一个彰显品质的细节。


