
通过空间的色彩、纹理、家具、配饰、光线等能很好的表达空间的情绪,大多数的私宅空间我们都在表达乐观,开朗,悠闲,体会温馨和快乐。
原始结构
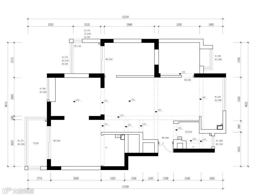
平面布置

把沙发后面原有的书房做了开放式的处理,这是在了解到客户在书房的使用要求上不需要保证完全的私密和安静(其实在其他卧室的功能区也设置了书房的功能,如果需要单独的空间到房间就可以完成)。因为原有结构靠近客厅附近是没有采光的,只能靠厨房的采光,空间进深的存在导致客厅光线非常微弱。把书房空间打开后紧靠书房空间的小阳台的采光可以对客厅的采光得到补充。
主卫的是暗卫,为了保证主卧的收纳和主卫的采光,在整组收纳柜体的中间做了部分雾玻来增加卫生间的采光度,同时也保证屋主不希望卧室能看到卫生间的一切的尴尬场面。







公众号:
连江县饰海装修设计有限公司
联系电话:0591-26151800
地址:连江县万星城9号楼207
室内设计师
施工监理
业务客服
联系人:
13774569997 黄
19859139511 刘
地址:连江县万星城9号楼207

