
拥有一个实用而貌美的大衣帽间,
几乎是很多都市男女的梦想。
但是局促的居住环境,本身已经拥挤不堪,
更别提腾出多余的空间来打造一个独立衣帽间了!
所以在户型面积的限制之下,
大家实施起来往往难得其法,
只好作罢,
任梦想始终还是搁浅了。

但是实际上,
在卧室里打造一个小型衣帽间,
也并非没有可能,
因为大家对衣帽间的使用面积,
总是存在着很高的预估,
其实只要好好设计一番,
你的衣帽间也可以变得实用而不失仪式感。
今天这篇关于卧室里的衣帽间设计,
希望可以为你带来灵感~~~
1
衣帽间不需要很大
在大多数人的观念里,打造一个衣帽间必须要有足够大的空间才可以,所以小户型根本没戏,这个想法未免过于绝对了。

其实,一个能够满足置衣和更衣等基本功能的小型衣帽间,只要4平米就足够了。
不过前提就是这个衣帽间的设计形式,需要三面设柜,动线上呈现一个“U”字型,130x220cm是一个不错的选择,柜深60cm,让一切空间功能都得到合理的分配。



2
衣帽间男女有别
向来只听说过厕所是男女有别的,那么衣帽间应该如何体现性别差异呢?
由于男女的衣物款式、置衣习惯、自身喜好等存在较大的区别,所以落实到衣帽间设计中,必须要对空间格局进行组织与变化,才能打造出一个属于自己的衣帽间。



比如:男士衣帽间需要设计很多不同高度的隔层或抽屉,用来放置领带、衬衫、皮带等,让整个收纳看起来整齐明了,不但拿取方便,而且也是高品质生活的象征。

男士衣帽间内部格局
而女士衣帽间则更多地考虑到大而完整的隔层空间,可以满足包包、帽子等杂物收纳。

女士衣帽间内部格局
3
充分考虑照明条件
小型衣帽间的面积是很有限的,如果没有足够的照明设计来增强空间感,让光源分布均匀的话,衣帽间的使用体验也会大打折扣。


因为柜子里侧的衣物难以看到,我们可以选择色温接近自然光的灯具,也可以使用暗藏式的衣柜感应灯,来避免集中式照明带来的衣物色差问题。



4
衣帽间如何布局?
首种情况
如果卧室内置卫生间的同侧区域,有一块面积与之相当的剩余空间,不妨将它改造成一个衣帽间。这样设计的好处是既丰富了整个空间机能,又不影响行走动线,实用性大大提高。
▼



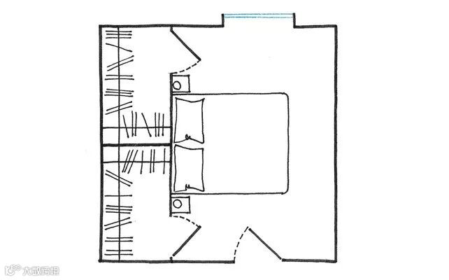
第二种情况
在一个空间深度达到400cm的卧室里,分隔出一个狭长型的衣帽间,也是一种有效提高空间利用率的设计手段。不过在过道区域,至少要留出120cm,以免产生紧凑、拥挤的感觉。
▼



第三种情况
如果卧室的入口正好斜对室内窗户,你也可以将整个布局旋转45度进行设计。在保证基本的生活需求和居住舒适性的基础上,衣帽间的面积也可以顺势增大,利用转角瞬间变身为一个L型衣帽间。
▼


如果你不想通过一些大胆的尝试来打破传统,认为保守型的设计更符合自己的生活习惯,也可以仅仅增加一个转角衣帽间就好了,其他布局保持不变。
▼


第四种情况
在空间宽裕,采光和通风条件较好的前提下,打造一个男士和女士并排设计的衣帽间,可以为主人提供更加个性、自由的使用体验。
▼


第五种情况
长方形的卧室可以像下面这样布局,既不影响生活动线,又能拥有一个方便更衣和收纳的专用空间。
▼








第六种情况
对于“衣帽间控”来说,如果家里空间实在局限,又不想轻易放弃自己的需求,那就可以参考以下脑洞大开的衣帽间模式,通过抬高床架的方式尽力挖掘出一个迷你衣帽间。
▼


没有条件也要创造条件,让你的卧室充满更多的趣味与各种可能性。




公众号:
连江县饰海装修设计有限公司
联系电话:0591-26151800 13774569997 黄
地址:连江县万星城9号楼207

