屋主是一位单身时尚女白领,对生活有自己独特的方式。作为精致的新时代独立女性,她的心中怀有浪漫的幻想,却不随波逐流,喜欢与世界温柔地对话,宅在家里是她最享受的状态。

设计师通过朋友接触到屋主时已经装修至木工完工,由于之前的拖拉,屋主也不清楚自己具体想要的感觉,加上材料的脏乱,屋主萌生新的想法,打掉现有格局重新设计装修,屋主说:“我想拥有大大的落地窗、足够的收纳空间、简洁舒适,当阳光洒下来也是如此的惬意”。
原始平面图

本案的原始户型为三房,原设计师在格局上没有进行改变,主人房的门改至阳台处,现设计师将设计的重点集中在了大大的落地窗、足够的收纳空间、简洁舒适几个关键点上,包括客厅餐厅、主卧衣帽间的配比、也成为了本案调整的关键点。
平面布置图

改造后的户型图,将客厅连接主人房的墙体全部拆除,然后再进行空间划分,合理增加客厅电视隐藏柜,以及浴缸,打掉了客厅的阳台形成了大大的落地窗,因为一个人屋主希望能在公共区办公,西厨,聚会等功能,设计师设计了一个多功能岛台,满足了屋主的诉求。
入 户

入户正对客餐厅,用黑色铁制廊栅做玄关,在半遮半掩的同时增加装饰效果,黑色铁制廊栅做成了推拉门的形式,看上去是推拉门,实际是固定的屏风。没有复杂的装饰和色彩,简洁清新而又时尚感十足。

设计师通过材质的选用,空间功能的切割与细腻入微的美学来营造休闲的居家环境。
客 厅

客厅的落地窗承接了阳光的洗礼,以“白灰木”的全屋搭色,让客厅空间看起来宽敞明亮之余,更添宁静雅致的休憩氛围,结束一天的繁忙工作后回到家里,情绪也随之被安抚舒展。

客厅采用无主灯设计,利用点状光源+线型灯带来照明;一方面,让光线分布更加均匀,避免了使用主灯带来的金碧辉煌的效果,营造出低调内敛的空间气质;另一方面,线型灯带独具线条美感和立体感,可以带来不一样的视觉感受。

打掉了出客厅阳台的推拉门,整个把阳台归纳到了客厅,满足了屋主对大落地窗的憧憬,整排的电视柜可以收纳平常零碎的物件,设计师寻找出于屋主的艺术共鸣,与自然触动的情感交流,呈现出惬意的居家氛围。


沙发墙面以灰蓝色墙漆为主,右侧柱子特意留白,在柱子上方开了一个2公分的小槽,镶入黑色金属条,与入户玄关处的金属廊栅相呼应,看起来整个空间很连贯,有延续性,同时增加现代感;深色布艺沙发与浅色藤椅结合,在颜色、材质上都有很大的反差,但摆放在一起却显得挺和谐。

灰蓝墙漆与白色烤漆造型电视柜结合显得有些小调皮,但加上实木地板的纹路使之又沉稳了许多。

大片落地窗可以一览窗外的风景,墙面引入质朴天然石材,配上白色纱幔脚踏实木地板,坐在藤椅上小憩一会,翻翻身旁的杂志,生活都显得惬意起来。户外的山光水色仿佛信手捻来,可以随处而坐,随时沉浸在大自然中。
餐 厅

餐厅延续了客厅的整体效果,同时又展现出自己的新意,餐桌其实是水吧与一整块胡桃木衔接而成,这块区域不仅用于就餐,平时也可以在此用电脑办公,餐桌岛台一体,是设计师设计好后找厂定制的。

在开放式空间设计中,客厅、餐厅保持互通相连,灵活运用木色,给予空间温暖的触感,木地板的选择了偏黄的色系,扩大了空间层次感,创意的采光设计与整体空间材质和谐立体,凸显了现代与时尚。

电视柜与墙体、主人房设计上处理成一个整体的面,主人房的房门被设计成了隐形门形式,运用了有质感的木饰面营造出不经意的“门”,进入这扇门的背后会发现别有洞天。

电视柜右侧可进入主卧,将门与深棕色护墙板巧妙的结合在一起,给空间带来整体性的同时增加隐私性。

黑白灰系与木饰贯穿空间,MELT吊灯的灵感来自于融化的玻璃,通过镜面抛光和真空金属化,塑造成不规则的形态,如同融化的冰川内部,炽热的岩浆或者深空的图案。这是一个有机的、自然主义的照明灵感,拥有非凡的光学效果,使用在家居空间中格外吸睛。

设计师非常享受极简设计带来的纯净与雅致,力求小空间功能性最大化,定制具有“收纳功能”的整面柜体,各种杂物都拥有了最佳的容身之地。

书 房

书房整面墨绿墙+到顶开放书柜成为吸睛之笔,碟形吊灯照亮了整个房间,仿佛让人们置身于书海,在里面遨游,做着最平常的琐事,这些平凡的时刻组成生活中最温暖的部分。
卧 室

卧室风格延续客厅的现代极简风,低调柔和的配色,减少过多的室内包装设计让空间打造更加舒适简洁的卧室环境。

色调以灰色为主,放松身体每一处神经,时间在这里变得缓慢,给予她适合独处思考的私密空间。专注于此刻的宁静,花点时间与自己对话,为她带来更多的领悟与期许。

深灰色软包背景墙使空间柔软了许多,实木床头柜配上精致的金色小吊灯Seeddesign打破了空间的沉闷。整个空间简洁大气,单纯不繁琐,营造出宁静、优雅的睡眠空间。
衣帽间


步入式衣帽间是木工师傅现场定制的,左右两侧为叠衣区,下方为多个抽屉可收纳袜子领结等小件衣物,分类明确,满足屋主对收纳的要求。
卫生间


设计师延续了整个空间的配色方案,原木色搭配白色与黑色,避免造型卫生间的压抑感,这里通透明亮,清爽且美好。
效果图




轴测图

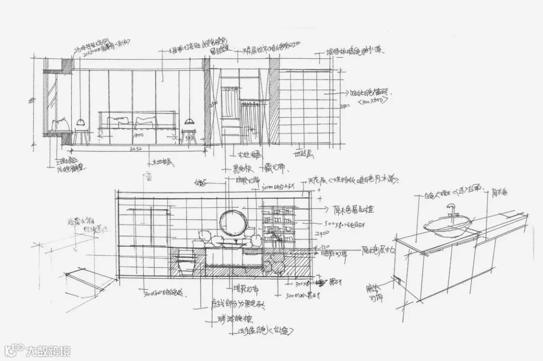
手绘图


本案整个空间运用多种造型堆叠空间层次,凸显纯粹而定静的本质,空间结构以线面的连贯保持空间的连续,让屋主体会空间的沉稳与内敛。
公众号:
连江县饰海装修设计有限公司
联系电话:0591-26151800
地址:连江县万星城9号楼207
室内设计师
施工监理
业务客服
联系人:
13774569997 黄
19859139511 刘
地址:连江县万星城9号楼207

