大数跨境
0
0

瓷绿色空间,诗意的奢华

瓷绿色空间,诗意的奢华 连江县饰海装修设计工程有限公司
2019-11-30
0
导读:真正的奢华,乃回归生活的本质生活应该是从容的、诗意的 以简洁、当代的设计语汇将东西方美学的差异糅合重新定义一


真正的奢华,乃回归生活的本质
生活应该是从容的、诗意的
 

以简洁、当代的设计语汇
将东西方美学的差异糅合
重新定义一种都市诗意的生活方式
 

瓷绿色的灰雅空间里
静谧内敛的月影灰
轻快热情的探戈橘
犹如律动的音符
随性优雅间赋予空间情感张力
 





一把椅,一卷书,一缕细风
还原闲达自适的生活
通过光、影、材料等细节处理
从视觉、听觉、触觉传递沉浸式空间体验
让居者获得纯粹的艺术享受
 
非封闭式的围合与恰到好处的挑高
邀清风穿堂而过
走进小院,沏一壶茶
让身体与心灵在自然光的投影中愉悦共舞
将生活本该有的诗情画意还原
 


清雅大理石融入生活的自然肌理
与熨帖的真皮、丝绒
打造低调内敛的气质空间
感受诗意生活带来的视觉与触觉享受
自然惬意,浪漫优雅

百叶窗创造光与影的朦胧之美
跳动的光影节律瞬间唤醒空间的自然诗意
金属吧椅鎏光闪烁
东西方优雅相糅
时光变得缓慢而从容
 


流畅又富有细节变化的金属线条
呈现蜿蜒迂回的结构美感
大片留白传递优雅静谧的空间情绪
无声中将生活的智慧缓缓道出
 

颇具东方人文韵味的银杏绢画背景
营造安静、舒适的休憩环境
用艺术装点生活
平衡理想与现实、心灵和身躯
 


素雅色调和童真趣味点缀平和
散发舒适而雅趣的生活气息
 


黄铜点缀威尼斯水滴造型玻璃灯饰
多了一份值得细细品味的艺术气息
精美的西餐具及花艺陈设
让人不自觉联想到生活原本的模样
内心的喜悦和欢愉油然而生
 

充满东方艺术品位的家具
述说精致的生活和高雅的艺术审美
颇具东方水墨韵味的书房
讲述内心的风雅和从容



居住艺术最完美的演绎是
摆脱设计和风格本身的束缚
感受浸透于空间细节中流露出的“优雅”品位
 

生活收藏诗和远方
一个糅合东方诗意与西方文化色彩的家
一半浪漫 一半优雅
为人们创造诗意生活一直驱动我们前行!


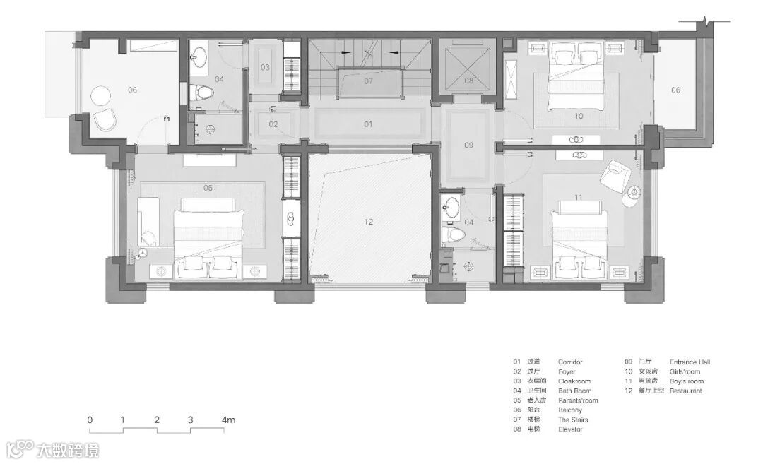
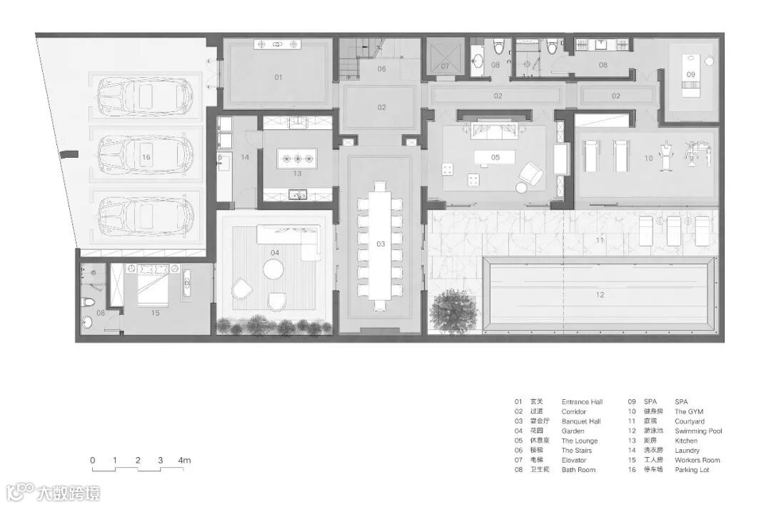
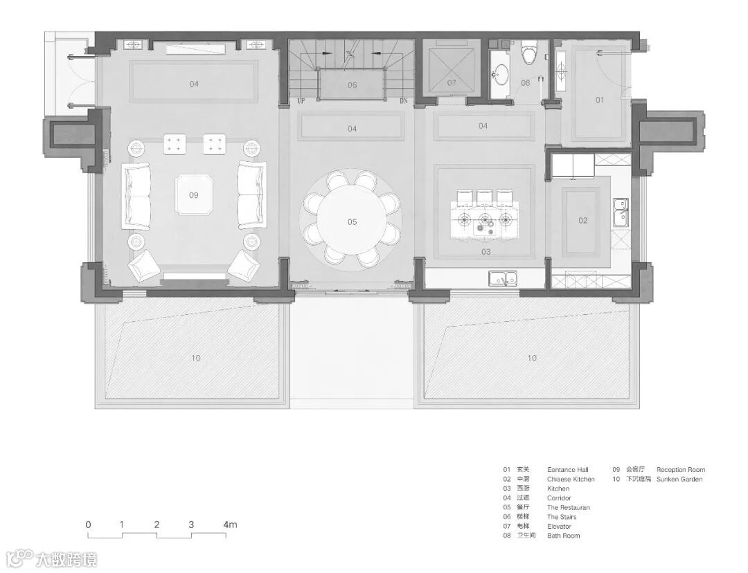
 平面图  
 图 | 一层
图 | 二层
图 | 三层
图 | 负一层
图 | 负二层


关注我们


公众号:

连江县饰海装修设计有限公司

联系电话:0591-26151800

地址:连江县万星城9号楼207




招聘

室内设计师  

施工监理           

业务客服         

联系人:

13774569997 黄

19859139511  刘

地址:连江县万星城9号楼207




【声明】内容源于网络
0
0
连江县饰海装修设计工程有限公司
室内,外装修设计
内容 390
粉丝 0
连江县饰海装修设计工程有限公司 室内,外装修设计
总阅读325
粉丝0
内容390