
▲ 建筑面积120,总造价35万,本案梳理雇主对这套房子的实际需求,结合雇主的现状以及房屋现有布局的通风、采光、利用率的合理性进行布局改

▲ 平面结构图

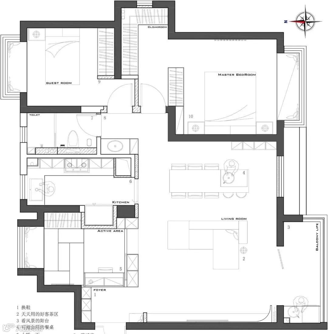
▲ 平面布置图

▲ 玄关打造一组上下分体的收纳柜,中部留空辅以灯光增加层次,满足入户生活需求,灰色KD板从入户延伸至公领域空间

▲ 客厅,地面通铺木地板,极简顶面无主灯设计,点光源与隐形灯光更契合简约风格的干净利落

▲ 抹茶绿的方正沙发搭配圆形茶几与圆形地毯,方圆结合更加和谐

▲ 电视背景选择大白墙,左侧弧形造型可挡窗帘,让其跟背景墙衔接,右侧利用层板与隔断墙分出电视置物台与玄关换鞋凳的功能,顶面是出自设计师的竹竿灯,在简约的现代居家中融入特殊元素

▲ 电视墙一角

▲ 宽敞明亮的公领域划分成互通的客餐厅场域,沙发靠背后放即是就餐区

▲ 将餐桌与西厨吧台融合,原木与纯白搭配,将餐边收纳靠边放置

▲ 去除门厅、北卧和厨房的部分墙体,转化为收纳柜的形式,调整尺寸改变局部区域的尺度及相互关系,保证视感和比例的和谐

▲ 厨房进门设计成隐形门片

▲ 厨房调整墙面借用北卧空间,将双开门与吊柜嵌入墙体,黑白搭配的厨房,简单干净

▲ 经过改造后的北卧,延续白色墙面与灰色KD板的元素,满足独立办公和客房功能

▲ 次卧是将来的儿童房,现在男孩三岁,将来可以根据孩子长大后的喜好变化软装

▲ 主卧,深咖色的硬包搭配白色乳胶漆墙面,选择隐形灯光与墙面错落设计做墙面过度,搭配同色系的皮质大床与床品,营造柔和静谧的就寝氛围

▲ 床头一角,局部柜体做开放式设计,满足床头置物与书籍的放置

▲ 舍弃内卫功能,改变床布局让睡眠区更安稳,更大化增加收纳能力

▲ 卫生间,墙地面通铺深灰色的瓷砖,搭配顶面的白色集成吊顶,壁挂马桶+淋浴区导流槽设计,利用包管厚度增加壁龛
公众号:
连江县饰海装修设计有限公司
联系电话:0591-26151800
地址:连江县万星城9号楼207
室内设计师
施工监理
业务员、前台
联系人:
13774569997 黄
19859139511 刘
地址:连江县万星城9号楼207

