
玄关

入户廊道与厨房之间隔墙,一体两个立面形成小V角,以微调的隐晦手法扩展廊道,不限于入户端景的局部处理,更是关照几尺廊道的入户感受。
趣味传达开阔通透,玻璃隔断显露的厨房配色与比例分割,看似无意识的装饰巧合,不乏殚精竭虑的自然手法填充空间情绪。
客餐厅

整合空间一体化,气息的徜徉与互动,窗外绿意室内肆起,沙发的色、材质的面,与光的舞动,影的斑驳,赏画亦是画。


顶面艺术装置随风而起,摇曳变幻,静默表演一场舞剧,等风归,等来去。

自月夜到白昼,由林野至人间,裹挟优雅馥郁的绿散落客餐厨始末。
书房

自白立体、结构的交接,书房开放式呈现对话过渡,亦外亦里、亦静亦动,细部的探究触及,立面凹凸感、层次与渐进、光的亮度与阴影神秘多变的姿态创造,材料肌理的表达变化见著于光之中。

皎洁的月光穿越圣殿,载指引以探索。
楼梯走廊

知实用的克制手法推侧墙,留出空白的楼梯一旁,变量削体的空间形态,从感受情绪出发,得到比失去的远远要多。
多角度光线的投射,水平空间的互动,垂直空间的交流,看似闲置的区域,却是给予太多空间感受可能的隐晦技法,打开整个居室上下楼层之间更多的流畅互动。

质朴泥灰色的侘寂氛围, 坠入星辰云海、踏入乡间泥塘,风吹起的褶皱波澜,水荡漾的卷曲与柔让,生物体多变的形式,炼万物形态藏于精神之上。
卧室


效果图






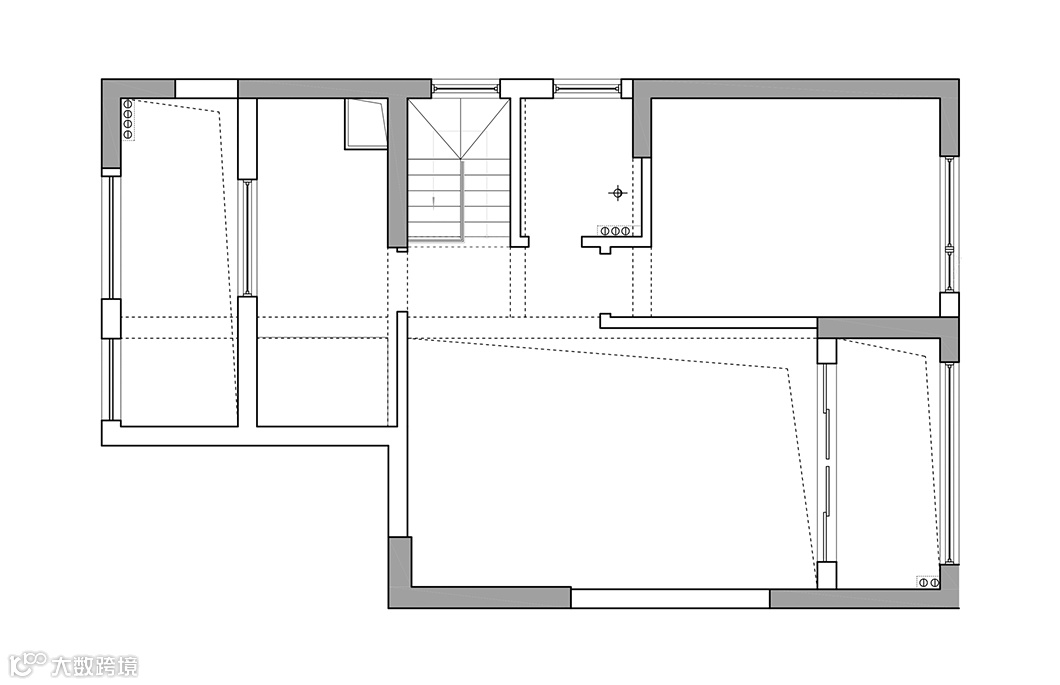
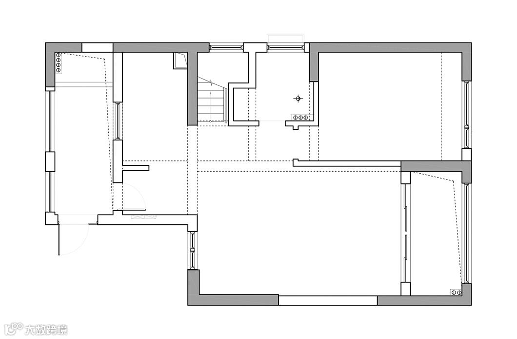
设计图纸
△一层原始图
公众号:
连江县饰海装修设计有限公司
联系电话:0591-26151800
地址:连江县万星城9号楼207
室内设计师
施工监理
业务客服
联系人:
19859139511 刘
13774569997 黄
地址:连江县万星城9号楼207

