点击蓝字关注我们
项目名称:打破边界 揽境入家
设计总监:郑兰叶
设计助理:林武
项目面积:170m²
项目户型:四房两厅三卫一阳台
复式住宅全案拎包入住
生活在时间长河之中浸泡着,发酵着
Living in the long river of time soaked
and fermented
在空间中酿造属于居者的浓烈酒香
Brewing the strong aroma of the resident
in the space
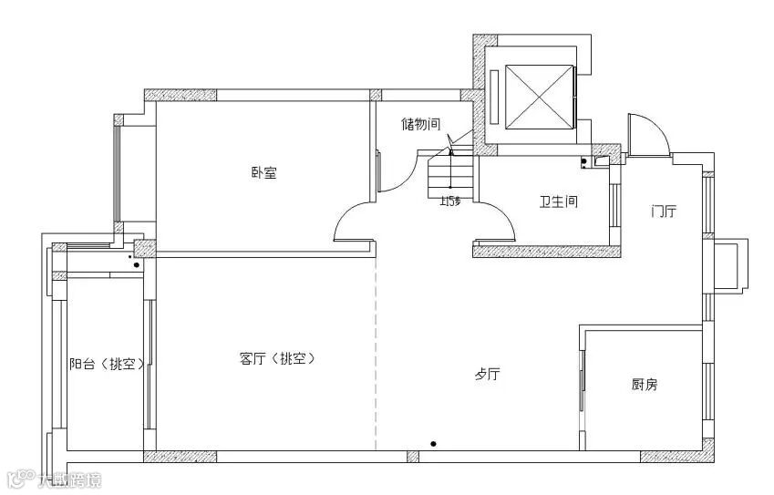
一层原始平面图
一层平面布局设计图
为入住后的实用性考虑
全屋利用多处空间打造收纳区域
榻榻米床、嵌入式鞋柜、储物间等
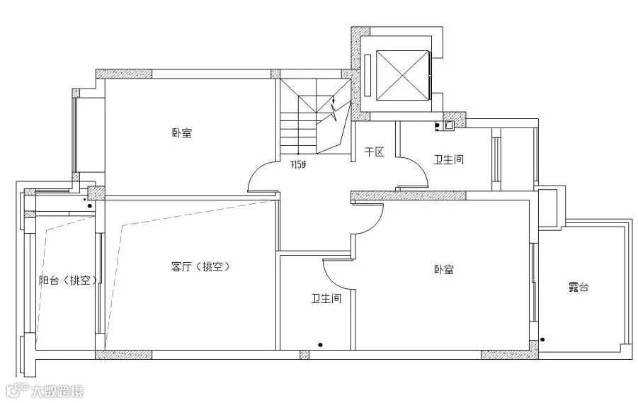
二层原始平面图
二层平面布局设计图
二层主要是家人的休憩处
打造了主卧、儿童房、母亲房
主要的三个空间
客餐厅一览图
灰色——
游离于所有颜色的边缘
它的特别
来自于洗净铅华的淡然与不争
即使外界喧嚣不断
它仍旧宠辱不惊
默默氤氲着悠然浅笑
餐厅
是谁来自山川湖海
却囿于厨房与爱
Who is from the mountains
lakes and seas
But confined to the kitchen and love
餐厅是家的一剂调味
承载着每个人对于生活的热爱
半开放厨房兼具
区域感、互动感和通透性
鱼骨拼地板的通铺
以优雅而细腻的木纹理
赋予空间更强烈的立体感
客厅
作为风格与格调的重要载体
客厅依然是居室的核心
As an important carrier of style
The living room is still the core of the room
所谓万物之始,大道至简,衍化至繁
现代风格的设计中
处处皆是细节
色调和谐而统一
完全打通的阳台
搭配无主灯设计
光影与空间交错变换
主卧
将二层原户型的挑高处打造成主卧
开阔的空间带来的不仅视觉上的舒适
增加的更衣间、阅读区、水吧区
提高了房间的功能性
暮色低垂,灯光温柔
The twilight is low and the light is gentle

闪耀着无限温柔与幻想
Shining with infinite tenderness and fantasy
设计提案


