
房屋信息 | Information

77㎡简约小三居,
原户型是个紧凑的小三居,硬伤是原规划位置餐厅厨房空间拥挤,厨房台面使用率低,操作设备不足;称重结构相对密集,室内阳角多、通道侵占收纳空间、通透性差。

▲原始结构户型
有家装饰设计师认为,一家四口居住,收纳量和通透感才是刚需,私密性不太强求,于是,把剪力墙以外的墙体全部拆除。
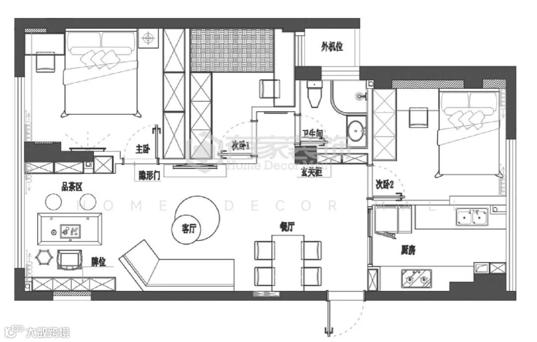
▲平面布局图


收纳空间,

开门半径内,贴着入户门边框做了一个超薄玄关柜,作为小件杂物区,且作为换鞋区及仪容整理区。

换鞋区再往里,是一组能实现收纳的顶天立地柜。
9㎡厨房塞16个厨电,



阳台纳入客厅休闲区,
根据业主的需求,有家装饰设计师将原景观阳台纳进室内。

移门挤出衣帽间,
打开卧室的隐藏门,进入主卧。

有家装饰设计师借用了飘窗的空间,采用了简约的香槟色,避免审美疲劳。另一侧定制了一墙15cm的超薄内嵌衣柜。

点赞+在看 支持一下吧

