点击蓝字关注我们
项目名称:缦 · 合
设计总监:郑兰叶
设计团队:罗宇航 刘畅
项目面积:230m²
项目户型:顶层复式(带空中花园)
设计背景
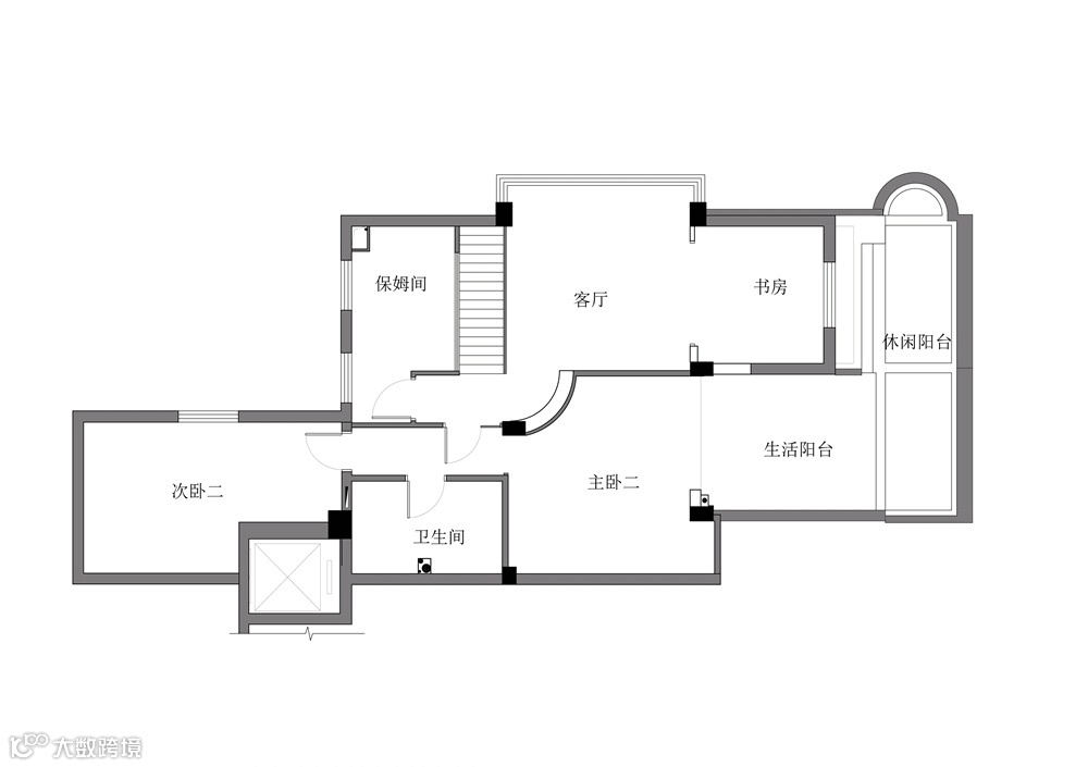
总平面图
本案为市中心的超大顶层复式学区房
左区复式260m²
五年前由我们设计并全案落地
而为了满足三代同堂不局促
业主新购入了右区复式230m²
——也是本案新的设计项目
更高的挑战,更高的责任
也是更高的信任与默契
三代同堂,两套联通
设计师整合空间打破原有格局限制
从业主角度出发
全屋无障碍扶手关怀老人
地面走动无门槛无落差
并设计复式楼专用电梯
对生活热爱的无限延展
才能成就界域无垠的理想国
空中花园
行走在城市街道
我们惯于仰视身边的高楼大厦
殊不知在我们头顶
还藏着别样的风景
花 园 全 览
当钢铁巨塔插向云端,水泥路面铺满脚下
你是否想过有一刻
可以逃离城市的喧嚣
重新感受自然的清新呢?
一个屋顶就是一个旅行的目的地
空中花园带你回归自然
顶楼的空中花园
是家人养花弄草的最佳去处
更是一处宁静的心灵栖息地
里面藏着想不到的都市仙境
禅坐院落
春夏秋冬四景皆收眼底
风霜雨雪天象不请自来
徜徉石板路,侧听流水声,小隐于闹市
平面图一览
一楼平面设计前后
在平面布局上
设计师考虑功能互补
二楼平面设计前后
本案通过显露出空间的优雅与张力
既有悠远的东方自觉
也不乏时尚的诗意喧嚣
呈现自然舒适的生活理念
室内设计
如何合理的设计过渡
能让左右复式保持既和谐又独立?
在这座城市里
回归自然,摒弃繁杂的生活
注重内心的真实感受
享受温馨家庭生活
门 厅
顶层复式的重装设计
光影让空间更加生动
门 厅 细 节
以简驭繁
不仅带来了丰富的视觉体验
也营造出更具设计感的的居住空间
使空间灵动内敛
独具深意,简奢之美就此呈现
为了增添别致和柔和的空气感
选择了白色与木调的结合
光带的柔光从台阶而下
布满了整个温柔空间
公 区
为满足业主的实际需求
公区的区域划分精致而功能齐备
内嵌式的扶手设计温馨关怀
餐厨区只用作西厨与简餐
空间开放不显局促
一体化的设计
视野上一览无余,整洁舒适澄明
呈现出悠然自得的生活态度
公 区 细 节
在素雅的基调中融入原木与柔光
简单的线条设计中
却透露出整个居室打造时精心的考量与细节的把控
浪漫与美学并存
艺术氛围拉满的家居空间
提升居家的幸福感
长辈房主卧
长辈们大都阅历较深
爱好和品味更有所偏好
空间装饰突出主格调
与空间装饰、家具造型及风格相协调
形成舒适、安逸、稳重的氛围
主 卧 细 节
对于长辈们来说
流畅宽敞的空间更方便于他们走动
多功能区域的设计与流畅的动线
一屋之间就能满足更多生活需求
色调的选择以淡雅为首选
灰白的主色调
适于营造和缓放松的气氛
长辈房次卧
无主灯的设计实现更加灵活的灯光控制
更能营造出不同场景需求的灯光氛围
追求更为舒适的照明环境
次 卧 细 节
清晨,在卧室中睁开惺忪的睡眼
打开窗帘拥抱阳光拥抱美好
夜幕归来,在星辰皎月的陪伴下入眠......
儿 童 房
自我风格和格调的展现也是要点
清新的蓝调勾画孩子有趣童真
隔间书房的设计
是功能与形式的完美统一
方便家长监督孩子学习
儿 童 房 细 节
衣柜柔和的肌理相互协调
书桌糅合蕴藏着浓厚书卷气息
给予空间足够的呼吸感和高级感
把品质生活展现得恰到好处
春山花渐开,夜雨一卷书
满藏墨香的书房
提供学习成长的静心之所
倾泻的阳光,充盈着自由的气息和温度
低饱和度的空间色彩奠定了宁静的睡眠氛围
身处其中,便让人身心舒缓,自在而息
结 语
三代同堂的理想家园
爱与温情相伴


