/
有家 · 精选案例
Home Decor Mall
Selected cases
/
有时候,断舍离是不能解决问题的。
本期有家的客户Yuki是一名美术老师,职业原因,大量物品无法丢弃,须保留在家里,奈何房屋户型小,需要整体空间规划与收纳设计。
房屋位置 | 福建•东方名城悦郡
房屋面积 | 34 m²
房屋户型 | 一室一厅改两室一厅
设计风格 | 现代简约
常住人口 | 1人,妈妈偶尔居住
设计/施工:有家装饰

设计理念:提取生活气息,诠释生活品味
擅长类型:别墅/大宅、普通住宅、复式LOFT、小户型
擅长风格:简约、轻奢、法式、东南亚、地中海
房屋信息 | Information
BEFORE丨装修前
Yuki购置的是一套毛坯房,套内实际面积只有34㎡,是个带小暗厅的一居室。
装修后,将主要供Yuki生活使用,其妈妈偶尔过来。
THE PLAN丨设计前·原始户型图
· 业主诉求 ·


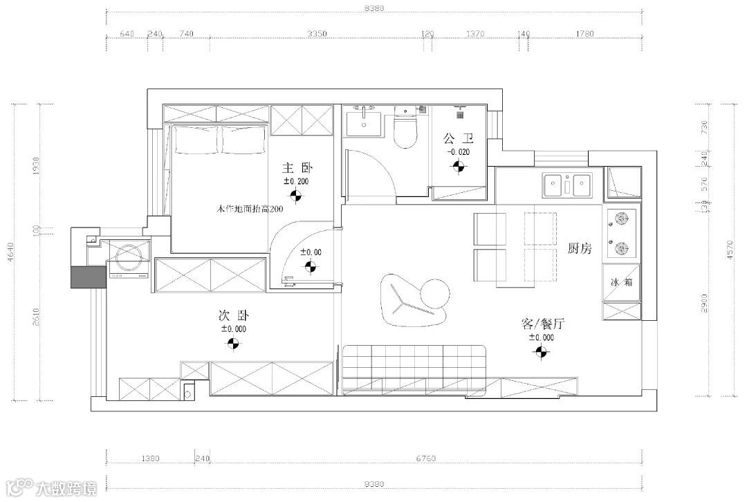
THE PLAN丨设计后·平面布局图
有家设计师通过装修设计,蕞终一居改两居,全屋隐形柜门,极致利用空间,得到了一个麻雀虽小五脏俱全的温馨小家。

有家设计师借助空间,鞋柜定制了超薄款,和防盗门取齐,看起来凸出墙面一点点,不挤占玄关空间,也算是很会“抠面积”了!
有家设计师将餐厅与厨房岛台结合,岛台摆置两条餐椅,解决了烹饪、吃饭两个场景,实现餐厨空间一体。
针对厨房锅铲调料太多的情况,有家设计师设计了收纳系统,使其通过收纳井然有序。
主卧是Yuki的房间,对她来说,卧室要承载日常梳妆、休憩多个需求。
有家设计师根据卧室大小,把床贴墙,留出房间中的空地(为了使用书桌、衣柜等其他家具更方便)。
有家设计师将窗帘设置成百叶帘的一种,可以调三种模式,全开/全遮/半遮。
其余空间都设置了隐形柜,满足了全屋的收纳需求,使小空间也能发挥大用处。
以上,就是本期真实客户的装修案例啦。


Q:装修中有哪些令你感动的小故事?
我发现通过巧妙的设计和布局,虽然我家是小户型,但来朋友也不会拥挤,几乎在所有空间都很自由舒适。
企业荣誉/Honor
△
可上下滑动查看更多
往期精选案例/Editors' Choice
点赞+在看 支持一下吧



