在全世界不同地区的不同文化中,刺青已经成为一种艺术形式,这种形式可以象征着通过仪式、献身于自己的信仰或者勇气的装饰。自1997年以来,巴黎刺青店tribal act的从业者们便通过增设人体穿孔以及其他改变身体形态的业务扩充了刺青这门艺术的内容,并因此为工作室赢得了享誉法国乃至全球的声誉。为了寻求一种能在整个工作室中描绘出这种激情的方式。
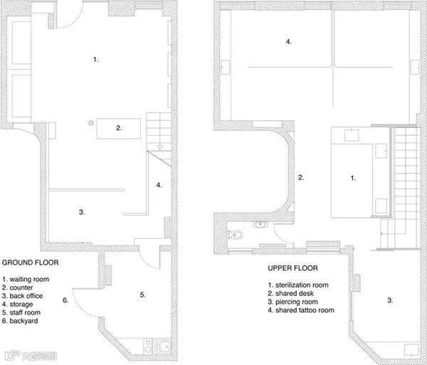
整个一层被改造成了温馨舒适的欢迎空间,来访者可以在此购买独家设计的珠宝、阅读杂志、浏览刺青艺术家的刺青作品集,或者只是等待他们的预约到来。设计只利用混凝土铸件进行了细微改动和增补,改造后可通过楼梯直接到达上层,上层中央设有消毒室,消毒室四周用透明玻璃墙与外部相隔。穿孔室设置在面向后院的单独空间中,刺青室则是朝向临街面的一个大型共享区域,区域主要色调是白色。由于刺青空间利用三个窗帘将整个空间分为两个、三个或者四个单元以创造隐私空间,于是现在,来自世界各地的刺青师们可以很容易的利用这种自适应设置结构修改或者适应自己的工作需求。


设计师建议使用佛兰德斯原始派画家hieronymus bosch 的作品印在隔断窗帘上,以此幽默的说明刺青和人体穿孔的具体做法,同时为刺青者刺青时漫长的疼痛时光提供了迷人的美学欣赏物作为消遣。与此同时,收银台,玻璃展示柜、照明灯具、沙发等家具都是从跳蚤市场和二手商店淘到的。建筑师坚信:“刺青和人体穿孔店通常都是店主自己动手布置,并不会加入太多设计元素,在这一方面tribal act在此成为了先驱,他们委托建筑事务所来重新设计他们的工作室同时发明新装置、新设置以及新规则。”




佐泽设计专注于豪宅、别墅、商业空间、星级酒店设计、施工、软装一体化配套服务。
官网:
www.591zz.com
免费热线:4007709383


