
![]()
空间是生活的容器,雅韵于内,品味与质感的兼得,基于场域使用的挖掘,让烟火之气建立永恒的写映。优雅与自天成,不动声色的奢华基调,在时间的淬炼中历久弥新。浅色为基,棕色赋语,在此人居空间中,审美趣味的表现酣畅淋漓。
Space is the container of life, with elegance and texture in it. Based on the exploration of field use, the atmosphere of fireworks establishes an eternal reflection. Elegant and natural, the silent and luxurious tone is timeless and timeless. Based on light colors and brown language, the expression of aesthetic taste in this person's living space is vivid and vivid.
- 福州 -

项目名称:福州蔚蓝国际
项目地址:福州
装修风格:现代轻奢
主案设计师:林永志
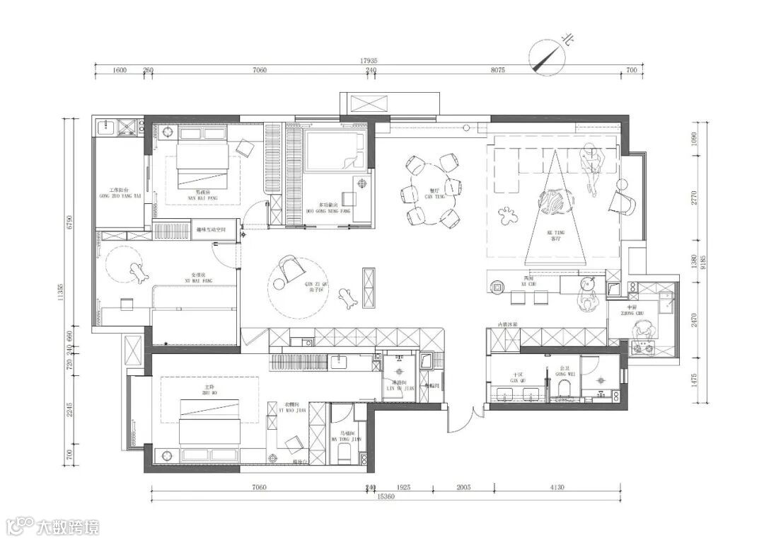
面积:176m²
设计团队:一味装饰设计
Project Name: Changle yongshuo Longting bay-12#
Project address: Changle
Decoration style: Modern
Main designer: Lin Yongzhi
Area: 176m ²
Design team: blindly decoration design
![]()
Living Room
客厅


In the luxurious order and elegant demeanor, reshape the home charm of life. The natural texture of the marble background wall is complemented by the storage decoration of wood grain grilles, showcasing both taste and style. The comfortable scale of the overall space, open vision, and boundless field, as well as the construction of the entire spatial order, break the traditional single interest and interpret the unique romance of Italian elegance.


The unique decorative temperament, elegant and luxurious blending, and different expressions of decorative characteristics make the entire space color coordinated, presenting the ideal living with treasures, and interpreting the imagination of humanistic and artistic life. A bright flame adds color to a corner. The beauty of artifacts, decorative style, and embodying the artistic conception of beauty, taste classics, and express elegance and luxury in language.
![]()
Restaurant
餐厨






![]()
Study
书房


须弥光影下的克制,生活的演绎以另一番余韵呈上。亚克力与纹格的运用以微观处的艺术蓝图,突破平面的三维灵动,替代墙体形成柔和的界面,承担起了雅意的递进。奢于形,雅在意,艺燃情,此间生活走向更多样性的探索可能。
The restraint under the light and shadow of Xumi, the interpretation of life, presents another lingering charm. The application of acrylic and patterning breaks through the three-dimensional flexibility of the plane through the artistic blueprint at the micro level, replacing the wall to form a soft interface and assuming the progressive elegance. Luxury in form, elegance in care, art in passion, and the exploration of more diverse possibilities in this life.
![]()
Bed Room
卧室




A desk with a wooden countertop and transparent book chairs are reserved by the designer as a small space for solitude. It is an immersive and realistic sense of scene, presenting an open pattern of functional integration and aesthetic juxtaposition.Art is abstract, the future is imagination, and the simulation of life scenes awakens the spiritual resonance in a unique Italian atmosphere.

