“人间存一角,聊放侧枝花。”
作品名称 | Name/花梦卢浮影
项目地址 | Address/福州·榕城江上图 · 灏云峯
项目面积 | Area/110㎡
项目户型丨Project layout/三室二厅
整案花费丨Whole case expenses/38w
项目类型丨Project/毛胚-全案设计+半包施工
主创设计 | Designer/姚秋智
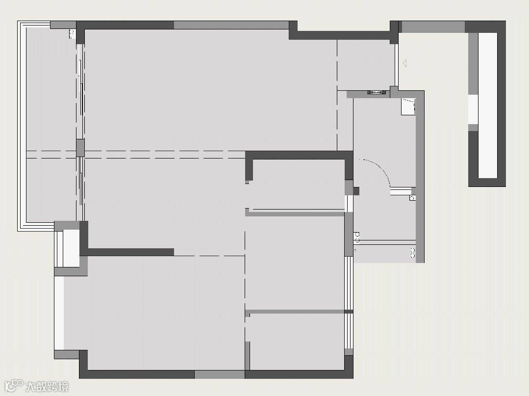
🔘原始户型图
🔘户型分析
原户型是三房两厅一厨两卫双阳台的结构,入户即为封闭式厨房,面积相对较小,厨房一侧的阳台空间狭小,整体布局很局促,客厅整体视觉面宽相对较窄,南向阳台被墙面分割变小。
🔘业主需求
●业主是名花艺师,需要陈列花器与植物的空间,并带有浓郁的艺术气息。
●能有一个宽敞有格调的大客厅
●接受开放式空间,希望整体有质感格调
●预留一间主卧,主卫需配备浴缸
●一间儿童房,需要上下床
●完整的收纳空间
🔘平面改造方案
平面布置重点分析:
1.拆除玄关与生活阳台墙体,打通三个空间做L字型开放厨房。
2.冰箱与盥洗区向餐厅借位,餐厨空间尺度都恰到好处。
3.拆除阳台墙体,并入客厅,抬高地台,同时形成一个大方厅,屋主也就拥有了一个“植物园”。
4.书房融入客厅,增设书桌,让公区拥有更多的功能,客餐书房LDS一体化设计,整个餐厅与客厅、书房形成高效互动交流。
5.儿童房向主卧借位做一字型衣橱,与书桌连接上下床,满足孩子的衣物收纳与生活居住。
🔘系统收纳图
收纳体系分配:本案全屋都设计了大大小小的收纳空间,公区主要是设计了花艺陈列架,因为屋主小姐姐是名热爱艺术的花艺师,可以满足屋主的直播办公需求。
🔘采光对流图
中间户的原因,餐厨空间的采光是欠缺的,公区我们没有进行分割,做开放式书房,让整个空间也更加明亮通透。
入户迎景,阳台敞心扉,红椅绿绕,天灯柔辉,圆桌静候时光美。
一人悠然坐,一人轻倚旁,圆桌映照双影长,静谧时光缓缓淌。
厨房空间将原先小阳台的空间融入了厨房,增加厨房的使用面积,得到一个超长的L型厨房,让操作空间与收纳空间更大;冰箱与洗手台向餐厅借位,洗手台与餐厅形成互动关系,考虑到后疫情时期,进门就能洗手;餐厅空间做了一个餐边柜,同时也是一个小型吧台,可以在这块区域做咖啡、调酒。圆形餐桌搭配圆弧形软膜天灯,为餐厅补充照明。
一人静坐沙发隅,书页轻翻岁月长;一人斜倚旁相伴,共享此刻宁静光。
我们将客厅与书房、阳台三个空间融为一个大方厅,客厅整体的感觉是充满艺术气息的;没有做传统的电视背景墙,而是做了一面壁龛的造型,根据屋主需求做了喜欢的陈列方式;包括书房这一块也是,摆满了大大小小的装饰品与绿植,并且设计了一个罗马柱,打破空间的死板,更加灵动。
整个阳台空间我们分为了三个功能区,一个是家政区,洗烘套装与洗衣池组成,增设柜体满足家政收纳;中间区域是休闲区,浇浇花草,盘坐在红色转椅上,看看书放放空,还是很惬意的;再一个就是花艺区,我们利用这个狭小的空间,设立了洞洞板,可以放置花艺工具;旁边是一列家政柜,里面可以放置梯子、拖把等工具进行系统化收纳。
儿童房放置了宽一米五的上下床,楼梯部分每个台阶也均设计收纳,向主卧借位,设计一排衣柜。在这个小小的空间里,还满足了一张长书桌搭配一个大衣柜、书柜。就连床下也是可以抽出的收纳空间,可谓是麻雀虽小五脏俱全~
卧室一隅,窗边小沙发悠然,绿植静伴旁侧,绿意盎然。墙上挂画一抹翠色,与窗外光影共舞,恬静空间满溢生机。
阳光倾泻浴缸间,温暖了每一寸空间。浴缸之上,木质案板悠然置放,其上酒水轻摇,散发着淡淡的酒香。此景,如同私享的静谧角落,让人沉醉。
左右滑动,查看图片
左滑查看更多
设计单位 | Design Company/ 红瓦设计
施工单位 | Construction Company/ 红柱精工
深化表现团队| Deepen Visual Expression/魔方深化团队
策划编辑 | Editor/ 见南风
主材物料 | Main Materials/ 瓷砖、乳胶漆、木地板、全屋定制
识别添加嘻嘻有礼
延伸阅读/Extended reading
▲实景作品 | 晨光暖意融
▲实景作品 | 晚风拂星辰
▲实景作品 | 初晓见如风
▲实景作品 | 观自在云来去
▲实景作品 | 一江秋月照人明
▲实景作品 | 云卷云舒任流年
▲商业实景 | 凡萃咖啡x赴一场春日邀约
▲点击上方,关注我们了解更多详细内容

