“古榕参天,绿意盎然,映月如水。”
作品名称 | Name/ 观自在云来去
项目地址 | Address/ 福州·榕心映月
项目面积 | Area/ 115㎡
设计单位 | Design Company/ 红瓦设计
设计总监 | Design Director/ 姚秋智
主案设计 | Execute Design/ 周伟
施工单位 | Construction Company/ 红柱精工
深化表现团队 | Deepen Visual Expression/ 魔方深化团队
策划编辑 | Editor/ 见南风
主材物料 | Main Materials/ 米朗普艺术漆、印美木色整木定制、钢化玻璃、木纹砖、橡木地板
左滑查看更多
米兰·昆德拉说:“生命,是一颗长满可能的树。”
一个留白的空间也充满了无限可能
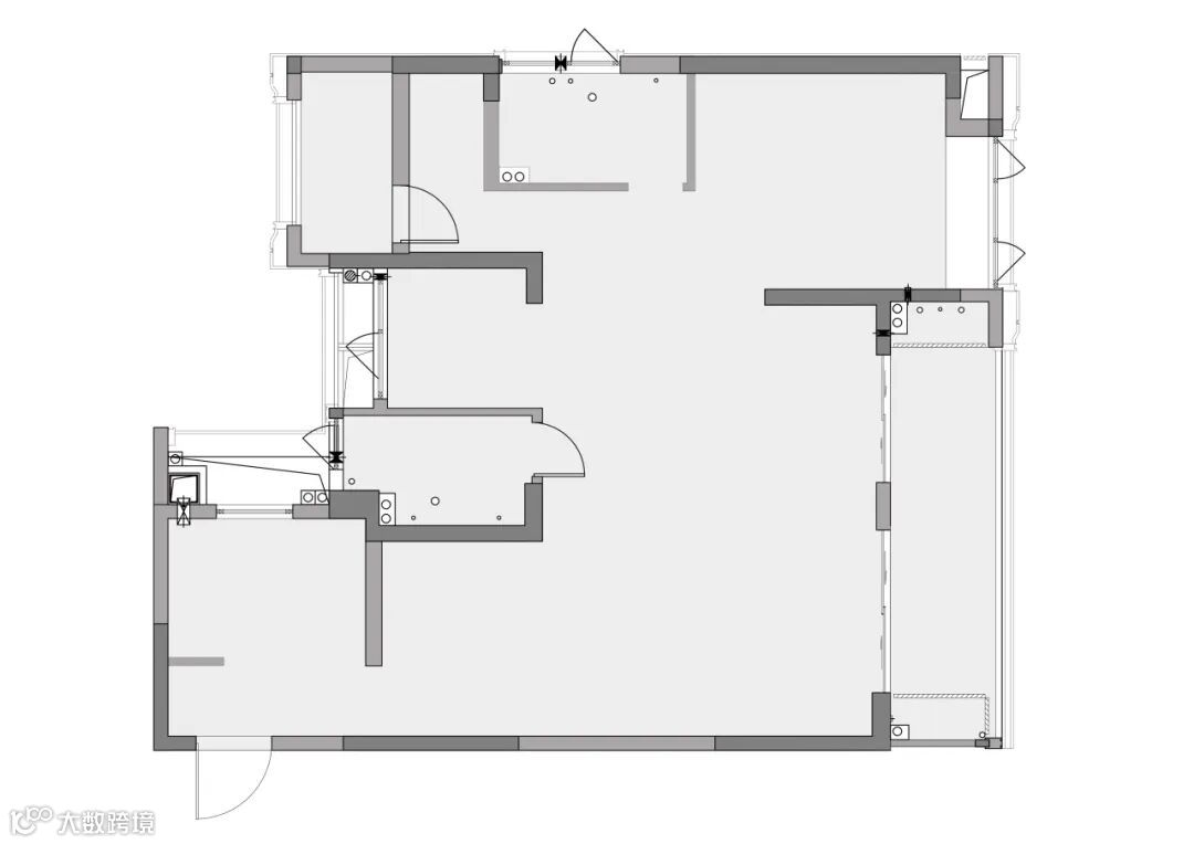
🔘原始户型图
🔘业主需求
本案业主是一个四口之家,有一儿一女,业主父母在附近居住,偶尔过来。
1. 家庭成员都需要独立的空间
2. 储物空间尽量多,根据屋主的生活习惯安排收纳
3. 原厨房操作空间较小,需要一个大岛台
4. 保留四房,一间做多功能房,同时具备睡眠和休闲娱乐的功能
5. 进门处需要一个玄关
🔘平面改造方案
🔘平面布置重点分析
1.入户处做了可移动洞洞板,增加进门的仪式感,分割出玄关与厨房,同时增加玄关收纳。
2.拆除厨房餐厅间隔墙体,实现LDK(客餐厨)一体化,面宽增长的同时使空间更具通透性,柜体内侧隐藏拉帘门,解决开放式厨房通气难题。
3.女孩房拆除飘窗,空间更显开阔,同时增设梳妆台,靠近门的位置削薄墙体,增设衣柜收纳,床尾处矮柜与学习桌的一体设计,既美观统一又兼具实用功能
4.男孩房向主卫借位,增设衣柜,放置学习桌。
5.多功能房设计榻榻米,储物增多,平时朋友到访可聊天接待;爸妈来访时,又可作为短居客卧,实现一房两用。
心向往之,行必能至
Heart to heart
玄关作为家的第一道风景线
承载着过渡与衔接的重要功能
它不仅是室内外的连接点
更是归家时心情转换的起点
玄关处我们设计了实用鞋柜和可移动洞洞板 空间灵活多变
屋主可在洞洞板上自由的添置物件 打造属于家的独特气息
鞋柜做了两个镂空 底部可收纳拖鞋 中部可随手放置钥匙等物品 非常便利
山不让尘,川不辞盈
Mountains do not allow dust
本案的设计 我们巧妙地运用了原木元素 从地板到家具 从墙面到装饰 都透露着一种质朴而温馨的气息
阳光透过窗帘洒进屋内
斑驳的光影与原木相互映衬
营造出一种温馨而舒适的氛围
客厅的布置简约而不失格调
原木地板质感温润而自然
一组宽大的沙发搭配茶几
既满足了实用性又增添了美感
电视背景墙采用了留白设计 简洁大方 让整个空间更加宽敞明亮

海清河宴,时和岁丰
Haiqing River Banquet
餐厅区域注重氛围的营造
岩板岛台与原木餐桌相得益彰
营造出一种温馨的就餐环境
厨房 既是烟火的舞台 又是诗意的栖居
整体色调明亮 橱柜洁白无瑕
墙面则选择了易清洁的瓷砖 方便日常打理
充足的储物空间 让厨房的收纳变得更加方便
心中有景,花香满径
I have a vision in my heart
卧室不仅为我们提供了一个宁静的休憩之地
更能成为我们心灵的寄托
低调简约卧室设计 吸睛又舒适
房间的色调以柔和的暖色和米白色为主
舒适的床品让人瞬间放松下来
超大的收纳空间无惧岁月的蹉跎
绿植和台灯 也为卧室增添了生机和暖意
▼女孩房/Girl's room
▼主卧/Master bedroom
▼男孩房/Boy's room
▼多功能房/Multifunction room
▼客卫/Guest Guard
▼生活阳台/Living balcony
家不仅是一个居住的空间 更是一个让人心生向往的精神世界
我们寻找与大自然的深层联结 更像是在践行一种健康 可持续的生活方式
在细微之处寻觅自然的和声 让每一次感知成为心灵与自然对话的桥梁 引领内心的平和与疗愈
识别添加嘻嘻有礼
延伸阅读/Extended reading
▲新作预告 | 三月新作速览
▲实景作品 | 一江秋月照人明
▲实景作品 | 云卷云舒任流年
▲住宅作品 | 夏日巴洛克
▲住宅作品 |烟雨江南
▲住宅作品 | 余生漫漫
▲商业实景 | 凡萃咖啡x赴一场春日邀约
▲点击上方,关注我们了解更多详细内容


