“淡雅为墨,低饱和为笔,绘就极简生活栖居。”
作品名称 | Name/光语栖岸
项目地址 | Address/福州·榕城江上图灏云峯
项目面积 | Area/135㎡
项目户型丨Project layout/三室二厅
整案花费丨Whole case expenses/62w
项目类型丨Project/毛胚(全案设计+半包施工+主材推荐)
创意设计总监丨Designer/姚秋智&杨建晖
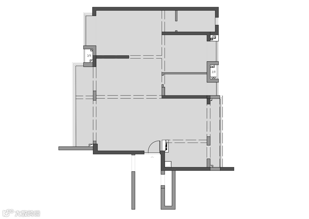
🔘原始户型图
🔘户型分析
原户型是三房两厅两卫的结构,飘窗占据了一定的空间,梁位较低,对空间的设计有一定影响,靠餐厅处阳台和厨房空间较窄,体验感不佳。
🔘业主需求
本案业主是一对年轻夫妻,接受半开放式空间,客厅需要一列展示柜,卧室要满足男女主衣物分开收纳;公区需要大长桌,满足办公、交互的需求;同时需要一间多功能房,供临时短居和休憩。
🔘平面改造方案
平面布置重点分析:
1.我们拆除了厨房一侧墙体,将阳台并入厨房,扩大厨房的空间,设计U字型台面,遵循拿、洗、切、煮、盛的操作动线,使得厨房操作性更强。
2.多功能房设置大长桌,满足屋主两人同时办公的需求;并且设计沙发床,满足了小片刻的休憩和短居。
3.主卧通过设计实现男女衣橱分开收纳,床头柜与柜体做穿插式的设计,满足床头柜和衣橱收纳的需求。满足了就近收纳和精细化收纳原则。
4.次卧拆除原有飘窗,增设书桌,满足基本的办公需求,并拓展了一定的收纳空间。
🔘系统收纳图
收纳体系分配:每个空间均设立大容量收纳空间。卧室男女主衣橱分离,并且在多功能房进行补充收纳,可放置过季衣物、被褥等。
🔘采光对流图
本案的采光通风条件较好,西侧有一面大落地窗,各空间采光充足;客厅与餐厅形成通风对流。
阳台空间并入客厅,超长落地窗使得采光更佳;木纹与白墙彼此交融,仿佛一杯拿铁,香气氤氲,经久不衰。
U字型开放式大厨房空间,搭配定制餐岛,形成高效洄游动线;各类现代家电藏于柜中,使得生活空间更加便利、整洁。
多功能房顾名思义,是可以满足多种功能使用的空间;折叠门打开,就是开放式书房,实现LDK+S超强互动情景家;关上折叠门,又可作为一间临时客卧提供家人朋友到访休憩,也可满足短居的收纳要求。
主卧空间拥有大容量衣橱收纳,床尾设计正面衣柜,实现男女主衣橱分离;床头设计墙板,摆设无靠背床,节省床尾过道空间,非常宽敞、从容。主卫门前设立次净衣区,方便洗浴更衣。
次卧悬空书桌,满足日常学习、办公;一盆绿植的加入使得空间更加自然、和谐,充满生机。
▲客卫
▲主卫
主卫干湿分离,淋浴房采用极窄边框,简单且高级。
左右滑动,查看图片
左滑查看更多
设计单位 | Design Company/ 红瓦设计
施工单位 | Construction Company/ 红柱精工
深化表现团队| Deepen Visual Expression/魔方深化团队
策划编辑 | Editor/ 见南风
主材物料 | Main Materials/ 科诺地板、暮光照明、高仪卫浴、CS瓷砖(鸣远花砖)
软装陈设丨Soft furnishings/平日里丨家居软装全案
识别添加客服有礼
延伸阅读/Extended reading
▲实景作品 | 焦糖城堡
▲实景作品 | 花梦卢浮影
▲实景作品 | 晨光暖意融
▲实景作品 | 晚风拂星辰
▲实景作品 | 初晓见如风
▲实景作品 | 观自在云来去
▲实景作品 | 一江秋月照人明
▲实景作品 | 云卷云舒任流年
▲商业实景 | 凡萃咖啡x赴一场春日邀约
▲点击上方,关注我们了解更多详细内容

