拥有一个单独的衣帽间,是多数人的梦想。对于现代都市当中的居住户型分布而言,如果有足够的空间,将衣帽间放在卧室当中,自然是最理想中的位置。然而衣帽间的设计总是会让很多业主和设计师都伤透了心神。
如果灵感缺缺,不妨看一下欣百特近一年度的衣帽间设计案例吧,有图、有设计,相信你也能找到最适合自己的方案!

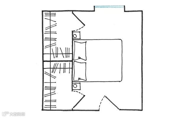
在欣百特的设计案例中,如果卧室内带有小型的独立卫生间,欣百特的设计师通常建议把衣帽间卡在剩余空间,这样虽然缩小了室内空间,但是视觉上的空间整洁性反而会得到提升。同时,为了方便卧室行走的通畅,需要在床和墙之间留出至少120cm的走道空间。
▼



如果卧室深度达到400cm左右,而卧室内的卫生间没有或者可以去除,那么这就是欣百特设计师们理想当中卧室衣帽间的完美配置——一个宽敞明亮的条状的衣帽间,不仅空间划分合理,也让取用十分方便!
▼



如果卧室的入口和窗户呈斜线对角式,欣百特设计师会建议你大胆的尝试把整个布局旋转45度!这种设计在欣百特的实际案例中出现过多次,据用户实际使用反馈来看,这种设计除了不影响采光和更好的空气对流之外,衣帽间的试衣空间也是瞬间提升。
需要注意的是采用这种设计之后,还需要欣百特设计师为你科学定制一个合适的三角床头柜,如此,整个卧室的高级感瞬间又能提升一个档次!
▼



当然如果你更喜欢传统的空间布局,也可以使用传统的方式做出一个欣百特转角衣帽间的设计。
▼


在卧室拥足够空间的情况下,不妨尝试一下欣百特设计师推荐的“男女有别”的衣帽间设计!互不干扰的“双独立”欣百特衣帽间设计,可以让用户拥有更多的空间和隐私体验——即便一起生活,但依然能保有个人的独立性,对于每天都需要忙着工作的双薪家庭而言,也是保持“效率”的首选之一。
▼



卧室内空间偏向长方形,是当前比较流行的户型设计。欣百特设计师建议可以根据卧室内门与窗的相对位置,选择“隔间”式的衣帽间设计形式。这样的好处在于可以选择在不影响卧室走动的面上设计衣帽间,同时也可以根据自己的实际衣物收纳需求,合理的设计隔间的大小。
▼





在衣帽间的设计当中,很多时候我们都是在利用卧室的“横向”空间,如果家中空间实在紧凑,但是又不愿意放弃衣帽间的选择,在这种条件下,欣百特设计师建议你不妨考虑利用一下卧室的“纵向”空间——根据不同的层高条件,通过抬高床架,在其内部设计迷你衣帽间!
▼








