男主人非常有趣,喜欢挑战,喜欢轻松随意、不拘小节的元素,女主人喜欢休闲自然的氛围。还有一个可爱的女儿,希望能为女儿多留一些玩耍的空间。
案例信息
▲ 面积:95㎡
▲ 户型:三居室
▲ 风格:现代简约
▲ 设计师:陈超杰
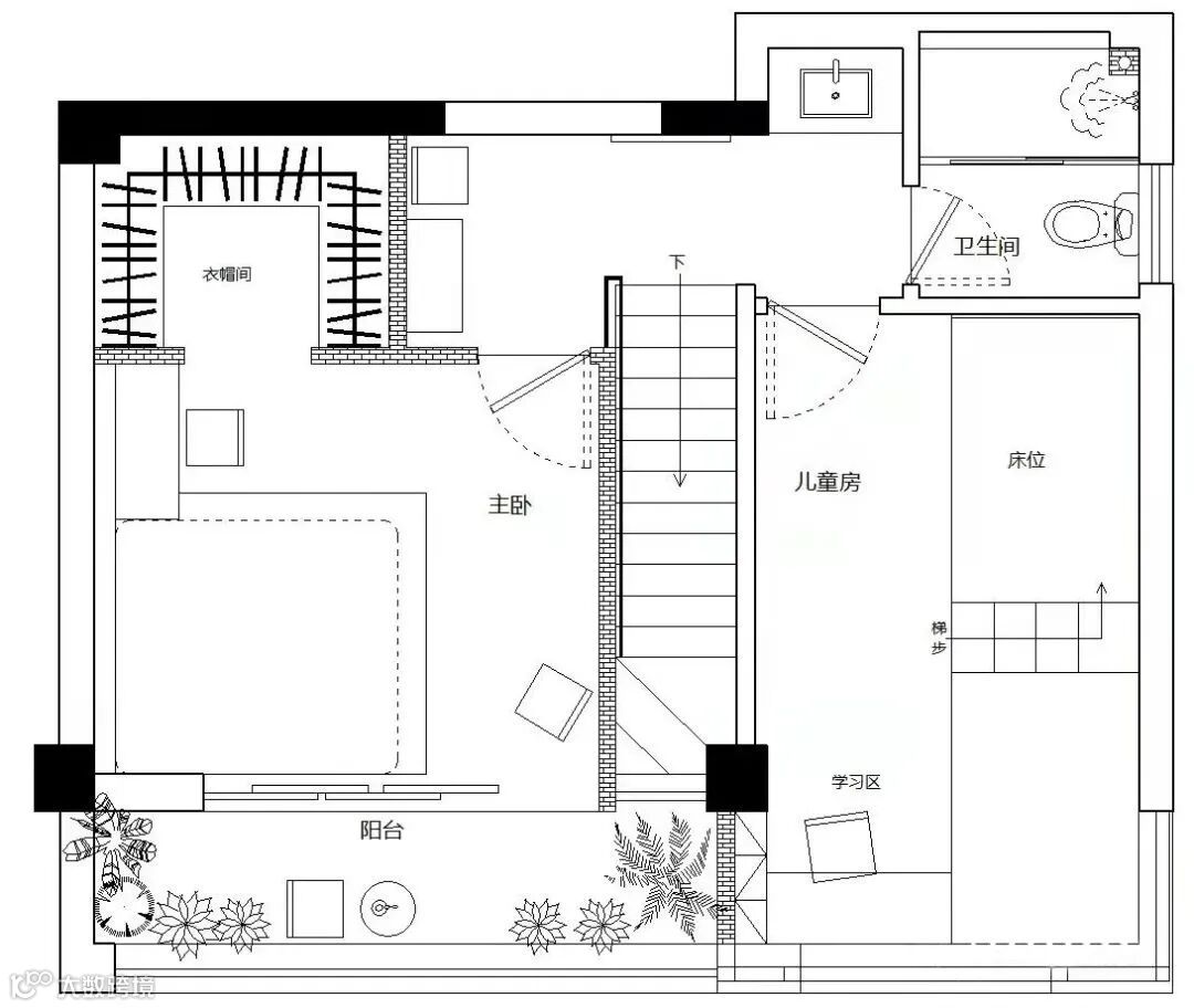
平面布置图:
屋主需求:
1. 女主人喜欢自然休闲的氛围。
2. 希望能有大点的厨房,方便施展厨艺。
3. 希望能为女儿多留一些玩耍的空间。
入户大门处做白色到顶玄关柜,并与开放式厨房连接,既实用又美观。
摒弃常规的客餐厅,运用日式LDK将客厅、餐厅、厨房设计在一个大空间内,呈一体化风格。
空间整体造型大方简洁,给予空间极简的美感。
水泥灰厨房、地砖+原木餐桌,带来一种自然质朴清新风。
弧形落地窗不仅美观,也让空间采光更好。
单人沙发触感柔软,在这里聊天非常放松惬意。
开放式水泥质感厨房简洁又高级,并弄一个中岛台,给厨房增添活力。
中古感家具和水泥质感在一起呈现出自然、质朴,又充满生活气息的氛围感。
主卧门口放一个小书柜和凳子,可以供屋主阅读。
整个卧室现场实木制作,原木色床头可作为置物使用,替代床头柜。
再做一个床头一体的悬浮式梳妆台,实用又简单。
儿童房选择地台设计,也有床的功能,方便照顾小朋友或者小伙伴留宿。
床旁是玩具收纳区,可供小朋友玩耍。
左边每一层楼梯,都做收纳抽屉,加强收纳功能。
二楼的卫生间干湿分离,防水石膏板吊顶更简洁。
淋浴区内选择了低饱和度的粉色系,墙和地同一种砖,视觉更统一。
一楼卫生间空间有限,因此淋浴区用浴帘作为隔断。
关注「顾好家装饰」公众号
查看更多实景案例及装修知识!



点击“阅读原文”免费预约参观工地!



