审美与生活一样,有的是不需要一味的去迎合,而是过出自己本来喜欢的样子。这是125㎡的精装房,男女屋主都是财务金融职业,无论从职业习惯还是生活习惯上,都不喜欢太过繁琐的东西,所以希望未来的家是一个简洁清爽的地方,在风格上,两位屋主偏好现代极简,希望整体风格舒适、放松。
设计师遵循极简主义的“少即是多”的核心理念,通过局部调整,删繁就简,给予空间的最大尺度。最终以白色为基础,搭配温润的木色,使整个空间简约利落又不失家居温馨感,为居者塑造出一方温润平和的心灵栖息之所。
案例信息
▲ 坐标:浙江 杭州
▲ 户型:四室
▲ 面积:125㎡
▲ 设计:菲拉设计
▲ 费用:60w
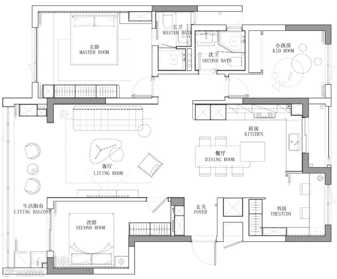
平面布置图:
将阳台纳入客厅,增加整个空间的进深感。客厅原有的悬浮吊顶契合现代极简的风格,因而进行保留,墙顶均涂抹白色艺术漆,增加空间的统一性。
两侧通透的采光使得客厅更加明亮开阔,同时打造弧形垭口,视觉上更显温柔,给予人放松无拘束的氛围感。
沙发背景墙通过不同的线条分布、增加趣味性。
一侧主过道通往主卧和儿童房,采用弧形垭口划分动静区域,消解了尺度间的拘谨感,赋予温润平和的家庭氛围。
客厅布局松弛自由,设计简洁明了,浅杏色主沙发+同色系地毯,营造轻松舒适的格调.
以小圆几代替笨重的大茶几,上下均可收纳常用物件,搭载提手,方便居者根据需要随时挪动。
电视完全嵌入白色背景墙之中,形成一个平面空间,干净利落的线条在墙面上充分延展,低调内敛的气质尽数展现。
电视背景墙后方为次卧,采用隐形门的形式来弱化存在感。

采用餐厨一体式的设计强化包裹感,生活的精致在这里得以具象化呈现,意蕴无限。
细品一道道浓郁入味的菜肴,何谓“健康生活”的答案或许正藏于这些时光里。
餐厨空间后方通往主卧和儿童房,过道转圜处墙面用木饰面装饰,搭配同色系隐形门。
大气端庄的胡桃木色与地板颜色相近,不同的纹理相互交织,渲染出自然而有温度的一道风景线。
木与白交替,让光线更好地游走于空间,弱化压抑感,收纳柜均采用无拉手,整体线条干净利落,增强空间立体感。
木色餐桌搭配黑色餐椅,是简洁与优雅的融合。在餐厨开放式设计下,空间更显通透明亮。
餐桌与岛台相连,与开放式厨房形成洄游动线,可补充操作台使用,赋予空间更多变化与可能。
L型厨房利用拐角做出高低的落差感,正好将烹饪区和洗切区划分成两部分,分别适应洗菜和炒菜两种不同的操作,提升厨房整体的使用舒适度。
白色与深咖的木质搭配,仿佛牛奶与咖啡的碰撞,带来不一样的高级感!

开放式书房用白色和胡桃木色营造出纯粹清雅的氛围,临窗打造悬浮式书桌,上方天花安装有轨射灯,为看书学习提供充足的光源。
原书房与厨房之间的隔墙缩短至与橱柜等宽,赋予空间更加开阔通透的尺度,便于进出。
书房一侧墙面安装层板作为简易书架,可放置常用书籍或摆件,下方矮柜和高柜连接,板材穿插其中,丰富空间层次。
流畅的空间布局和极简的设计风格交相融合,让空间之间更加紧密地联系了起来,在无形之中增添了家的温馨。

主卧的设计延续了空间的整体风格,采用无床头的设计,为床尾预留出足够的宽度,因此床头背景墙下方采用木饰面进行修饰,便于靠卧。
床头一侧打造利用角落空间打造悬浮衣柜+悬浮床头柜,增加层次感的同时辅助卧室进行收纳。
床尾做整面墙的顶天立地式衣柜,顶面暗藏投影幕布,既解决了生活收纳问题,又增加了生活氛围感。
优质的采光点亮了卧室内的温柔,加上白色的背景,空间充盈着一种朦胧的美感。
木饰面的装点赋予卧室温馨柔和的氛围,与白色进行碰撞出独特的惬意之情和舒适的高级简约感。
柔软之处体现于家具单品的质感,构建身体尺度的舒适与放松。

次卧入门衣柜采用上下柜的形式,进出时不会觉得压抑,白色悬浮柜+木色抽屉柜,体现空间的干练和整洁。
次卧以自然温和的色调和材质打造简约宁静的睡眠空间,大面积留白+大地色系,为空间带来些许温润。
一侧采用移门通往生活阳台,卡其色窗帘+纱帘与整体气质保持一致,简练的元素诠释出安稳的幸福来。
温柔素雅的大地色系大床,呈现出静谧低调的睡眠空间。
优质的光线透过纱帘缓缓潜入,带来了明媚和通透,再加上精致摆件的点缀,整个空间瞬间就丰盈了起来。

儿童房的布局相对自由,为孩子创造一个随性自在的成长环境,一侧墙面勾勒出曲线造型,仿若连绵的山川,似是汹涌的波浪,为空间增加一些童趣。
整齐排列的鱼骨拼木地板上铺上一张柔软的绿色地毯,阳光透过窗户在墙上洒下光影,看似随意的布局却释放出更多的亲子互动空间。
些许的微光点缀,是专属家的温馨和浪漫。

关注「顾好家装饰」公众号
查看更多实景案例及装修知识!



点击“阅读原文”免费预约参观工地!

