搜索
首页
大数快讯
大数活动
服务超市
文章专题
出海平台
流量密码
出海蓝图
产业赛道
物流仓储
跨境支付
选品策略
实操手册
报告
跨企查
百科
导航
知识体系
工具箱
更多
找货源
跨境招聘
DeepSeek
首页
>
土木风景观丨入口景观设计平面合集
>
0
0
土木风景观丨入口景观设计平面合集
土木风DESIGN
2015-02-12
1
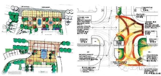
导读:搜集了一些比较不错的入口景观设计平面!内容转自筑龙博客,版权归原创者“bingdianlan”所有,转载请表
搜集了一些比较不错的入口景观设计平面!
内容转自筑龙博客,
版权
归原创者“
bing
dianlan”所有,转载请表明出处
【声明】内容源于网络
0
0
土木风DESIGN
「土木风设计」是由“吉林土木风建筑工程设计有限公司”和“吉林土木风环境艺术设计有限公司”组成的集规划设计、建筑设计、景观设计及装饰设计为一体的甲级设计公司。长期发展目标是成为具有高度社会责任感、兼具设计、咨询、研发和管理的综合技术服务公司。
内容
120
粉丝
0
关注
在线咨询
土木风DESIGN
「土木风设计」是由“吉林土木风建筑工程设计有限公司”和“吉林土木风环境艺术设计有限公司”组成的集规划设计、建筑设计、景观设计及装饰设计为一体的甲级设计公司。长期发展目标是成为具有高度社会责任感、兼具设计、咨询、研发和管理的综合技术服务公司。
总阅读
130
粉丝
0
内容
120
在线咨询
关注