卷首部分:新规范专家整体解读
第二章 术语部分专家解读





1 建筑屋面为坡屋面时,应为建筑室外设计地面至其檐口与屋脊的平均高度;
2 建筑屋面为平屋面(包括有女儿墙的平屋面)时,应为建筑室外设计地面至其屋面面层的高度;
3 同一座建筑有多种形式的屋面时,应按上述方法分别计算后,取其中最大值;
4 对于台阶式地坪,当位于不同高程地坪上的同一建筑之间有防火墙分隔,各自有符合规范规定的安全出口,且可沿建筑的两个长边设置贯通式或尽头式消防车道时,可分别计算各自的建筑高度。否则,应按其中建筑高度最大者确定;
5 局部突出屋顶的瞭望塔、冷却塔、水箱间、微波天线间或设施、电梯机房、排风和排烟机房以及楼梯出口小间等辅助用房占屋面面积不大于1/4者,可不计入建筑高度;
6 对于住宅建筑,设置在底部且室内高度不大于2.2m的自行车库、储藏室、敞开空间,室内外高差或建筑的地下或半地下室的顶板面高出室外设计地面的高度不大于1.5m的部分,可不计入建筑高度。








综合楼的最新界定

商业服务网点的最新界定






安全出口的最新界定

楼梯间的最新界定


避难通道的最新界定

第三-四章 没有变化,不再解读
第五章 民用建筑部分专家解读
建筑分类、定性、名词
问题 3:
平台上由建筑高度超过24米(超过10层的住宅)和未超过24米的多个建筑相连组成的建筑群体,是否应全部理解为高层建筑,还是可以按具体情况分别独立区分为高层建筑和多层建筑?
问题 4:
位于大平台上的建筑,某些建筑为高层,某些高度属于多层范围的建筑(从平台层计)是否可按多层建筑设计?

问题 7:
怎样理解住宅建筑中跃层的概念?跃层是否理解为单独一层?


问题 8:
住宅分类:连廊式、单元式、塔式如何定义?


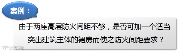
总平面布局










防火分区部分









平面布置专家解读


安全疏散和避难专家解读




问题 3:
如何理解两个安全出口的概念:























第6章建筑构造专家解读
建筑构造的设计是建筑防火中的一个重要环节,良好的防火构造设施是防止火灾蔓延、保证人员安全疏散的关键所在。它包含了各种防火分隔措施和人员安全疏散设施。
建筑构建部分


防火卷帘部分



防火门部分




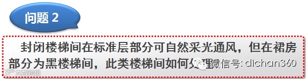
楼梯部分







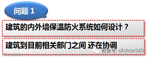
建筑保温和外墙装饰










第七章 灭火救援设施专家解读
灭火救援设施是建筑防火设计的重要组成部分,实际火灾安全中,大部分火灾成功的救援是靠有效的灭火救援设施完成的。
消防车道部分



救援场地解读




消防电梯专家解读
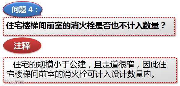
第八章:消防设施的设置专家解读
本章规定了建筑设置消防给水、灭火、火灾自动报警、防烟与排烟系统和配置灭火器的基本范围。由于我国幅员辽阔、各地经济发展水平差异较大,气候、地理、人文等自然环境和文化背景各异、建筑的用途也千差万别,难以在本章中一一规定相应的设施配置要求。因此,除本规范规定外,设计还应从保障建筑及其使用人员的安全、减少火灾损失出发,根据有关专业建筑设计标准或专项防火标准的规定以及建筑的实际火灾危险性,综合确定配置适用的灭火、火灾报警和防排烟设施等消防设施与灭火器材。




第九章 电气部分专家解读


来源:房地产经理人联盟





























