
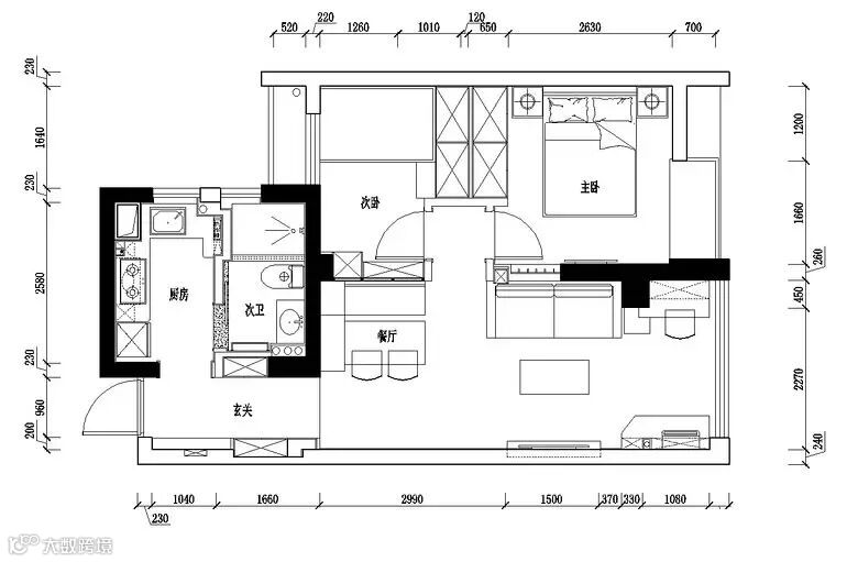
▲ 进门入户走廊,黑白相间菱形铺设的地砖,门口一个缓冲换鞋区地垫,两侧入墙嵌了不少收纳柜

▲ 对于小户型来说,收纳一定要利用一切可用的空间

▲ 客厅全貌,整体是以白色和木色为基础,浅色可显大

▲ 小餐厅做了卡座,卡座带有储物功能,座位夏天光板,冬天放上垫子

▲ 墙上做了大量的隔板框

▲ 电视背景因为要设计大量功能进去,反正已经简单不了了,索性屋主就把它设计复杂,各种框框

▲ 这边还加入了黑板墙和软木照片墙

▲ 阳台这里洗衣柜上方的木制『树形』置物架,中间这个『树干』其实是为了遮蔽一根排水管

▲ 对面的写字台位置有限,沙发旁设计了一个小柜子

▲ 从阳台看客厅餐厅全景

▲ 厨房和玄关一样用的黑白地砖

▲ 墙面用的是皮纹砖,看着像LV的包包的布纹

▲ 墙面设置了很多厨房置物架,可以挂各种锅盖、道具、瓶罐等

▲ 卫生间同样是皮纹砖,空间有限,镜柜可以存放各种化妆品

▲ 淋浴区用浴帘可以节省空间

▲ 定制的洗手台柜侧面设计了一个凹陷,可以放厕纸

▲ 主卧的柜子

▲ 门背后也挖墙加入了收纳功能

▲ 一切以实用为主

▲ 次卧床头和墙上都有设计收纳

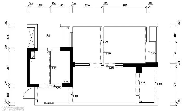
▲ 原始平面图



