轩怡装饰实景案例
美家档案
天河华庭
轩怡实景
新中式风格
5室2厅2卫
谭衡伟
主笔设计师
📞18826070204
房屋面积:
180㎡
装修类型:
全包
工程监理:
朱建军
工地质检:
周粤
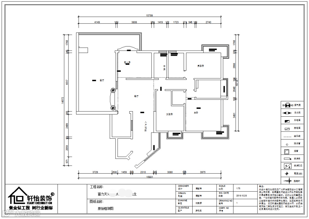
本案居住人口较多,加上二手老房改造,因此在设计上需要我们设计师多元化地考虑需求问题:收纳空间、舒适性、宜居性和实用性等等。
业主原本考虑做局部改造,但经过设计师的实地量房与考察,发现房子原有的装修都比较老式且陈旧,材质以及生活实用性已经不能满足现有生活水平与需求,因此设计师建议业主全面改造,避免今后生活的折腾。
整个装修工程最大的问题可能就是,在施工过程中刚好碰上疫情。因此对我们人员健康保护以及施工对接沟通、工期把控等等,提出了更严格的要求。而且小区物业要求也很严格,每天有规定的上料时间。为了保障工期能够如期进行,我们与业主保持更紧密的沟通、多方协作,保质保量的把控装修进度,最终如期交房。

业主需求:
1、新购入的二手房,但是整体装修陈设比较老旧,希望通过装修改善生活环境;
2、新家常住六口人,两老+自己夫妻俩+两小孩,对居住空间需求比较大;
3、业主自己是一个电子爱好者,希望能有属于自己的小天地;
新家变化:
经过图纸与实际空间的比对,原户型整体布局都比较完善,因此针对业主需求进一步优化就可以了;
1、针对业主兴趣爱好,将原本的小公卫改成书房,满足办公与娱乐需求;
2、通过空间释放,将隔壁套间的卫生间重开门洞,朝向过道,满足生活对公卫的功能需求;
3、原户型狭小的储物间将主卧衣帽间纳入,将空间扩大,作为女儿房;
4、选择临近餐厅等公区的卧室作为老人房,方便老人进出;
5、实现卧室区域围绕公卫的空间布局,都是最短地活动距离;

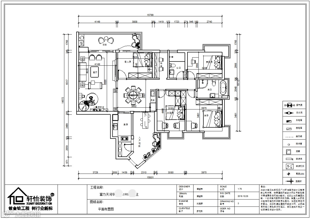
▲设计方案
新房大变化:
1、入户依据过道尺寸与人体美学,玄关柜一字排开,极大地满足了回家仪式感;厨房隔墙被掏空,做了内嵌式玄关柜,进一步丰富新家储物能力;
2、异型结构的厨房将功能往储物间下探,原本鸡肋的储物间放下冰箱与中岛柜,可以作为空间功能的补充,也提供了多人在厨房忙做的空间;
3、卧室与卫生间位置的梳理是全屋设计重点,原类三角形的过道门厅通过设计移位,变成类长方形的空间结构:公卫空间得到延伸,还放下洗衣机;主卧门缩进,改善通风采光条件,入户动线也更清晰;次卧、书房入门拉长,实现空间对流地通风效果,维护空间私密性也给到更合理地生活动线;
4、根据生活动线的便利性与实际空间,边角位都设计了储物柜,提高房子空间利用率;
客厅
新家装修我基本没有操心过什么,因为整体沟通很顺畅,设计师给我感觉靠谱,所以新家我基本交于他负责了。

一站式在装修公司选购的材料,经过设计师的搭配打造,整体给人的质量、空间感觉,都蛮舒服的。圈式吊顶将中央空调等管道隐藏,简单两圈金属条装饰,提高空间的精美感。

客厅户型方正,整体采光很好,南北通透的布局,如果取消落地窗整体视觉享受会更棒。但是设计师考虑到家居安全(毕竟家里两个小孩)和阳台的洗衣晾晒(落地窗的存在可以起到一定的遮蔽作用,让生活更美观),没有过多改变原有空间布局。

传统的围合式沙发布局,搭配木风沙发,完美呼应新中式的感情色彩,这点我很喜欢。恰当的沙发位,充分考虑家庭成员的生活需求,配搭茶几的轻盈,整体给人感觉不会过于庄严厚重。

沙发墙有远观的优雅,也经得起近看的精致。经过设计,微凹的墙面造型,整圈嵌入氛围灯设计,凸显设计的美感,也让视觉更温和。
对称式钛金饰条的点缀,搭配圆圈造型的花元素,颇有江南水乡的古韵,为素墙增添风味。

电视墙仍旧是对称美学的典雅,岩板电视墙+木饰面装饰,突出电视机的主体背景。嵌入壁灯与饰条造型的优雅,提升空间氛围的庄严感。

餐厅
客厅过来就是我家餐厅,整体布置延续客厅的风格格调。一张六人餐桌布置其中,铺上餐布的仪式感,感受到一家人团聚的欢愉。

餐厅右手就是我们的入户花园,玻璃移门的通透,让餐厅采光更好。日常打开方便老人孩子进出,所以几乎与地面平齐的导轨就显得很用心。



厨房

配合L型的橱柜布局,洗-切-炒的行云流水,极大地提高我们居家幸福感。虽然设计师一开始已经帮我们设计了方便的收纳,但随着我们生活的丰富,后期自己也增加了一些收纳架,进一步规整生活。

操作台里外都有挡水条的细节,让我们的日常卫生清理更方便,没有水渍到处流的忧愁。

上下两层橱柜设计,视觉饱满、木纹肌理的丰富,很讨人喜欢;隐藏式门把手以黑色的深沉显示它的地位。容量宽裕的储物空间,让人心生欢喜,有参与家务生活的人,肯定知道厨房收纳的痛苦!
过道
第一视觉的清爽,可能觉得并没啥好说的?

连贯的瓷砖风格,以黑色波打线拉升美感;素色空间嵌入木框的立体;天花没有繁复的装饰,简单嵌入筒灯的历练,构成空间的和谐优雅。
书房采用更新颖的长虹玻璃门,即使长时间关闭,也能为过道提供采光。房门微微错位,避免直对的隐私尴尬,尤其是增加了门帘遮蔽,隐私性得到更好的保障。日常开启,也方便各个空间通风采光,让人不觉得沉闷。
卫生间

公卫更多是给老人孩子使用,通铺瓷砖的干爽,配合大理石浴室柜,简单干净。

干湿分离的实用,搭配四周围排水的舒适,无论老人、孩子洗澡都更安全,降低积水滑倒的风险。玻璃隔断采用移门的通透,减少对空间的占用,放得下孩子的浴盆,这真的爽!

简单干净的洗漱区,没有镜柜的臃肿。宽大的镜子,方便梳妆,进深合适的洗手盆进深,有效避免水溅,让生活安逸从容。
至于收纳方面,我们借用壁挂的方式规整,方便通风沥干水分,很好地避免了长时放置在台面上出现水渍、面板发黄的恶心。
儿童游乐区
新家我满意的第二个点就是儿童游乐区,家中有老人孩子,互动性需求更加旺盛。

合理的空间规划,在客厅让出一份空闲,软垫与抱枕的结合,隔离了瓷砖地面的冰冷;没有布置任何家居,避免孩子玩耍的磕碰;空旷的悠闲,成为我们一大家子的互动娱乐区。

靠墙到顶收纳柜搭配矮柜的组合,满足物品存放;顶部规纳我的藏品,中部则是我的摆件,底部是孩子的用品,整齐有序;用玻璃柜门封闭搭配灯带的清晰,东西更好找寻也增添空间趣味。

原本素色的墙面,我自购了一面DIY装饰,增强回家仪式感。周末也可以与孩子一起做做手工,温馨惬意。
业主点评:
从房子拆除回归毛坯房状态到水电,甚至后期选色搭配等,我都很少操心。这都得益于设计师的靠谱,沟通很舒服,我答应的建议执行都很快。
虽然我开始装修的本心是想做局改,但是根据设计师的建议考量,最后做了全改,毕竟装修就是想着住得舒服。有一点不得不说的就是,房子大部分材料都是在轩怡选购,我们没有单独去搞,装修到最后整体呈现出来的效果都很棒,工艺、材料感觉都很舒服,住进来没有发现什么异味。这点就很值得夸赞了!
来源:轩怡装饰原创
编辑:小明
责编:老蔡
往期案例
点击按钮
即刻获得免费量房+设计+报价














