
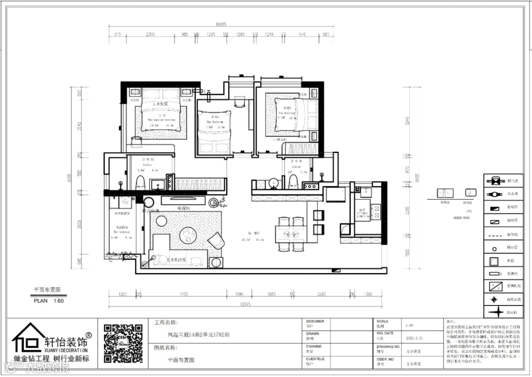
顺德美的凤起兰庭
轩怡实景
现代风格
3室2厅2卫
叶文珍
主笔设计师
📞18813222061
房屋面积:
90㎡
装修类型:
半包
工程监理:
安成龙
工地质检:
张世雄
PART.1
设计说
PART.2
玄关
PART.3
餐厅
PART.4
厨房
PART.5
客厅
PART.6
生活阳台
PART.7
过道
PART.8
主卫
PART.9
主卧
PART.10
公卫
PART.11
次卧












