140平华发观山水
轩怡实景
现代简约风的温情
开放式厨房
总统套房式主卧
曾庆龙
主笔设计师
📞18813222061
房屋面积:
140㎡
装修类型:
半包
工程监理:
杨乾伟
工地质检:
吴卓粮
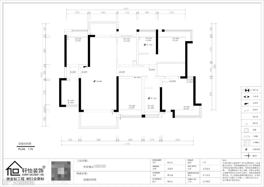
得益于业主自身对装修的上心,前期做了功课。所以在房子装修上,风格预算有自己大体的把握。房子基本上以男业主喜欢的风格来主导,整个案例以白色+木色的轻盈为空间主题。业主明确了三个需求方向:一厨房空间大一点;二卫生间有浴缸;三宽敞的衣帽间。

设计上以白色的纯洁带来空间视野的宽敞透亮,以木色的清新感烘托新意,凸显家的温情。业主喜欢硬朗精致、简练大气的空间,所以在硬装设计上并没有很复杂,而是通过软装的恰当搭配,丰富生活功能的同时,彰显生活情调。

总的来说诉求点都很明确,故最终方案的确定非常快。公共空间的开放动线,使得整体家居动线流畅清晰,空间链接顺畅,给到舒服的家居感受。尤其是加以客厅大面积落地窗的通透,让整个空间采光非常好,配上白色+木色的清新感,就很棒的体验!

业主需求
一、希望厨房可以大一些;
二、卫生间是否可以增加浴缸;
三、主卧希望有自己的衣帽间,宽敞大气;
四、新家整体以现代简约风为主,但业主更希望可以有些轻奢与日式风格的混搭;

新家改变
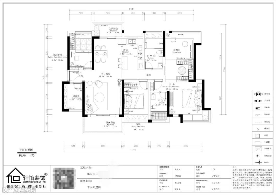
一、封闭厨房改成开放式厨房,拓展空间与采光,也凸显生活格调;在设计上插上一个吧台作为厨房与餐厅的过度,让整个客厅看起来连接性更顺畅;
二、因为主卫空间的紧凑,与业主商量过后,将浴缸布置在公卫:原本类似三分离的公卫,因为次卧入门的隔挡,使用面积也不理想;次卧更改为衣帽间后,入门封闭,将公卫原本的隔墙打拆,面积得到扩展;重新分区,置入浴缸;
三、根据业主的生活规划以及空间需求,我们将主人房的次卧打通与原本的小衣帽间、主卧相连,扩宽衣帽间的同时,还带来了一个独立化妆间;
四、白色+木色的清爽,点亮现代简约的清新格调;以饰品的温馨和开放式厨房的自然,烘托出轻奢质感;以主卧衣帽间、化妆间的日式小调,丰富生活乐趣;
大厅

踏进客厅,木色的清爽,白墙的通透,配以大落地窗的采光,整体给人感觉就很舒服。

L型浅色布艺沙发的选择,十分呼应整体色调。灰色地毯与木色地板的组合,增强视觉效果,给人厚重感。沙发太妃椅延伸出来,搭配落地阅读灯的文艺范,满足业主阅读爱好的同时,亦为生活提供了一份仪式感。

无主灯的轻盈利落,搭配背景墙的素雅,给人爽朗舒适的视觉享受。虽然电视上墙,但还是布置了大一字形电视柜,增强视觉观感的同时,亦丰富了新家的收纳空间。
无主灯天花,其实还暗藏玄机,电视墙顶上一条黑色的细线,或许会以为是氛围灯?原来是投影幕布在这里安家了。闲暇时,来个家庭影院的乐趣,满满的幸福感。

家庭影院设计的出现,对窗帘遮光性就有了更高的要求。双层窗帘的选择,则是为业主铺垫了以后生活的幸福。客厅还摆放着圣诞节布景,看得出业主对生活的态度。设计再漂亮,也需要懂它的人。

安逸舒适的温馨质感,我爱了!

家不仅仅是一个壳,而是一个有温度有感情的空间,容纳下我们的躯壳,还让我们的灵魂得到慰藉。
餐厅
咋一看餐厅是不是很普通?延续客厅的木色地板,六人餐桌摆放着鲜花的文艺,让生活不止是生活。

同样多光源的无主灯设计,不会像吊灯一样,影响到我们的层高,带来更自然舒适的空间体感。
白色+木色的简单,以餐桌椅的雅致,配以背景墙的北欧挂钟,凸显质感,有种轻奢风的韵味。
原本南北通透的空间布局,大面积的落地窗,被窗帘遮蔽,隐去所谓生活阳台的不雅。

餐厅的常规,被开放式厨房点亮,让生活多了一些情调与新颖。

一个大理石吧台,成为餐厅与厨房的分界岭,又互相联通。灰色的优雅,氛围灯的情调,让人满心欢喜。
厨房

多光源的无主灯设计,真的十分讨喜,温馨有质感。哑灰的冰箱、橱柜,嵌入大理石纹瓷砖通铺的厨房里,层次感分明,清爽干净。

根据业主需求,原本封闭的厨房被打拆,不仅带来更宽敞的厨房空间,也让房子的过道变得通透。
开放式厨房与吧台的韵味,点亮风格主题,亦丰富业主的生活乐趣。大理石板围合,嵌入收纳柜,满足一些餐厨用具的收纳,也方便吧椅储藏,避免闲置时对空间的干扰。

吧台的棱角全部做了弧度处理,讲究生活腔调的同时,我们也要注意家居安全。

厨房空间释放,带来L型厨房的悠闲,宽敞的双槽洗菜盆布置在窗前、整齐有序的功能分区、橱柜下嵌入灯带,让一日三餐更舒心。
卫生间

得益于厨房的开放式设计,将过道大大地缩短。形成左卫生间,右主卧、次卧,中间饰画背景墙的通透视野。

公卫因为次卧封闭改造,设计师改变原本类三分离的空间设计,重建规划,最终实现干湿分离的同时,满足业主想要浴缸的愿望。
长虹玻璃卫浴门、窄边干湿分离隔断,跟上时尚潮流的实用元素。大开窗的通透,即使采用深灰色系的卫浴空间,也不会显得压抑,反而精致好看。

双人位洗漱台的优雅,满足家人的同时使用,温馨感满满,亦为小夫妻俩节约早上出门时间。大面镜子搭配可移动小镜子,配合补光灯的使用,让精致是如此的从容。
关于收纳方面,则是通过洗漱柜的留空,放入收纳篮,规整日常杂物或脏衣,方便清洗。

虽然公卫增加浴缸,但“公”的定义,必然不能随意舍弃淋浴区,生活还是要考虑到客人来访的情况。浴缸更加临近窗户,让出淋浴区的生活日常。窗户采用百叶窗的优雅,保障隐私与采光;墙边做了壁龛收纳,满足泡浴的同时,提供洗浴用品随手拿取的方便。
主卧
主卧整体经过改造,宛如总统套房的居住体验。独立卫生间—开放式衣帽间—整墙的全身试衣镜—独立化妆间等配套设施,极大地提业主居住幸福感。

经典的白墙+木色地板的清爽通过软装的丰富,带来视觉观感的温馨舒适,

高大的床靠,躺上去一定很舒服;床头放置小矮柜,时下手机化的时代,我们其实更需要床头收纳;没有壁灯的固化体验,落地阅读灯的自由,家的主人都能找到适合自己的采光方式。

狭小的阳台被打通,大幕墙玻璃封闭,阳光透入,尽览窗外美景。棕色皮质休闲椅的置入,带来视觉新鲜感;配合阳光的慵懒,安逸居家。

画意十足的床边美景,迷人!

床尾位置,则是给业主预留了布置电视的条件。壁挂式储物柜,可以简单归纳生活用品;也可以作为置物架,摆放饰画等装饰,增加空间温馨感。
往右边穿过,则会来到衣帽间。

开放式空间的通透,为室内带来舒服的采光与通风效果。左边,设计师利用原有门洞,预留墙面进深,嵌入全身落地镜。凹槽式设计,可以减少落灰,降低日常进出碰撞的风险。

U型布局的步入式开放衣帽间,给人极大地视觉冲击。根据人体美学设计的弧度,大量取消柜门设计,让所有衣物一目了然,仿佛大卖场的仪式感。
一样无主灯的自然,柜子顶部还添置了灯带,提升氛围格调的同时,也为业主带来更好地生活体验。

主卫整体布局与公卫类似,除了浴缸的缺失。色调从深色变成白色大理石纹的文艺,大面积镜柜的引入,半墙窄边玻璃隔断,更自由、更简洁的空间语言,都在宣示它私密的空间地位。

洗漱柜更加细分的收纳空间设计,同款化妆镜的出现,都体现业主对女主人的宠爱。
主卧旁的次卧,因业主的需求与实际空间布局考量,将其与主卧打通,隔衣帽间与主卧相连。

通铺木色地板的大气,依托绿植与木色背景墙,布置二人沙发,丰富空间层次感。墙上嵌入壁灯,配合沙发的柔软,安静私密的放松休闲空间。

阳台被包进室内,同样幕墙大开窗的设计手法,配以白纱窗帘的飘逸,唯美梦幻。依托空间定制的L型原木轻吧台收纳,为女主人打造独立化妆间,归纳每一种化妆品。

舍弃吊顶的压抑,配以灯光的自由,提供独立化妆间的仪式感。而日常也可以作为小两口休闲学习办公的区域,也能满足将来孩子的娱乐玩耍。
设计不止眼前的美好,还有长远的规划。
次卧

次卧色调非常简单,白灰的优雅,大飘窗采光的美好,舍弃常规吊顶,带来通透大方的居住体感。

双窗帘设计,白纱嵌在飘窗内,遮蔽隐私不影响采光,方便日常对飘窗的使用。灰色系窗帘,提升视觉新鲜感;更好的遮光效果,睡前拉上,避免早晨阳光刺眼的惊醒。

过于素色的空间,或许会让人觉得无聊,但是整体审美的耐久性是很靠谱的。尤其是如今大部分人装修之后,都是几十年的长期居住,过于繁复的装饰,真的很容易审美过时。
我们可以通过床头灯的温和,软装的温暖,营造居家温馨感,带来舒适的睡眠氛围。
业主心得
装修前一定要做对比,我当时是找了三家装修公司。与其它两家装修公司对比:第一,轩怡的服务会更优质;第二,经过集体量房操作之后,后续的方案报价对比,轩怡给我感觉更靠谱清晰;第三,设计师与我们主人的那个思想比较相符,可能是更贴实地为我们业主考虑吧。

我察觉到设计师会对设计有主观性理解,但更多基于职业专业素养出发,参考我们主人的想法,为我们做出最适合的装修改变,满足我们的生活心愿。
来源:轩怡装饰原创
编辑:小明
责编:老蔡
往期案例
点击按钮
即刻获得免费量房+设计+报价














