改
造后
沿玄关和客厅的转角处
定制了到顶玄关柜
靠近门一侧设计了开放格挂时钟
并且方便进出家门时随手放置物品
靠沙发一侧放置了收纳矮柜
同一空间设计了3组定制柜
实现强大收纳功能的同时
又预留了充足的活动空间
改
造后
现在的整个客厅的地面
铲掉了之前的容易开裂的木制地板
全屋通铺透亮的灰色连纹地砖
天花板做了吊顶设计
采用明装射灯+磁吸轨道灯+线性灯
接近无主灯的设计
使客厅的每个角落都能得到充分的照明
弧形落地窗设计
采光效果大大提升
L型的卡其色沙发
旁边的墙壁做了深咖色的木制墙饰
搭配造型独特的灯饰
“颠覆”之前的客厅软装设计
改
造后
拆除厨房部分墙体
用玻璃门围起来
打造半开放式餐厨
冰箱放置在餐厅
依然还有充足的空间
换上一套简约的餐桌椅
全屋吊顶走线性灯
加上波纹造型吊灯
为用餐提供了充足的光源
改
造后
所有橱柜、电器都“回到现在”
整体白、黑、灰的色调搭配
十分高级耐看
走近点看这个L型厨房
集成灶尺寸刚刚好
靠窗一侧都是操作台-洗菜区
有了内嵌式射灯的光照
整个厨房焕然一新
改
造后
取消一圈石膏线的设计
做了窗型优化
增强了整个弧形落地窗的采光
床头墙刷成了浅绿色
搭配造型时钟和现代画做装饰
瞬间有时尚清新的感觉了!
床头柜旁布置了L型的转角办公区
办公桌搭配壁挂开放格
内部设计了照明灯带
亮度刚刚好
改
造后
重新定制了床和书桌
以太空为主题,床头墙刷了莫兰迪蓝色
搭配了太空漫画的装饰灯
落地窗采用白纱+天蓝色遮光窗帘
十分适合男孩子
书桌书柜一体定制
安装了长条形读书灯
在这片小区域里学习、阅读都很舒适
改
造后
儿童房可以说是“小巧玲珑”
小小的飘窗
节省空间的榻榻米
仿佛所有设计都是迷你版
所有墙面都刷上浅绿色
开灯后颜色不刺眼
搭配浅卡其色的定制柜
有了童年活跃的氛围
卫生间用磨砂玻璃
做了半隔断的干湿分离
天花板安装了
内嵌方块灯+通风管的组合
保证空气流通
长形浴室镜一直延伸到马桶上方
洗手池也延长了一部分
增加卫生间物品放置空间
又不影响马桶的正常使用
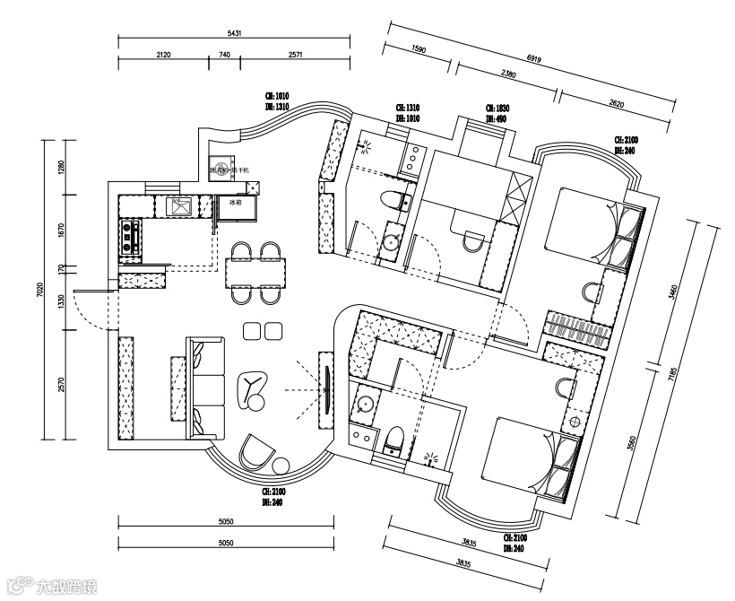
对于异形户型的设计
首先要“诊断”存在的问题
再结合设计
一起进行调整优化
让家“逆风翻盘”!
友友们喜欢这样的设计吗?
▼欢迎点击设计师卡片▼
免费预约明星设计师量房哦!
明星设计师
XUANYI
准装修业主官方交流群
欢迎扫码加入▶
获取更多装修干货和福利▶
END
编辑 | 轩儿
来源 | 轩怡家装



