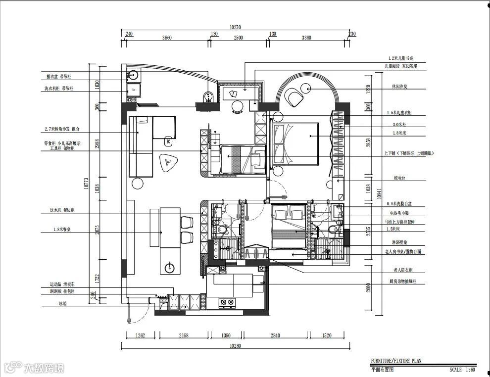
户型设计图
Design drawing
本案的面积是82㎡的中小户型,这个面积可以满足一个五口之家的居住环境以及功能需求。业主夫妇二人对现代简约风的暖色调和格调甚是喜欢。
因此我们构建出了一个简约、温暖的生活空间,可以让业主在繁杂的工作中抽离后,摒弃疲倦的身心,也为了能让老人家过上舒适、温馨的退休生活。
改造亮点
key point
<1> 把阳台隔断,利用一小部分作为小孩房的空间,保持客厅的原有的阳台空间;
<2> 厨房扩大,把原有的小阳台拆掉,增加了厨房与餐厅的空间位置;
<3> 进门右边嵌入储物柜+冰箱+吧台多功能的设计;
<4> 进门的左边则增加了鞋柜位置。
XUANYI
1 客厅
客厅整体采用无主灯设计,以现代简约风为主调,加入线条灯和防眩射灯,增加了空间通透明亮和高级的时尚气质。
同时全屋采用纯实木鱼骨拼地板,搭配高级灰的沙发和茶几,给人一种清新自然的简约与现代的精致感。
有质感的沙发背景墙是做半高背景墙的设计,利用两种色彩相互呼应,在视觉上形成了一个闭环。
让人的视觉焦点不会只集中于简约的白色墙面上,拒绝了棱角的板正,给人一种视觉上的简约又不失高级的感觉。
为了增加空间的收纳需求,不装电视机。
完美利用的吊顶隐藏投影布,定制的奶白色通顶柜子,搭配隐形手拉门,平板无造型,将简约风进行到底,美化了造型同时也把功能的实用性做尽。
节省了空间的用度,让空间整齐不凌乱,多了流动线,也增加家人之间的互动,让家充满了温馨与舒适。
XUANYI
2 餐厅
由于空间户型不大,所以餐厅与玄关是共用一地设计,黑色的餐桌+白色与透明混搭的餐椅,让空间显得更加端庄与活力感。
在餐桌旁还安装了岛台设计,可以打造一个兼并西厨的餐厅,岛台下方设有储物柜,巧妙地运用每一寸空间,减轻了整体负担,让餐厅更实用更有情调。
餐边柜是定制的白色通顶柜,做了三种不同的层次感。灰色玻璃的门,有一种神秘的美感,摆上各种酒,加上灯带和玻璃的折射,完美的把范围凸显出来。在开放的格处,有预留的电源,可以安装饮水机,咖啡机等,让空间不凌乱又实用。
在靠近岛台处的墙面,是做的嵌入墙体柜的设计,同时也把冰箱嵌入其中,让空间更好的利用,也扩大了收纳的空间。
天蓝色的冰箱搭配雾霾灰柜子,给人一种清新自然的感觉且带有高级质感。
餐桌两边留有过道的位置,让走动更松动。
在餐厅的另一边做成悬挂式的白色玄关柜,可以利用底部位置摆放鞋子,换鞋子更方便,同时也能让经常换穿的鞋子透透气。
在柜子上面可以放置钥匙或者盆栽,提升了空间的自然感与整洁。
XUANYI
3 主卧
主卧床头墙是延伸了客厅的白色与雾霾灰的色彩呼应,搭配护眼绿色,视觉上给人一种清新自然与简约的高级感。
半圆形的阳台,作为休闲区,摆上科技布折叠摇摇椅,在阳光的沐浴下,享受这温暖舒适的氛围。
通顶大衣柜与梳妆台一体设计,多余的衣物可以放到顶层,也不容易积灰。
对于家里有小孩的家庭来说,做通顶衣柜,可以防止小孩攀爬衣柜坍塌的可能。
同时衣柜延伸的一处,作为悬挂式梳妆台,既不影响正常的走动,又充分的利用了墙面的空间,让搞卫生的时候也能做到无死角也能省很多力气。
半悬浮吊顶,藏有灯带+防眩射灯和壁灯管的设计,在阳光的照射下,让整个卧室的空间更加简洁明快;同时在绿植的点缀下,让整个卧室都充斥着自然的温柔与舒适感。
XUANYI
4 次卧
墨绿色与白色相融合的墙面,搭配高级灰的床铺,给人一种宁静的感觉与低调。
桌子固定于墙面,让老人家有一个自己的爱好娱乐空间。白色的衣柜可以满足老人的衣物收纳,让空间整洁舒适。
XUANYI
5 儿童房
湖绿色的床头背景,搭配天蓝色的床铺,给人一种清新活泼的感觉。
原木色的床与小型书架,让空间多一份自然与温润感。
白色的衣柜可以满足小孩的很多时候的被褥与衣物的储放,开放式的格子设计在底部,方便现阶段的小孩子的身高拿放方便。
原户型的阳台是跟客厅阳台一体的,为了保证孩子的隐私空间,把原本的阳台分为两部分,一小部分作为小孩房的空间,可以在小阳台处作为学习区。
空间光线好,还可以在写作业的时候适当的放松一下眼睛的疲惫,让小孩更爱学习。
XUANYI
6 厨房
U型的厨房设计,可以合理的利用墙面和台面空间,把一些常用的放在外面,搁板置物架可以把东西摆放清晰整齐。
台面做了高低台的设计,以此来打造一个舒适的备餐空间,让洗菜备菜不再驼背弯腰。
完美的利用墙角的位置,把消毒柜、烤箱都嵌入柜内,节省了空间的用度,可以省下更多的空间。
在另一面是做了整面的柜子设计,收纳无烦恼。
银色的吊柜下面做有灯管,照亮了整个厨房,让烹饪的人在敞亮的空间无限的发挥出自己的厨艺。
XUANYI
7 卫生间
卫生间是以黑白为基调,利用透明色的玻璃门把干湿区分离。
长方形的翻盖储物镜子,可以储放一些备用的洗漱用品。
同时在镜子上下部分都装有感应灯,让氛围感更加饱满。
悬挂式的洗漱柜,可以让清洁无死角之外,还可以满足了卫生间的纳取方便。
白色光滑的洗漱台面,十分方便清洁。
在靠墙处安装牙刷置物架,可以让洗漱台没那么凌乱,保持整洁。
具有灵性的搭配和设计
色彩的表现和细节搭配的恰到好处
让清新素雅的家变得更有质感
欢迎来轩怡与我们一起
打造你的专属美家~
设计师名片
Designer card
END
编辑 | 轩儿
来源 | 轩怡家装
👈🏻官方交流群
欢迎扫码加入
享装修干货福利✨

