本期案例业主是一对从事心理行业的退休夫妻,女儿常住香港,需要一个客房兼备女儿住的房间。
为了丰富退休生活,需要更多的有娱乐休闲空间,比如书房、办公房、电影房和健身房等一应俱全,诠释都市精彩退休生活大宅范。
由于本宅空间大区域多,我们将分两期展示,今天先给大家介绍别墅的1-2层吧!
设计亮点
1楼
2楼
负1楼
负2楼
(点击图片可查看大图)
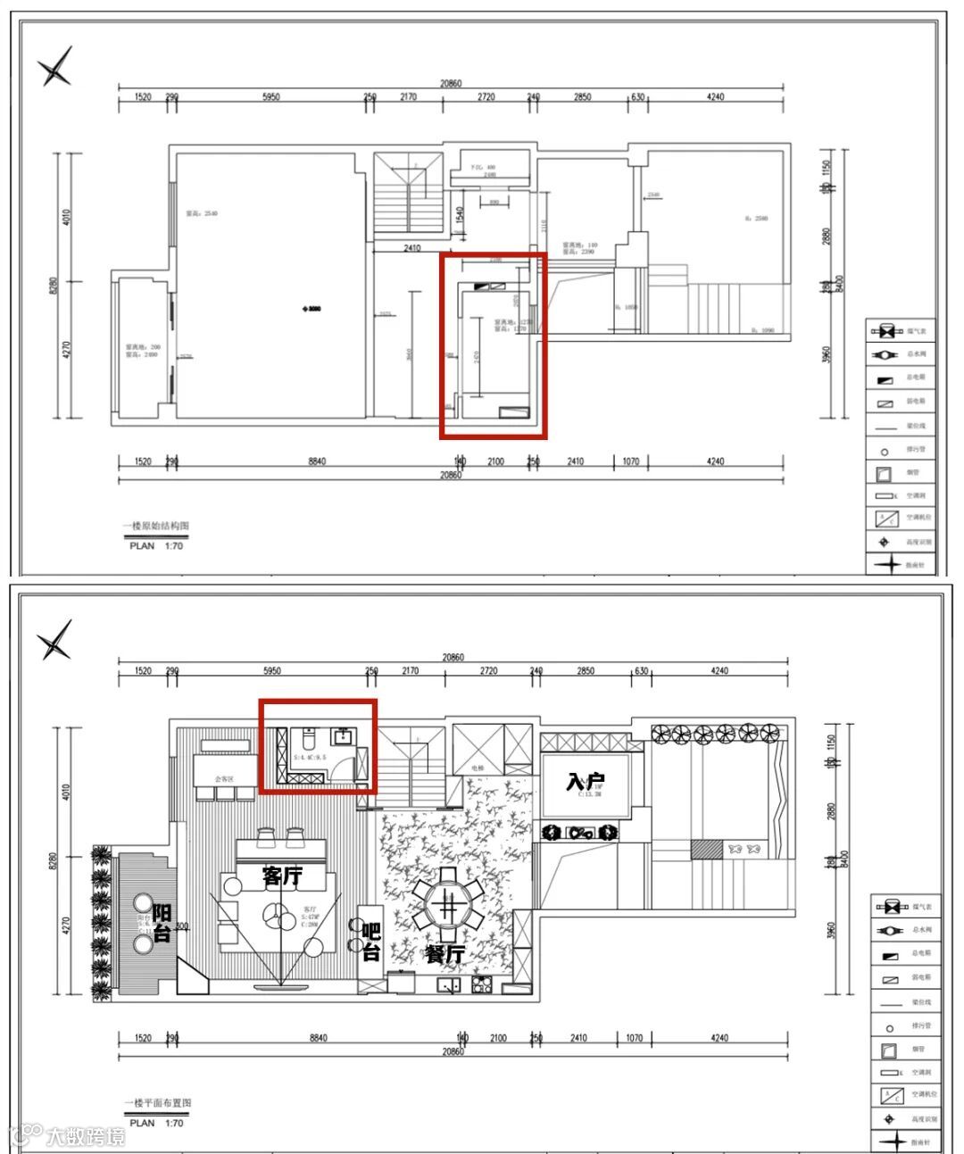
1、一楼入户进行了调整,把原本户外的入户玄关设计成室内,布置了一个大型玄关柜,主要是为了解决室外使用率的问题,增大了入户使用功能;
2、业主担心日后年纪大,不好走楼梯,希望是能装一台电梯,但是户型是没有预留电梯位置,最终是牺牲掉了原户型的卫生间,把卫生间移动到客厅区域,同时增加了隐藏门,解决了在客厅看到卫生间的尴尬;
3、餐厨空间应业主需求,做成开放式西厨,餐厨一体化设计,提升了空间的利用率;
4、二楼主卧根据空间结构,设计了一个超大型的步入式二字型衣帽间,为主卧增加收纳储存空间;
5、主卫可使用空间较大,则做成三分离设计,且湿区淋浴房布局了大浴缸,干区增加了一个桑拿房。
玄关
XUANYI
为了增大入户的使用率,设计师把入户玄关位由原来的室外改成室内玄关,取消了入户花园,为业主打造了一个大型的入户玄关空间,彰显大宅风范。
以茶歇色铁艺大门为中轴线,玄关柜呈二字型排列布局,大大增加了整屋的空间收纳,同时也避免了入户缺少玄关过度的尴尬。
通过原户型卫生间让位后,考虑到业主以后年迈行动不便,整栋别墅安装了电梯,为居家生活增加了便利性。
玄关柜二字型布局的一边是整面到顶收纳柜,作为日常出门包包、衣服等物件的收纳空间,通体柜面采用灰色磨砂木饰面设计,金属边点缀柜体,搭配符合人体工学设计的黄铜拉手。
在三盏后现代壁灯的映照下,满满的质感设计,玄关的格调气质瞬间提档。
玄关柜的另一边,则做成换鞋卡座+全身镜面鞋柜一体化设计,整体轻奢格调非常突出。
以宝蓝色软坐垫打造的卡座位,还搭配了一个同系列的靠背枕,设计师利用两侧的空间结构,还设计了一个小型的开放式收纳隔板,十分方便。
全身镜面收纳鞋柜的选用,更加表现了设计师对空间规划的充分利用,关闭时是方便的全身镜,打开时又是收纳功能满满的鞋柜,能够适应各种生活场景,充分体现了设计师专业独到的眼光。
客厅
XUANYI
一楼客厅用一台欧式三叶吊扇形吊灯代替了传统的主灯设计,在阳台大面积玻璃折叠门的透光下,通铺木饰地板的客厅,空间感瞬间延伸,搭配白色灯带修饰的长形天花,客厅空间视觉瞬间扩容翻倍。
采用传统茶几布局的客厅,用两张长形沙发组合成L形布局,既满足家庭日常使用,还能会客接待。
客厅电视背景墙采用花纹大理石铺设,选用壁挂式电视搭配,简约大气。
在背景墙的延伸处,设计师打造了一面黑色岩板墙,内嵌3D雾化壁炉,不仅与一旁的电视背景墙形成鲜明对比,还提升了空间的设计感。
穿过客厅来到沙发背后,是一个鱼缸+收纳柜一体化设计的多元收纳空间。
靠近客厅的一边,以纯白色的木饰面制作而成的暗门设计收纳柜,靠近阳台一边,则是用玻璃拉门设计而成的半封闭式收纳空间,与一旁的木饰面背景墙相衬,白黑棕三色搭配,层次感非常鲜明。
因为需要安装电梯,把一楼原户型的公卫位置让位给电梯后,设计师把卫生间移动在客厅区域。
公卫与旁边的收纳柜形成一体化设计,做成隐藏门设计,解决了在客厅看到卫生间的尴尬,在视觉上起到了美化的作用。
公卫空间比较窄小,只保留了干区布局,其中在坐便器旁边设计了一面黑色金属包边的全身镜,方便客人使用公卫时整理仪容仪表。
木制洗手台+镜面柜设计,在优化空间使用的同时,再次了巩固公卫的便捷性和收纳性。
厨房
XUANYI
一楼的餐厨空间应业主需求,同时考虑到空间规划与空间美观度,做成开放式的西厨设计。
西厨式的餐厨一体化设计,再次提升了空间的利用率,在智能圆形磁吸轨道灯与个性线条吊顶灯的修饰下,新风尚照明,整个餐厨空间高端的格调展露无遗。
“L”型操作台+岛台+餐边柜一体化设计,整体以深棕色木制橱柜为主,开放式+封闭式组合设计,搭配一张白色圆形六人桌的大理石餐桌椅,不仅空间配色更有层次感,同时更加体现了业主对生活质量的极致追求。
岛台的设计,成功把西厨空间和客厅空间隔断开来,让各空间属性有了更加明显的界限。
各种智能家电使用和做嵌入式布局,加上依托操作台延伸和天花梁柱尺寸位置,打造了一个开放隔板收纳空间,既是满足了业主的装修需求,同时体现了设计师对空间合理规划的专业设计。
主卧
XUANYI
主卧整体空间十分开阔,通铺木地板的宽敞,搭配一盏风扇型吊灯+方形磁吸轨道灯+筒灯的组合设计,在通透的大阳台的映照下,整体空间视觉感瞬间加强,舍去繁杂的软装设计,空间的呈现更加大气。
主卧空间装饰虽是舍繁就简,但收纳空间一点也不让步,双床头柜+长形床尾柜布局,为主卧增添了更多空间收纳。再搭配一张简约跳色的抽拉式化妆台,丰富了主卧的多元收纳功能。
一个步入式的U字型衣帽间成了主卧装修设计的一大亮点。
莫兰迪绿定制柜+深灰透明玻璃衣橱的组合设计,再搭配一面全身镜,日常装扮更加便捷。
以透明玻璃打造多元收纳空间,整面到顶墙充分利用起来,开放隔板与半封闭隔板组合布局,一个多元收纳空间得以完美呈现。
整面到顶封闭式衣柜设计,通体以莫兰迪绿为主,金属把手点缀,再搭配两盏暖光筒灯映衬,整体散发着复古的气息。
打开衣柜,以悬挂式衣物为主,内嵌暖光灯带,设计高级柔和。
次卧
XUANYI
次卧是一个集办公看书休息于一体的多功能房间,是业主指定打造的办公休息的地方。
设计师则根据业主需求和户型空间,在布局书柜+书桌一体设计的同时,加入榻榻米设计,让次卧利用率翻倍提升。
书桌旁的休息区放置榻榻米,由三个大抽屉组成的灰色床体,加上一张同色系床垫,搭配几个软抱枕,看书办公累了可以在这里休息。
闲时还能用作多余的客房,用来招待客人,一房多用的多功能房间,满足多种生活场景需求。
卫生间
XUANYI
双洗漱台+双镜面设计,搭配镜子周边内嵌的LED灯带,梳妆十分高效。
主卫在拥有充足空间的条件下,按照业主的生活需求,设计师做成宽敞的三分离设计,如厕空间做成干湿分离设计,保留了淋浴房。
泡浴空间与洗漱台的整墙设计保持一致,加入浴缸布局后,依旧保留花洒装置,在双开窗户的映照下,采光和通风一并加强,让业主随时享受星级沐浴。
应业主需求,在主卫还增加了一个木制桑拿房,满足业主更多的休闲生活需求,打造了一个尽善尽美的主卫空间,彰显家的质感生活。
洗衣房
XUANYI
从电梯出来左转就是设计师专门为业主打造的洗衣房,同时兼工人的休息空间,一房多用。
洗衣房布置了一张绿色长形布艺沙发,作为工人的休息空间,旁边则是依托墙体打造的整面到顶衣柜,用来收纳衣物和杂物。
看完两层的大户设计
不禁感叹业主对生活品质的高追求
更加考验了设计师的专业能力
我们下周同一时间继续带来
这个480㎡豪华别墅的下期!
喜欢的记得关注哦
欢迎找我们为你设计专属美家~
明星设计师
FAMOUS DESIGNER
何明
从业时间7年
擅长风格:
现代 极简 南洋
准装修业主官方交流群
1
END
1
图文来源丨轩怡家装
编辑丨轩儿


