最温馨的灯光
一定是家中那盏
用爱照亮生活的本质
让幸福逐渐具象化
质感之居自然呈现
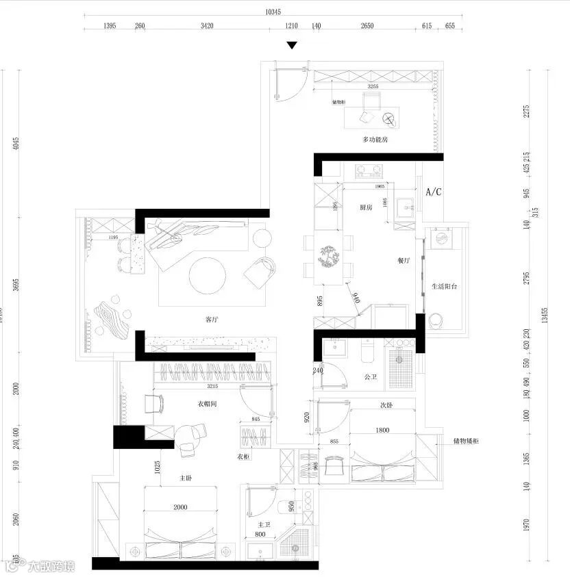
设计亮点
✅LDK一体化实现空间扩容;
✅小卧室并入主卧改为衣帽间;
✅主卫采用洗漱台外置,外扩空间放下浴缸。
XUANYI
PART. 玄关
ONE
实用与高级兼具
Xuanyi home decorationrealcase
玄关与原本的小卧室合并,将空间扩大。
整墙定制柜尽显轻奢质感,划分的收纳区域兼具实用与美观。从进门起,便已营造出质感有序的生活氛围。
PART. 客厅
TWO
通透明亮且精致
Xuanyi home decorationrealcase
吊顶从客厅延伸至餐厅,将整个空间营造出通透宽阔的视觉体验。
筒灯、灯槽、轨道灯……相映生辉,营造氛围十足的光影盛宴。
复古绿沙发区与清浅结构交融,深深浅浅绿点缀其中,结合后侧墙板与光影,色质浓郁复古。
不规则茶几组合造就层次错落之美,将客厅的空间质感美学强化升级。
阳台凹位放入定制柜,白咖搭配内敛丰富。适度留空与灰玻在天光投射下,晕染出柔和治愈的氛围。
PART. 餐厅
THREE
井然有序的温馨
Xuanyi home decorationrealcase
石纹元素布局餐厅空间,轻奢质感扑面而来。圆形餐桌象征团圆,桌面花球组合令就餐时光充满意趣。
餐边柜进深过渡处转折为钝角,将生硬折断变为平缓一瞥连通区域。
组合搭配呼应阳台柜,虽散落空间两端,气势却相通相连。
PART. 厨房
FOUR
颜值实用全拿捏
Xuanyi home decorationrealcase
厨房改为开放式,LDK一体化将崎岖空间连通有无,令居者悠然穿梭于餐厨之间。
白柜黑台灰墙重塑空间秩序与力量,浅浅浮现的纹路将自然肌理融入其中,领悟生活纯粹美。
PART. 主卧
FIVE
身心归属慢享受
Xuanyi home decorationrealcase
小卧室并入主卧,重置动线将衣物收纳区提前。
窗前书桌与开放格的组合,开辟梳妆区,也能兼顾临时工作区的角色。
墙布与墙板共同勾勒墙面,黑色腰线做分割,投身艺术之境。纹理汲取树叶线形,舒展蔓延,将自然味带入寝居。
主卫化实为虚将墙体隔断转为玻璃,透光不透人实现卧室双面采光。
圆月图纹搭配洗墙灯,彰显光影之美。
双层浴室柜全新收纳设计,小件物品放置抽屉处,大件物品放置留空处,上下分区,打造整洁浴室。
XUANYI
JIAZHUANG
湿区位置为浴缸
在栖息之地
享受生活的美好
PART. 次卧
SIX
清爽配色好入睡
Xuanyi home decorationrealcase
榻榻米向上延伸出衣柜,满足储物需要。
纯白柜体,奶蓝墙面,柔和的碰撞带来包容性姿态。
PART. 卫生间
SEVEN
美观实用空间足
Xuanyi home decorationrealcase
墙地通铺加强整体性,干湿区的妥帖分离,大理石拉槽的舒适,线灯风氛围补入,带来舒适体验。
XUANYI
编辑:小怡
责编:老蔡
拍摄/后期:天佑








