绿植、材质、轮廓
设计将多元素融合
打造出独有的“都市绿洲”
轻快明朗的绿意盎然风
弥漫在家的每个角落
设计亮点
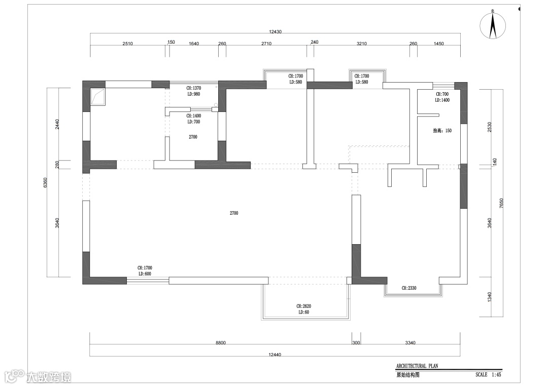
原始结构图
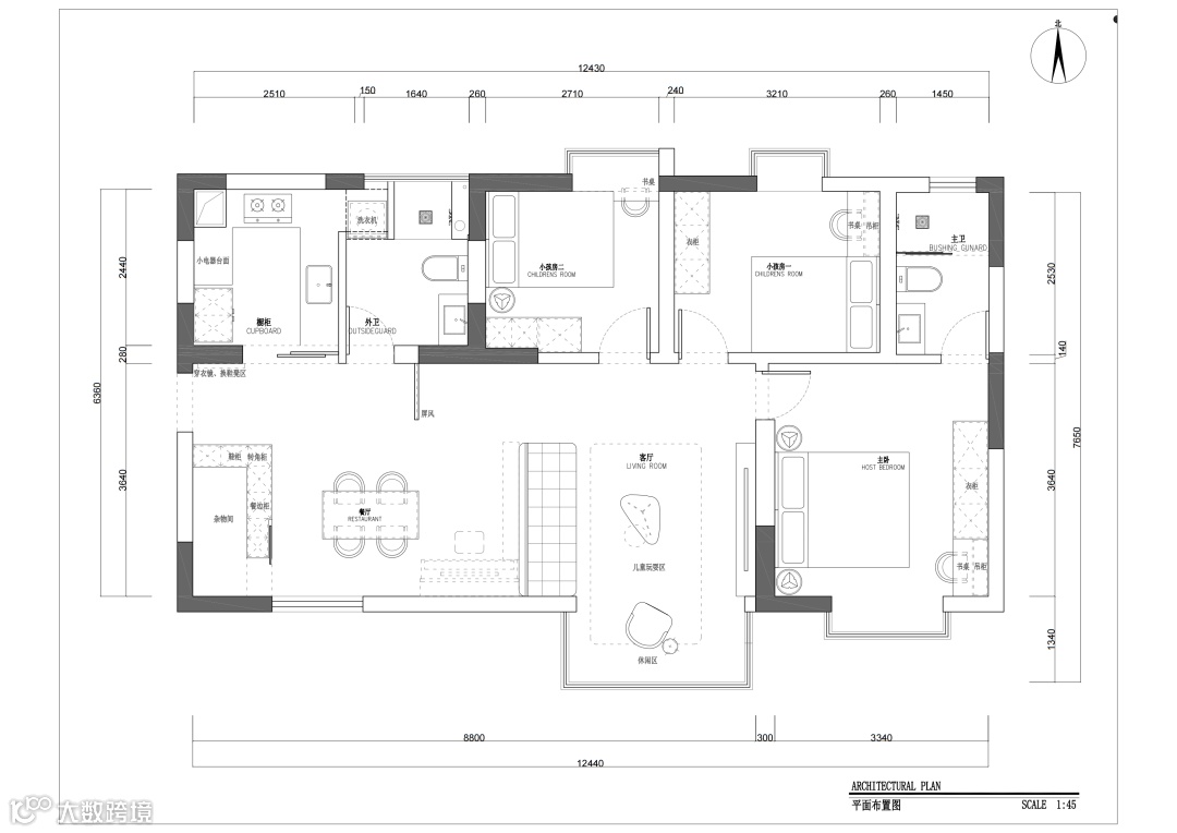
平面布置图
✅借用玻璃隔断,化解冲撞格局;
✅玄关延展L型柜圈出杂物间,分担收纳压力;
✅厨卫动线梳理分离,贴合生活。
XUANYI
PART. 玄关
ONE
美学由此即展开
Xuanyi home decorationrealcase
一扇玻璃将玄关区独立出,绿植掩映,挂件作配,烟火十足,惬意自得。
内观朦胧,定制玄关柜功能齐全,打造完美收纳。
PART. 餐厅
TWO
用餐时刻皆享受
Xuanyi home decorationrealcase
白色定制柜占据餐厅整面墙,与玻璃、钟表、挂饰、吊灯、绿植相结合。
形成一幕舒适的清爽画卷,打开对三餐四季的美好向往。
三种餐椅拼配,大玩式样混搭。
木质厚钝被金属藤编异化,成为轻盈表达。光是餐区氛围的创造者,丰富生活与空间的关联细节。
PART. 客厅
THREE
绿意盎然如初夏
Xuanyi home decorationrealcase
落地窗模糊内外边界,将满目绿意揽入,应和沙发生出些许薄荷曼波的气质。地砖通铺,柔和无垠,空间感宽阔明亮。
电视墙简单石膏线框排列,摆放轻法式电视柜,黑白强烈冲撞,带动视觉空间。
巧妙插入的摆件绿植,是家气质的诠释。
沙发纹理细腻,绒面感将地面柔光衔接,宛若生长。
抱枕是居住者的小心思,于一片清新中演绎现代,却格外有筋骨。
PART. 厨房
FOUR
明亮通透功能足
Xuanyi home decorationrealcase
橱柜+冰箱组合出黄金布局,在小空间内将场景妥帖安排。上白下灰的深浅相宜,柜体将空间过渡出层次。
墙面克制增设些许小层架,将调料收纳安排至立面,更显台面清爽简洁,也是现代设计的细节诠释。
PART. 主卧
FIVE
观景收纳皆可得
Xuanyi home decorationrealcase
空间起承转合排布居住者的生活,牵引着从“闹”至“静”的状态转变。
开窗打开立面,玻璃通透弱化墙体,主卧上演虚实相合之美。
床尾通顶柜站立,组合多种收纳式样,将四季衣物妥善单排。
花砖拼贴,墙砖优雅,喜爱元素在空间内上演混搭,是贴近内心的顺承表达。
淋浴房边框量感削减,功用分离,视觉相连,小空间得以放大。
PART. 卫生间
SIX
干湿分离功能全
Xuanyi home decorationrealcase
厨房、卫生间、生活阳台的三方重组,诞生出多重功能区将洗衣、洗浴融合。
浴帘代替玻璃门,化解空间不足的尴尬。
花砖赋予地面艺术气,渲染出独特氛围感,并从颜色上呼应浴室柜。
黄铜拉手巧做点缀,复古气十足。
PART. 儿童房
SEVEN
再小也有学习区
Xuanyi home decorationrealcase
飘窗借由抽屉抬高改造为书桌,打造功能区,实现空间复用。
• END •
编辑:小怡
责编:老蔡
拍摄:杰龙
后期:天佑


