XUANYI
设计亮点
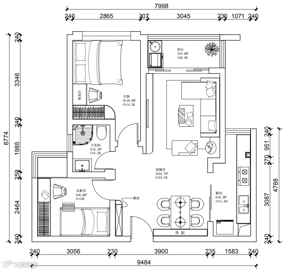
1、原户型厨房位置小,打造开放式厨房,对空间进行合理的规划运用;
2、全屋大量采用射灯+灯带的设计,亮度充足,自然简约;
3、主卧利用飘窗打造梳妆台+收纳柜的设计,增加便利性。
XUANYI
玄关
房型虽小,但也不能没有玄关!入户在门口左侧放置一个低矮的玄关柜,不仅增加入户的便利性,能放置入门随手的小物品,同时可以将厨房与玄关做一个软性的隔断。
入户另一侧还做了到顶的收纳柜,中部留空设计同样也能放置物品和装饰品展示,为业主打造了储物功能强大的玄关区。
采用一字挂板和镜子的结合,出门前方便检查仪表;值得一提的是,壁挂的玄关椅子大大节省了空间,使用的时候才需要打开,日常就合上紧贴墙壁,堪称“玄关换鞋省空间神器”!
XUANYI
厨房
小户型的空间十分紧张,适合做开放式厨房,于是便设计了“一字型”布局。
同时加入一个吧台,不仅能起到隔断的作用,又增加了区域之间的互动性,柜体的设计还能满足收纳哦!
将工作区沿着一面墙去布置,尽可能地把一切厨房电器都做成嵌入式,给过道留出更多空间,一个超便捷厨房就此诞生!
XUANYI
客厅
客厅采用无主灯的形式,简洁大气,视觉上还有拓展层高的作用。
壁挂电视上面设计了洗墙灯,底下增加收纳板,既能作为装饰区,又能收纳客厅的小物品,整个客厅随手一拍也能成为点赞过万的“网图”。
设计师为了最大化地利用空间,将客厅与阳台的打通,让自然光更好的投入室内,改善客餐厅乃至玄关的整体采光。
拱形门洞的设计打破常规,独特的线条体现了设计的精致美感。
大面积的玻璃窗给空间提供更多采光,为了实现阳台的收纳,特意增加可伸缩的收纳架,同时采用白色纱帘来遮光,在这里摆上一个单人摇椅,享受慵懒的悠闲时刻。
从阳台回顾到客厅,有视线的延伸感,通透性满分,肉眼可见的空间变得更大了。
XUANYI
餐厅
设计师利用墙体,将餐边柜和冰箱嵌入墙体,拿取物品很方便,也不占太多空间。
采用筒灯+主灯的设计,暖光照明为一家人提供温馨的就餐氛围。
借用餐厅1m²的位置,打造一个小小的工作区,放置了工作台+收纳柜,满足工作和收纳需求。
XUANYI
主卧
✦ +
+
设计师在不改变横梁的情况下,将飘窗利用起来,打造收纳柜+梳妆台一体化的设计,美观实用!
XUANYI
次卧
✦ +
+
次卧同样拥有一个飘窗来增加空间的采光,值得一提的是次卧还有一个小小的衣服储物区,采用拉帘做软性隔断,满足收纳需求还保持空间的干净整洁。
XUANYI
卫生间
卫生间里面是铺设摆设白色的小方格瓷砖,搭配黑色的花洒,让空间更加时尚且有质感,也增加了空间的宽敞明亮度。
在墙壁处做了壁龛的设计,用于摆放沐浴用品,让空间整洁舒爽。
选择了一体盆,配套白色的水龙头五金,与卫生间所用的小白砖形成统一性。
智能镜柜的设计,实用又高级,需要做同款的友友们记得要预留电位哦。
越是精致的户型
越是需要巧用空间
每个角落都考验着设计师的心思
让小家扩容,达成逆袭成就!
解锁小户型的更多可能!
想打造同款美家的友友
欢迎预约本案设计师哦▼
“
明星设计师
黄思岳
从业时间5年
擅长风格:现代 简约 北欧 法式
准装修业主 / 官方交流群
XUANYI
▼欢迎扫码加入▼
获取更多装修干货和福利
END
编辑 | 轩儿
来源 | 轩怡家装


