设计以系统舒适的方案
拓宽优雅生活的边界
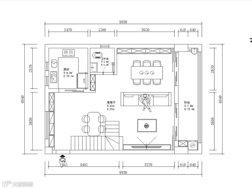
本期案例将隔断墙打通
本来局促紧凑的复式一楼
变得视野十足开阔
化繁为简更好住
设计亮点
原始结构图
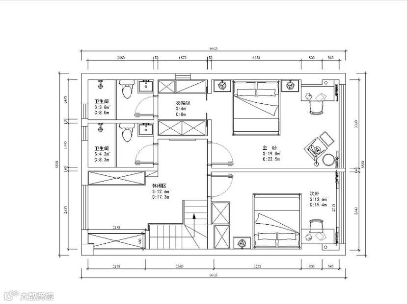
平面布置图
✅一楼隔断墙拆掉,房间与客厅连通,视野开阔,空间扩容;
✅二楼楼梯口平台设计为衣帽间,空间完美利用。
XUANYI
PART. 玄关
ONE
功能 美观 细腻
Xuanyi home decorationrealcase
空间游刃有余,景观轻松自得。
借由墙面,定制柜拾级而上。换鞋凳、鞋柜、收纳柜层次分明,多种功能一应俱全。
短帘、摆件与柜体满分适配,与窗景融洽为一体。
PART. 客厅
TWO
横厅 宽窗 灵动
Xuanyi home decorationrealcase
横厅区域与回型吊顶上下相应,大气基调已成型。
沙发墙简笔勾勒,白色将块体退隐。
植物与光线侵袭得恰到好处,呈现出人工与自然合作下的场景突破。
打掉隔断墙,在后方陈列长桌,呈现双重休闲空间。
奶油色餐边柜倚墙而立,拱形与玻璃拼配,将设计感凝于细节,交织出层次丰富的居住空间。
PART. 阳台
THREE
分区 定制 功能
Xuanyi home decorationrealcase
横厅赋予阳台足够尺度,让出空间足笔勾勒。两大功能区分侧而立,演绎双重奏生活方式。
PART. 餐厅
FOUR
弧度 柔和 烟火
Xuanyi home decorationrealcase
奶油色桌椅顺应色系表达,打造日常温暖。吊灯弧线造型自带动感,吐露设计魅力。
定制柜做嵌入式处理,中部留空延伸玻柜,将边角空间利用,温情基调就此铺陈开来。
PART. 厨房
FIVE
双窗 流畅 洁净
Xuanyi home decorationrealcase
厨房带入一抹绿意,自带疏离气,经过光线浸润,又传达出一种动人的温暖感。
双窄窗将视野打开,望之即可见外部生机勃勃,赋予功能空间无限意境。
小收纳架将诸多琐碎归拢安置,还原台面简洁。
PART. 主卧
SIX
套房 完整 轻盈
Xuanyi home decorationrealcase
主卧将小阳台纳入,用拱门过渡内外,中和梁柱生硬,给人以循循而来之感。
草绿帘布与绿植相应,生机成为公私共拥的主题。
边吊联动墙漆、石膏线勾勒立面,引申出无尽意。墙漆淡淡投映暖色,弥漫柔情蜜意。
前往主卫的过道融入衣帽间与梳妆区,完备主卧功能。
衣柜一组改为半开放式,通透有界,与窗相呼,减弱长廊压抑。
PART. 次卧
SEVEN
色彩 涵养 收纳
Xuanyi home decorationrealcase
次卧也以大地色搭配涵养空间,将生活质感近一步深化。简单跳色形成有度变化,点缀睡眠空间。
多功能的床头柜承担双份角色,打造功能角落。支脚纤细减重体量,更自如。
PART. 平台
EIGHT
收纳 中和 美学
Xuanyi home decorationrealcase
二楼平台增补衣物收纳分担卧室压力,给予日常生活更高灵活度。
• END •
编辑:小怡
责编:老蔡
拍摄:杰邦
后期:天佑

