200㎡现代简约风
经久不衰的现代简约风
看似简单
但想要做出品味
十分考验设计师的功力
不着吹灰之力
即可呈现出高级感
这便是设计的精妙之处
本期案例是一套带有地下室的200㎡旧房改造,主打现代简约风,整体装修以华丽不张扬、简约不简单的设计凸显都市生活的格调,满足多元需求,让设计融进生活,走进生活。
设计亮点
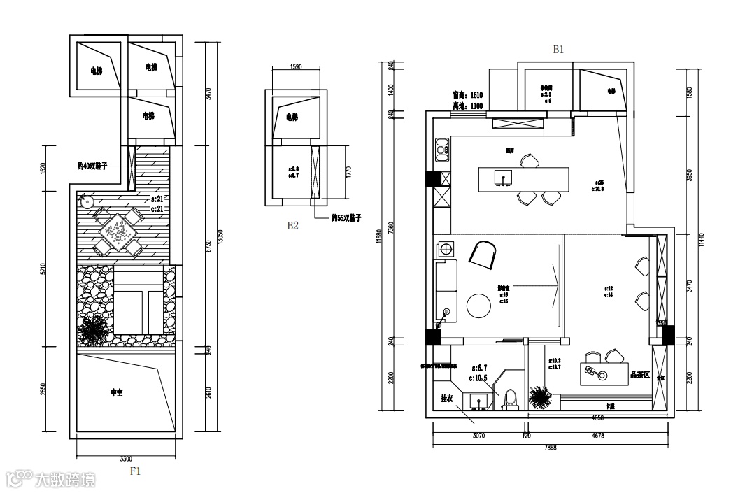
平面设计图01
平面设计图02
平面设计图03
☑️为了扩大客厅的空间,将原户型的阳台采用铝合窗封装起来,做成落地窗,搭配白沙窗帘装饰,简约却不失华丽;
☑️考虑到业主喜欢烹饪,做中式厨房的同事,地下搭配办公室空间,在大厅做了一个开放式的西厨,既可以体验烹饪,还可以成为办公区的茶水间,满足多元需求;
☑️由于业主有居家办公的需求,设计师利用户型结构,将地下室打造成一个配套的办公环境,带有客厅和茶水间。
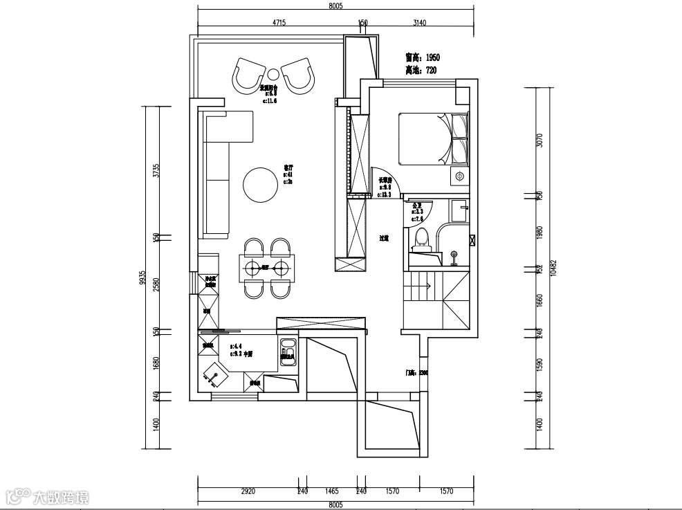
01.
/ 客厅/
整体用深色、灰色、白色作为主色调
一张2M长的深咖色皮质沙发
与灰黑色的木饰面沙发背景墙相衬
用颇具设计感的小边几代替客厅茶几
简约素雅且充满格调
定制整面收纳柜做电视背景墙
中间内嵌电视机
周边留空用来摆放装饰品
纯白定制柜和对面深灰色背景墙
形成鲜明对比
充满现代简约的设计感
铝合窗封装阳台后
整个客厅空间扩容3㎡
保留客厅的结构形状
一边放置了蓝色休闲椅
一边做成阳台窗帘同色系嵌入式收纳柜
既美观又实用
02.
/ 中式餐厨/
餐厅紧挨客厅
黑灰色的水磨石质感配套餐桌椅
满足日常六人用餐需求
冰箱+蒸烤一体机进行厨房外置处理
靠近餐桌,日常生活动线缩短
且释放厨房空间
满满的居家幸福感
半开放式的厨房设计
缓解餐厨空间的局限性
而且满足了业主对中厨烹饪的需求
L型的厨房布局,外加铝合窗的加持
采光和空间都充分利用起来
实现小空间大延伸的设计理念
03.
/ 主卧/
主卧延续简约的设计原则
取消繁杂的装饰
简单的双眼皮吊顶
搭配浅灰色地砖和浅灰色床头背靠
空间视觉十分开阔
在落地窗的映照下
舒适感和温馨感直线拉满
利用入门横墙
打造整面到顶内嵌衣柜布局
无把手设计
让原本简约的主卧看起来更加大气素雅
通柜以深黑色呈现
搭配深紫色的床品
色彩搭配更加鲜明和谐
空旷的床位空间
配套定制了一个四层高的长形斗柜
配套放置化妆台+椅子
满足女业主日常装扮的需求
04.
/ 客卫/
卫生间做常规的干湿分离
黑色线条装饰的门
和同是黑色线条的玻璃浴室隔断相得益彰
浅色地板和米黄色花纹墙砖
在灯光的照射下
更显温馨高级感
05.
/ 长辈房/
简约的米黄色背景墙
设计师做了墙花设计
一枝红梅+两只燕子铺贴
在圆形射灯的照射下
有种“月是故乡明”的既视感
打造了一间充满禅意韵味的长辈房
整屋最有利的户型结构
就是每个房间都有一个大窗口
当然长辈房也不例外
搭配肉粉色双层窗帘装饰
白天黑夜自由切换,满足居住需求
06.
/ 儿童房/
儿童房以米奇作为主题元素
白色的米奇头形
为空间设计增加了趣味
打破儿童房沉闷的设计格调
充满童真与活力
利用床尾的大空间
打造了整墙到顶收纳柜
其中嵌入书桌和展示柜
镂空处采用原木纹路做外饰面
在层板灯的烘托下
放上孩子的相框及装饰品
更有家的味道
07.
/ 地下客厅/
地下室客厅整体在配色上
多样又有层次感
墙面与地板采用米黄色系
一张深灰色的异形沙发和千鸟格贵妃椅
组成围合布局
非常适合社交和商务洽谈
摒弃传统的电视机布局和主灯设计
做成投影功能
从光线环境和设计布局上
都优先考虑了办公需求
非常贴心~
08.
/ 地下厨房/
开放式的西厨空间以深咖色为主调
L型操作台加入岛台
搭配四座高脚凳
取消主灯设计
用灯带做照明和氛围烘托
偶尔小酌一杯
直接将氛围感拉满!
整个西厨空间
收纳设计做得非常好
操作台两边都做了整墙到顶橱柜收纳
搭配开放格的设计
满足厨房多元收纳需求
09.
/ 地下工作室/
依托客厅
隔墙打造了一个办公室
U型玻璃+方块玻璃隔断的组合
个性和格调都十足
办公室的功能十分强大
既满足了办公需求
也满足了茶饮招待的需求
同时通过定制收纳柜
满足收纳需求!
饮茶区域靠墙而设
依托墙的一边打造了卡座
其中悬空设计的展示柜
摆上各种各样的茶杯
具有观赏性
再与长形实木桌配套设计
搭配屋顶的天窗采光和旁边的绿植点缀
打造了一个非常舒适的品茗环境
居家设计既要有实用性
又要有观赏性
从而打造极佳的生活体验
获取更多装修灵感
记得持续关注轩儿哦
——
友友们喜欢这个设计风格吗?
▼欢迎点击设计师卡片▼
免费预约明星设计师量房哦!
• END •
欢迎扫码加入
获取更多装修干货和福利👇
准装修业主官方交流群



