👉文末点击设计师名片,get同款设计!
👉底部点击获取更多干货和实景案例,装修不迷路!
130㎡现代简约风
空间承载着情绪的流动
带领生活向人生的旷野奔去
今天这期130㎡私宅
设计师将现实需求转化为抽象设计
演绎人与空间的互动、成就
让家超越空间结构
成为真正的生活容器
设计亮点
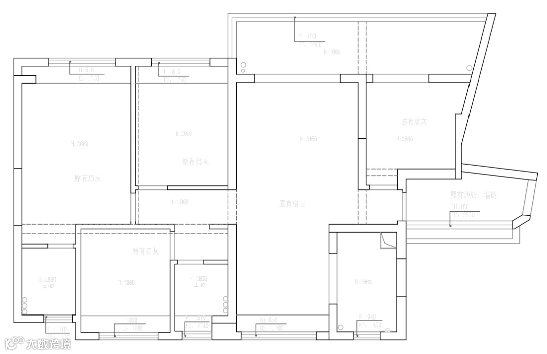
原始户型图
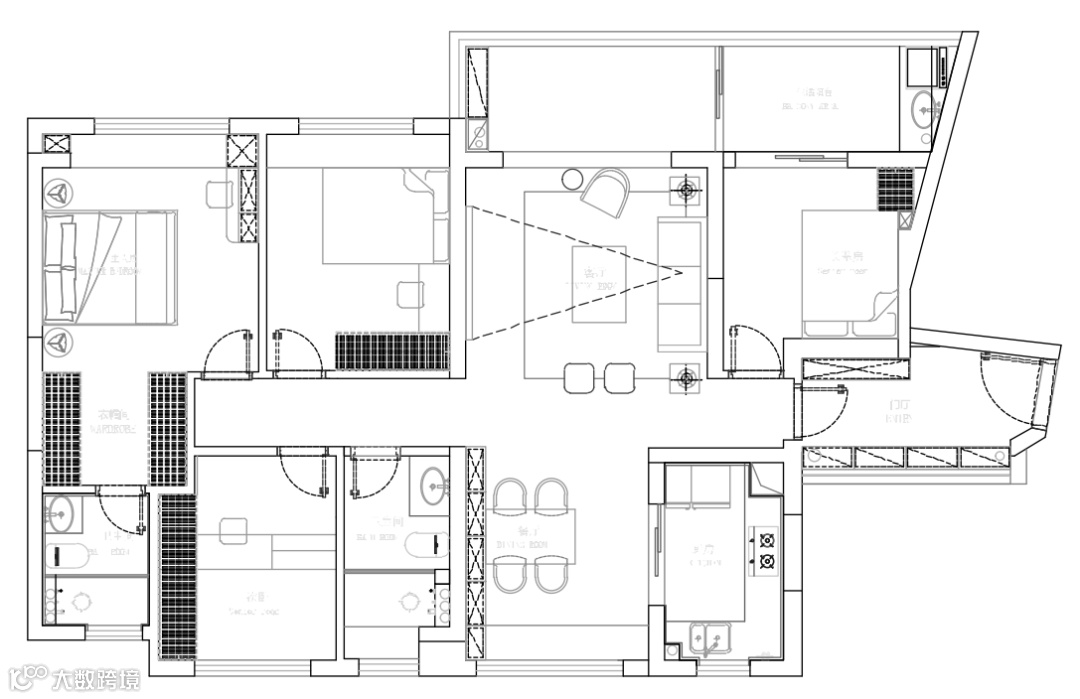
平面设计图
☑️门厅靠墙做嵌入式玄关柜,满足归家收纳;
☑️阳台中部改用玻璃移门隔断,隔而不断,轻盈通透;
☑️主卧改变门洞位置延伸过道,让出空间打造衣帽间;
☑️打掉卫生间隔墙,一字型布局实现干湿分离。
01.
/ 客厅/
沿入户走廊深入
客厅空间逐步展现于眼前
白色+暖光+平拱
柔和空间冷硬结构
点点深色点缀其中
营造深深包裹的静谧体验
天花选用极简悬浮吊顶
边缘做嵌入式灯带
结合精心规划的筒灯布局
形成跃动多变的光影
丰富空间形态
八字腿深灰蓝真皮沙发
触感光滑,视觉豪奢
搭配跳色花式抱枕
中和蓝色带来的沉郁冷静
突出视觉层次感
一组错落摆放的饰画
利用比例、形状的不同
打破背景白墙的死板
赋予空间灵动
抽象派元素的植入
让艺术走进家居生活
营造独特的艺术视角
L型悬浮电视柜
横白竖黑配色经典
墙柜采用透明柜门
让视觉更轻盈
避免满墙柜的压抑感
02.
/ 餐厅/
餐区空间开阔
大面积飘窗实现对流之时
亦得以揽进饱满透亮的日光
顶面延续无主灯设计
搭配流线型餐桌
延续极简设计语言
米灰餐边柜完美衔接吊顶
掩门柜+抽屉+开放格的组合
容纳海量杂物
搭配无把手设计
简约大气,颜值满分
左侧通顶玻璃酒柜
既满足收纳又时尚大气
中部留空植入黑色开放格
与侧边黑色元素呼应
一横,一竖
更添空间气势
03.
/ 厨房 /
十字门冰箱+L型台面
打造厨房U型布局
墙地通铺杏子灰柔光砖
搭配同色系门板
塑造人间烟火的温柔氛围
家电做嵌入式处理
搭配上墙置物架
帮助琐碎物件归位
还空间以整洁
04.
/ 主卧/
主卧色系素雅沉静
护墙板+半墙设计
赋予简朴空间以精致
做单侧飘窗柜
延伸出悬浮小桌台
置物梳妆随心而行
在前往主卫的过道
嵌入两组顶天立体衣柜
将四季衣物安放体贴
侧板和门板采用双色
延续整体色调风格
主卫引入经典黑白搭配
杏色系肤感柔光砖
搭配黑色金属物件
让小空间也精致有型
05.
/ 客卫/
利用玻璃移门
防止水汽实现干湿分离
淋浴区融入双层壁龛
收纳日常洗浴用品
更显空间整洁
06.
/ 次卧/
次卧以简单舒适为主轴
轻松勾勒调性空间
软装延续公区简明气质
以灰为主,更显沉稳气质
衣柜到顶设计简约美观
收拢冬夏藏衣
延伸出一字型书桌
巧妙分配空间功能区块
07.
/ 儿童房/
利用榻榻米一体化设计
改造成多功能房
兼顾休息+工作+收纳
小空间也能有大作为
素色肤感柜门配以凹槽拉手
手感细腻,简约干净
中部设计开放格
随意放置几处摆件
凸显业主艺术品位
杏灰基底里揉入棕灰点缀
利用中性自然的笔触
营造稳敛质韵的隽永之家
衬以深色软装
蕴生刚柔并济的和谐之感
——
• END •
编辑:轩儿
责编:老蔡
排版:轩儿
拍摄:牧之
后期:三
✦
👇推荐阅读👇
✦




