👉文末点击设计师名片,get同款设计!
👉底部点击获取更多干货和实景案例,装修不迷路!
90㎡法式风
法式风格的轻盈
总让人迷醉
它自带足够的留白
作为日常的延展
丰富生活的同时
带给居住者艺术的滋养
设计亮点
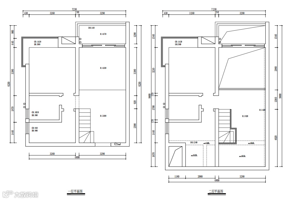
原始户型图
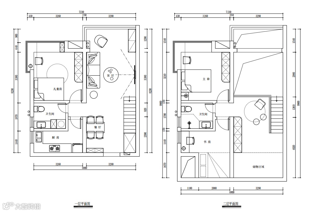
平面设计图
☑️改变楼梯方位,缩短餐厨动线,让客厅空间规整化;
☑️客卫舍去淋浴区,让出位置打造洗衣区,释放阳台空间;
☑️阳台扩入客厅,结合拱门、落地窗,坐享绝美窗景;
☑️利用畸零空间,打造多功能房,工作休憩两不误。
01.
/ 玄关/
玄关位于一楼
由于层高受到限制
走极简设计
减少拥堵感
门侧一组白色高脚矮柜
巧妙满足归家需要
上方筒灯柔光倾泻而下
深度激活昏暗空间
02.
/ 餐厅/
餐厅空间虽小
各种功能分区完备
借用玄关柜的台面做西厨
闲时饮一杯咖
享受来自生活的每一瞬抚慰
圆盘吊灯、黑白饰画
罗马柱折叠餐桌、金属餐椅
将朴素三餐
过成浪漫的法国电影
走廊用窄拱门装饰
露出的精致琉璃吊灯
独属的古着感弥漫开来
房门采用奶白极窄边框
搭配海棠纹油砂玻璃
带来油画般的写意之感
03.
/ 厨房/
厨房空间狭长
墙顶地一致采用白色
减少分割,加强整体
弱化墙体阻碍感
橱柜采用L型布局
尾部留出空位嵌入冰箱
释放其他空间
靠窗做高低台设计
更加复合人体工学
04.
/ 客厅/
沿动线步入客厅
挑高设计让视野豁然开朗
通铺的人字拼地板
饰以串珠吊灯、圆拱门
营造法式优雅浪漫
用方框石膏线装饰墙面
在大面积的奶油白中
将材质质感变化衬托而出
搭配一方米色豆腐块沙发
触发轻松而治愈的感觉
以回字石膏线勾勒电视背景墙
分立两侧的精致壁灯
与大吊灯相得益彰
法式高脚柜植入壁龛
长虹玻璃+银色小圆拉手
刻画如水般自然的法式风情
暗色木纹高腰柜
给凹陷位带来新的可能
各式香水陈列其上
与旁边的小画、摆件
构成一幅优雅迷人的图景
站在窗前回望客厅
多变的线条、材质、绿植
汇聚成一处自由流动的空间
让人于繁忙中获得片刻抽身
05.
/ 主卧/
双色壁灯搭配黑色床头柜
金属高脚的设计
让法式的柔软拥有筋骨
右侧利用飘窗打造梳妆台
搭配上灵动的百叶帘
灵活处理梳妆、办公需求
床尾设计一组通顶衣柜
哑光白的柜体
搭配银色复古小拉手
柜面整洁清爽
满足四季衣物存储需求
沿墙展开的L型布局
实现卫浴三分离
洗漱区墙面用花鸟砖点缀
克服白色空间的刻板印象
于白色之中自带灵动之感
06.
/ 客卫/
客卫舍弃洗浴区
借出空间打造洗衣区
洗漱区使用艺术花砖
大幅提升墙面颜值
增加整体情调
成为居家时尚打卡点
07.
/ 次卧/
用粉色镶板、石膏线
装饰整体立面
确定公主房的梦幻基调
米色半圆形床靠
柔化冷硬线条
更添三分甜美气息
右侧飘窗延伸出学习桌
忙时完成日常学习
闲时远眺窗外之景
上方花苞壁灯造型精美
与下方同色镶板呼应
蕴含法式甜美风骨
08.
/ 书房/
设计师于小小空间中
为居住者打造弹性空间
书房、客卧多重身份
让生活更加灵动自由
深度利用畸零空间
在梁下嵌入小床
同时植入内嵌灯带
化腐朽于神奇
让死角变身功能区
柔和的色彩
流畅的线条
精致的装饰
大胆的解决方案
创造出简约而又轻奢的法式魅力
——
• END •
编辑:轩儿
责编:老蔡
排版:轩儿
拍摄:阿龙
后期:牧之
✦
👇推荐阅读👇
✦




